查看完整案例


收藏

下载
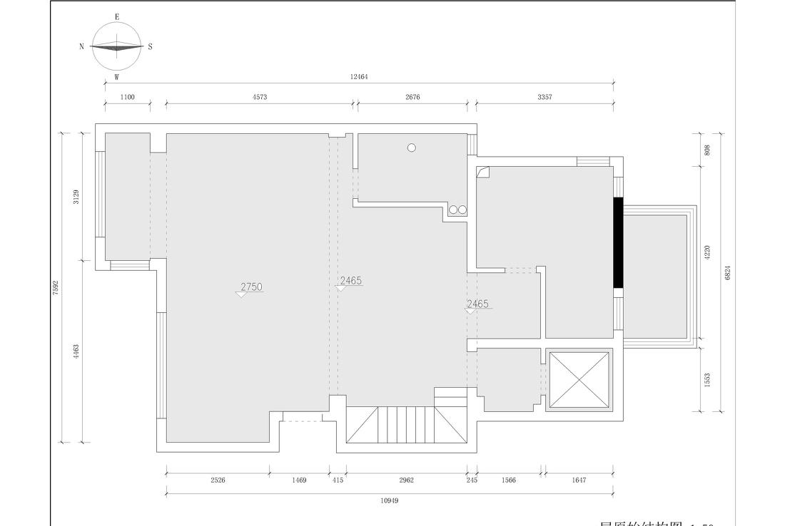
一层原始结构图。房屋整体格局较好,南北通透,私家电梯入户,承重结构也少,方便改造。
二层原始结构图。有大挑空空间,需要隔层或做其他设计处理。
一层空间改动 1、入户玄关处进行了扩大化处理,电梯厅空间安排了两排玄关柜,设计出换鞋凳的区域; 2、开放式厨房设计,近14平的超大面积,岛台、阳台、多种厨房电器,都能完美融下; 3、隐藏式卫生间设计,以隐形门的方式藏于客厅中; 4、多处圆角转弯设计,更添设计魅力; 5、超大客餐厅空间,兼容茶室空间,会客区域更大,品味更高;
二层空间改动 1、主卧大套间设计,放入U型衣帽间,和大梳妆台; 2、新增卫生间空间,吸收了赠送的空间,采用了双洗手台设计; 3、书房空间和露台打通,超大书房区域; 4、独立储物间,兼衣帽间功能,收纳能力大增;
跃层的客厅空间往往很大,在大的空间里,我们将其整体融入进轻奢简雅的气质中。不同层次的灰色、白色和谐相融,构建空间高雅大气的当代调性。
大理石、格栅、金属线条、皮料、轨道等元素在空间中碰撞,共同营造出一副精致的画面。设计上,我们抛却掉华丽的装饰技巧,用简单的直线线条,不断在墙体、屋顶、地面处重复出现,用朴实无华的线条,去装饰丰满温暖的烟火气息。
错落有序的艺术品,错落有序的摆放在客厅中。Kaws,Ponychair,容纳在平静的美学中,丰富空间的精神人文内涵。
沙发后面摆放的是一组极具个性的茶桌。与友同饮,品茶论文。低饱和度的色彩搭配,让这一传统的中国茶文化元素,和谐地融入进了现代轻奢的氛围中。
电视背景墙的设计,低调又透露着华丽。大面积的岩板造型,配合着错落有致的格栅,光影丛中,若影若现。这种以咖啡色调打底,细节处再缀以光影,营造出现代轻奢简雅的氛围。
细节上,定制的组合式茶几,将装饰与功能,表现的恰到好处。
Kaws安静地坐落在楼梯边,让角落处也增添了一抹风景。
精挑细选的装饰,展示着屋主低调又简雅的品味。
圆弧形的木饰面设计,让餐边柜和电视背景墙和谐共处。隐形门的设计,让公卫玩起了“躲猫猫”的游戏。
隐形门打开,公卫才会显现出来。
阳台的一角,屋主可以慵懒地享受着阳光,品上一盏香茗。
餐厅的吊顶采用了回字形吊顶的方式,用来和客厅空间区分。精致的岩板餐桌,搭配上同色调的餐椅,庄严而不失优雅。
“以张为发,以驰为蓄”,低饱和度的餐桌,搭配上有亮度的餐边柜,明暗相衬,对比鲜明,却又不失时尚。
在居家生活的细节上,餐边柜可以用来摆放屋主的藏酒,以及女主的私酿。近3米的大储物空间,被设计的有棱有角,有圆有方。
厨房是一个拥有着近 14 个平方的大空间,这样的厨房,几乎能容纳居家烹饪所需的一切。我们运用了较之客厅深一个度的色系,去装饰点缀厨房,实现灶具、油烟机、烤箱、洗碗机、岛台、休憩区的和谐相处。
这样的厨房设计,让一家人都能在厨房空间找到自己的位置,共享一起烹饪的乐趣。
主卧坐落在二层,独立的静区,让其完美地展现出大套间的魅力。风格上,延续着主设计的调性,色彩上以低饱和度色彩为主,轻奢、淡雅的味道,始终徘徊其中。
主卧套房的衣帽间用双轨黑玻移门去隔断,打开后是爱马仕橙的欢愉色彩,为平日的生活增加一丝趣味。
皮料、布料、金属、线条的相融,营造出高品质的生活精致感。
造型慵懒的懒人沙发,光彩斑斓的七彩角几,为午后的阅读,闲暇时的休息,注入了一丝不经意的浪漫,温馨之感也油然而生。
飞碟式的壁灯,搭建节奏韵律,点缀出空间的装饰性与趣味性。
次卧的背景是定制的壁画,所以弧线的造型上,会比乳胶漆更精细,更细致。
橙色的元素,呼应着主卧衣帽间的爱马仕橙,这是女屋主的另一个喜爱的色彩,暗藏在淡雅的轻奢中,绽放在独立的次卧空间处。
次卧的圆形吊灯,是空间的一道亮点。暖色的光影,配上橙色的气质,营造出空间独有的年轻感。
书房空间简凝,不多修饰,以主设计调性的色彩,平直的线条,去定制书柜和书桌。陈设妥当,满足屋主对于书房的功能需求。
长虹玻璃的隔断,让书房空间和外部空间也有了沟通。若影若现的光影,精致的吊灯,拉近了人与生活的距离。
整个跃层空间共有两个卫生间,均为客卫的配设。一层作为公卫,布局在隐形门中。二层作为私卫,满足屋主的需求。
这是一层的公卫,同样是干湿分离。只是色彩上,配合着客餐厅的深色,我们也选用了颜色较深的大理石纹路瓷砖进行装饰。
这是二层的卫生间,双洗手台配置,干湿分离。配合上大理石的纹理,与镜前的光影,初显华丽。
长虹玻璃的卫门,打开后便是私密的坐便区和淋浴区。
客服
消息
收藏
下载
最近


































