查看完整案例


收藏

下载
1F
2F
3F
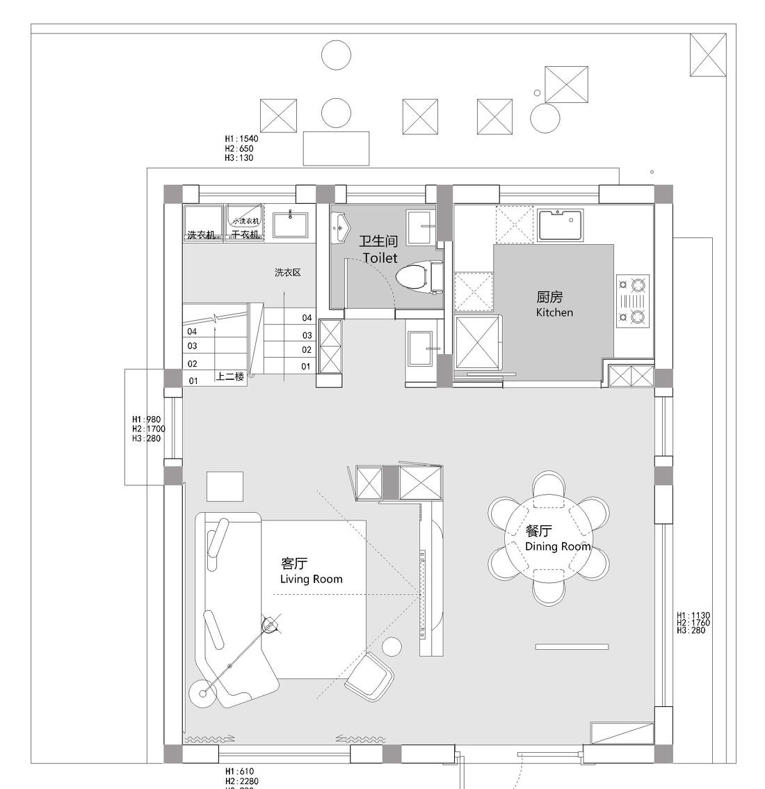
入户即是客餐厅,简约的线条融入大胆的撞色,混搭的魅力在于多种风格的碰撞却不觉得突兀。客厅正中央的承重柱通过电视柜整体组合柜完美地隐藏了起来,多功能的电视柜反而让空间多了些趣味性。
线条的多样性丰富空间,生动的曲线表达情绪。
空间的呼应让整个空间显得整体,利用多功能电视柜和镜面元素让位于1楼的每个区域都处于你中有我我中有你的状态。
圆弧形吊顶更显精致,搭配圆形餐桌氛围感更浓。
1楼的客卫干湿分离,借助多功能电视柜巧妙地避免将出口正对着客厅。
位于3楼的主卧萦绕着优雅的气质,PU线条的简单勾勒提升质感。
墙体造型连带到房门,整体性更佳。搭配金属元素的点缀增添奢华气息。
梦幻的女儿房,主题色当然是嫩嫩的少女粉,PU线条造型与主卧相呼应。衣柜顶部的小空间是留给女儿的私密空间,充满了童趣。
每个孩子都有自己的小空间,儿子房门口的乐高墙是孩子们最喜欢的空间,儿子房更加干练但依然有着这个年纪喜欢的童趣元素。
素雅的长辈房,更多的是沉稳的木色。灰咖色半墙的背景墙不厚重不老气,同时避免了素色带来的单调与乏味。
客房
3楼的卫生间借助天窗的设计格外有趣,蓝白配色的瓷砖简单清新,一天的好心情从收获一窗阳光开始。
客服
消息
收藏
下载
最近


































