查看完整案例


收藏

下载
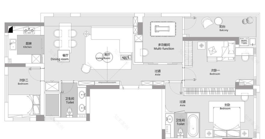
❶优化空间,隔出多功能间和儿童房,保证业主需求。❷打开主卫的隔墙用雾化玻璃做隔断,整个空间更显大,同时方便业主在泡澡时也可以看电影。
利用长条形的过道做成玄关柜,隔出一部分作为换鞋区,两用换鞋凳下暗藏灯带,贴心实用。
大白墙配合原木色干净简约,空间基调明朗,恰如其分的线条和色块营造出宁静柔和的氛围,不多装饰的家另有魅力,不张扬不娇柔。
利用香格里拉帘透光性佳的优点将光线的舒适度达到最佳,大面积的白色在光的作用下让家变得更明亮。电视背景墙嵌入收纳柜,黑白两色的对比让浅色系的家增加层次感,错落的收纳格打破线条的有序,减少乏味。
客餐厅竖厅布局,动线更合理明确。餐桌加岛台的设计实用且有情趣,作为厨房台面的延伸,下部增加收纳功能,让餐厅也成为一个西厨空间,制作面食,面包等的料理台来使用。
清新的配色永不过时。
U型的厨房延续清新的配色,用玻璃移门做隔断形成半开放式的空间。
沿着弧度走进卧室,极具现代感的卫生间瞬间成为亮点,由雾化玻璃围成的空间提升了格调。暗卫改成明卫,整个卧室都变得开阔通透。
连着收纳柜的梳妆台点缀着雾霾绿,不规则的化妆镜带到造型感十足的硬包增加空间层次感。
小房间用作次卧,两面的窗户都搭配可控制光线的香格里拉帘,小却明亮。
热爱健身的小夫妻的打卡地,办公健身两不误,三面墙的落地镜把空间显得格外大,在家健身也不失为一种情趣。阳台则巧妙地隐藏在镜子后面,别有洞天。
客厅隐形门之后藏着以清新绿和白色为主色的客卫,平时夫妻两人使用客卫的频率较高,双台盆的设计高效实用。
客服
消息
收藏
下载
最近






























