查看完整案例


收藏

下载
异地设计项目,项目地点位于山西省大同市,房屋使用面积90平米左右,主要由两位老人居住使用。
原始平面图,三居室格局。
原始样貌
原始样貌
原始样貌,考虑到成本问题,整体的空间布局不做大的调整。
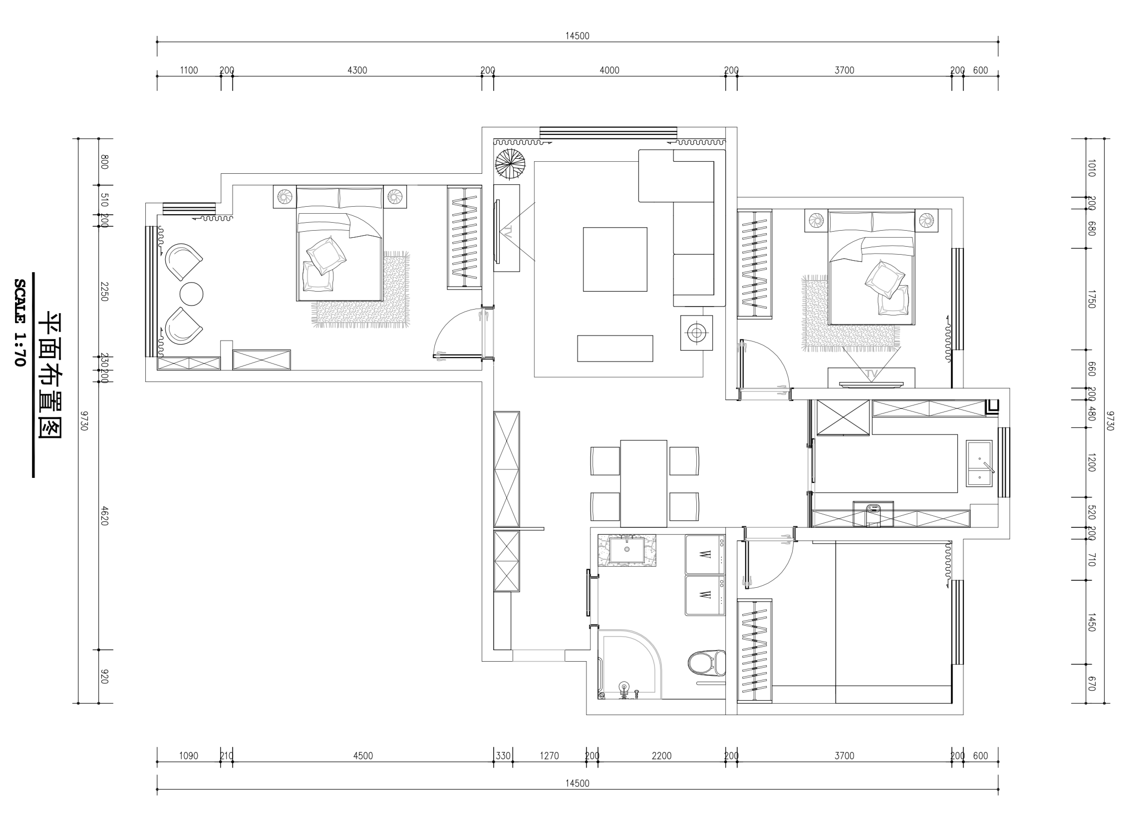
调整后的平面图,仅对厨房的墙面和洗手间的墙面做了微调,目的是让空间有更好的采光,洗手间的门做宽一些,可以方便使用。
设计效果图,客厅部分,采用了全屋木纹砖的方案
主卧,之所以没有暖气片,是因为做了全屋地暖。
客厅,户主喜欢喝酒,特别做了一个藏酒柜。
次卧
客卧,北方人的生活习惯,做了一个类似“炕”的榻榻米。
洗手间及浴室,尽量宽敞明亮
餐厅,采用折叠桌的方案,年节孩子回家或有客人来时,四人桌可以拓展为8人桌。
厨房。
客厅的部分,刚搬进去不久,还有点点乱
酒柜的部分,老人家不舍得丢掉原来的一些摆件,摆摆上去还是有点点违和感。
主卧的部分,我们选了相对比较素的床上四件套,但是老人家还是坚持用这样的,哈哈哈。
厨房的部分,打掉了原本的墙面,采用长虹玻璃推拉门的形式,一来可以继续阻断油烟,二来增加餐厅部分的采光。
餐厅。平时只有二老使用,因此摆在靠墙的位置,如果有客人来,桌子可以打开成八人桌。
餐厅,椅子选的可以旋转的木椅。方便老人家起身
主卧向客厅的方向以及次卧一角
洗手间及浴室。做了适当的适老化设计。
客卧榻榻米房间。
可能有同学问,为啥好多局部照片呀,那是因为老人家有很多舍不得丢掉的小东西,或者爱惜新家,在沙发上蒙上一层床单,看上去就是会怪怪的,所以我们选的拍摄角度也是尽量避开这些地方。由于这个案子是异地设计,且施工方在大同本地联系的,施工对我们的一些设计想法无法理解,比如一定要在电箱盖上套一个“花开富贵”的画,且会各种尝试说服我们接受,业主也持同样的想法,好在电箱是藏在沙发后面的,无伤大雅。
本案设计师:富华
软装搭配:小杨
工程造价:硬装9万元,软装4万元左右。
客服
消息
收藏
下载
最近

























