查看完整案例

收藏

下载
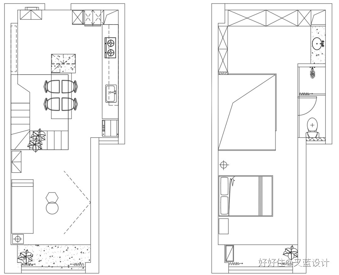
该户型是典型的loft公寓,业主一个人居住,两层面积大概80平米,搭建后层高一层2.4米,二层2.3米。
生活是自己的,不管大小也得精致。
起初业主对自己想要的感觉也很明确,并且已经购买部分家具,所以很快确定了做白+原木的现代简约。希望在整体基调的情况下再增加一些高级感的细节,比如:黄铜,玻璃,灯光,所用材料的质感等。
核心区域其实是餐厅,原户型厨房位置是有墙体的封闭厨房,拆除全部墙体,做全开放式。悬挂式楼梯也在这个区域,成为进门观景的一个亮点。
客服
消息
收藏
下载
最近




















