知末
知末
创作上传
VIP
收藏下载
登录 | 注册有礼

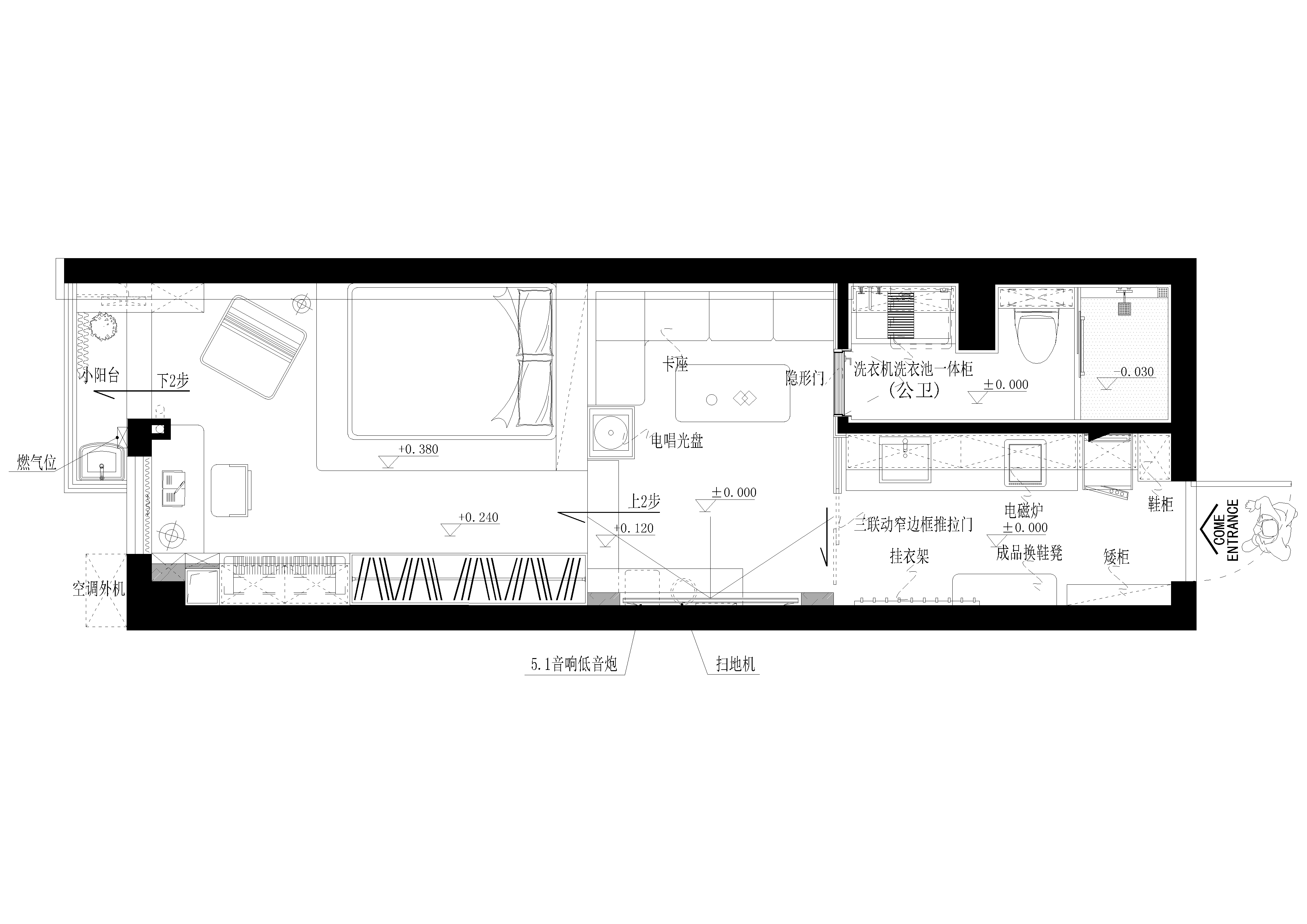
36㎡文艺中性女青年的音乐一字型公寓丨中国福建丨亚特建设,MIC 视觉

2021/04/19 16:04:33
查看完整案例
微信扫一扫
收藏
下载
项目地点:福建
硬装设计:亚特建设
软装设计:亚特建设 MIC视觉
效果表现:MIC视觉
业主是一个文艺中性女青年,酷爱音乐,喜欢小提琴,电子琴...
36㎡文艺中性女青年的音乐一字型公寓丨中国福建丨亚特建设,MIC 视觉-5
36㎡文艺中性女青年的音乐一字型公寓丨中国福建丨亚特建设,MIC 视觉-6
36㎡文艺中性女青年的音乐一字型公寓丨中国福建丨亚特建设,MIC 视觉-7
36㎡文艺中性女青年的音乐一字型公寓丨中国福建丨亚特建设,MIC 视觉-8
36㎡文艺中性女青年的音乐一字型公寓丨中国福建丨亚特建设,MIC 视觉-9
36㎡文艺中性女青年的音乐一字型公寓丨中国福建丨亚特建设,MIC 视觉-10
36㎡文艺中性女青年的音乐一字型公寓丨中国福建丨亚特建设,MIC 视觉-11
36㎡文艺中性女青年的音乐一字型公寓丨中国福建丨亚特建设,MIC 视觉-12
36㎡文艺中性女青年的音乐一字型公寓丨中国福建丨亚特建设,MIC 视觉-13
36㎡文艺中性女青年的音乐一字型公寓丨中国福建丨亚特建设,MIC 视觉-14
36㎡文艺中性女青年的音乐一字型公寓丨中国福建丨亚特建设,MIC 视觉-15
36㎡文艺中性女青年的音乐一字型公寓丨中国福建丨亚特建设,MIC 视觉-16
36㎡文艺中性女青年的音乐一字型公寓丨中国福建丨亚特建设,MIC 视觉-17
36㎡文艺中性女青年的音乐一字型公寓丨中国福建丨亚特建设,MIC 视觉-18
南京喵熊网络科技有限公司 苏ICP备18050492号-4知末 © 2018—2020 . All photos and trademark graphics are copyrighted by their owners.增值电信业务经营许可证(ICP)苏B2-20201444苏公网安备 32011302321234号
客服
消息
收藏
下载
最近