查看完整案例


收藏

下载
PS:
一个真实的私人空间设计案例
3i团队,iP定位,策划,设计。
项目名称:耀江花园私人府邸
空间设计:左域之上原创设计机构
主案设计:罗 勇-罗 帅
设计团队:苏雯 邓燕青 武正栋 易 格
项目面积:500㎡
项目地址:湖南省衡阳市
设计概论:本案用纯粹简约的设计语言,在造型上探讨空间视角艺术上的立体感与丰富性。业主是一位儒雅有品位的知识分子,热爱运动,想居住在“自然与禅意共生”的空间。我们也一直在探索当代设计与人文生活融合的空间想象。对自然的生趣融入软装设计,邂逅现代艺术的落地感观美学,赋予空间生命力与艺术感,同时融入文化的精髓,不囿于某一种特定的边界,更是业主对“至善”和“睿智”的一种生活态度。
当设计师面对一个兼具了居住、社交和工作室功能的项目诉求时;在原始框架图上,需要重构一部分的墙体,以便塑造空间的功能需求,转化纯粹居住属性为居住属性及社交属性,通过动线关系的有序转换,形成居住-社交-私属等多元包容视角的空间切换,将单向的层次关系,转化为多层次关系。同时,营造高端定制府邸所诉求的自然及舒适度。
原创绵延起伏仿石肌理背景墙的处理手法,保持方正结构的工艺细节处理,由前期想到后期立面的呈现感觉。好的设计源于生活,却优于生活,升于品质的提升。思考与探索的是居家在当代生活下的多样性与可能性,通过设计的创新、用材的丰富、传统文化与时尚艺术的融合,让家居不失东方元素又符合现代审美,将生活美学、功能性与舒适性更好地融入家居生活。
造型上的对称性,端庄与落落大方,简洁,流畅,方圆结合,阴阳协调。低饱和度的中性色调,低调奢华有格调。干脆利落,横平竖直的基调。层次的错落,过厅的回归。空旷的视角,庄重而有仪式感。南北通风采光效果比较好,人员分流的生活方式也比较舒服。
设计在空间实体的搭建上,采用直觉式的线条来归纳边界,形成了具有包容性的、现代式的空间形态,将戏剧化的可能交由物件和材质去诉说其中的精致格调。
开放式厨房,整理块面的的收纳,嵌入式方式,功能实用与造型美观的收口,只为营造一种人文与自然共生的生活方式。清雅含蓄,端庄丰富的东方式精神境界。
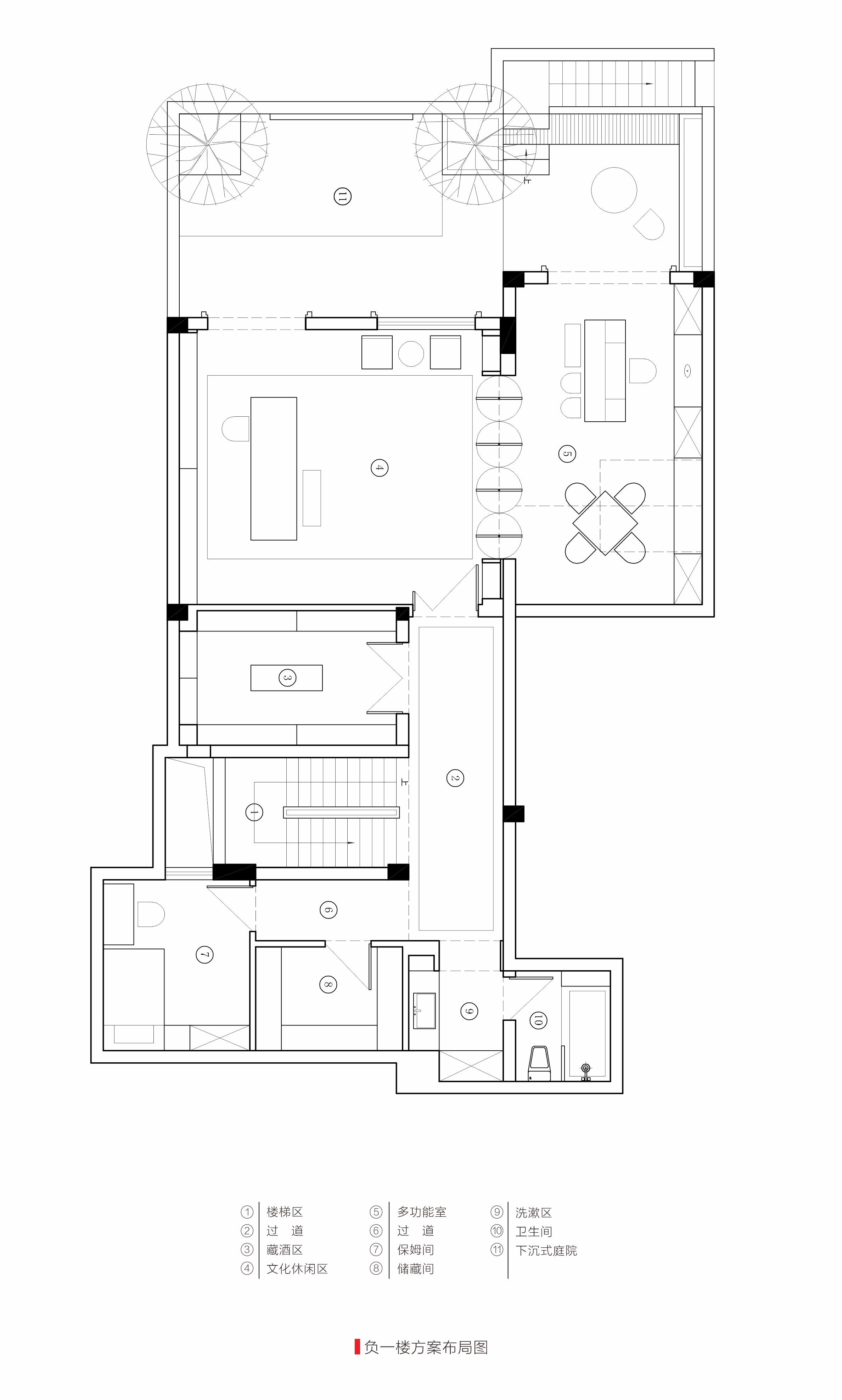
负一楼的茶室与娱乐室采用简洁,硬朗的直线,不仅反映出现代人追求简单生活的品位要求,更迎合了现代中式居家且追求内敛,质朴的设计风格。新中式风格的古色古味与现代风格的简洁明快自然衔接,使生活的实用性和传统文化的追求同时得到了满足。
负一楼的茶室与娱乐室采用简洁,硬朗的直线,不仅反映出现代人追求简单生活的品位要求,更迎合了现代中式居家且追求内敛,质朴的设计风格。新中式风格的古色古味与现代风格的简洁明快自然衔接,使生活的实用性和传统文化的追求同时得到了满足。
卧室的端庄,斜顶的巧妙融合,无主灯的的空间视角。居住空间讲究纲常,以阴阳平衡了概念调和室内生态。选用天然的装饰材料,来造禅宗式的理性和宁静环境。
卧室极简舒适的风格,渗透了东方华夏几千年的文明,笔直的线性加床上用品的舒适质感,给人以强烈的视觉意志力,成为时尚与古典的柔媚结合。
卫星顶视角的方正有序,前后廊厅视角对称呼应,室内与园林景观的相辅相成。设计师重构原创设计更多的结合业主的个性化需求,打造了业主的人设品位IP形象。传承经典,演绎时尚。生生不息,一份勇敢,一生执着的身份写照。
整栋房子本没有地下室的造景处,设计师从通风采光美观上考虑,给挖了一个下沉式庭院出来,这样地下室的整体通透性跟舒适性就提升了很多,融合东方审美与禅宗思想,散发出静谧、素雅的格调。 空间犹如一幅流畅的画卷,每个角落在光影流动间都能产生种种诗意。呈现亦谷亦今的空间氛围。
● 通风,采光,节能,实用,美观。
● 平面规划方案决定了后期立面体块50%的效果
● 卓越始于平凡,完善源于认真
有一种时间,叫陪你一起长大;
有一种经历,叫陪你一起画画;
有一种成长,叫陪你一起做设计。
有一种默契,叫陪你一起变老,
原创设计,罗们兄弟与您共创美好空间想象。
客服
消息
收藏
下载
最近























