知末
知末
创作上传
VIP
收藏下载
登录 | 注册有礼

北京东区国际极简浪漫家居设计

2020/12/23 15:12:46
查看完整案例
微信扫一扫
收藏
下载
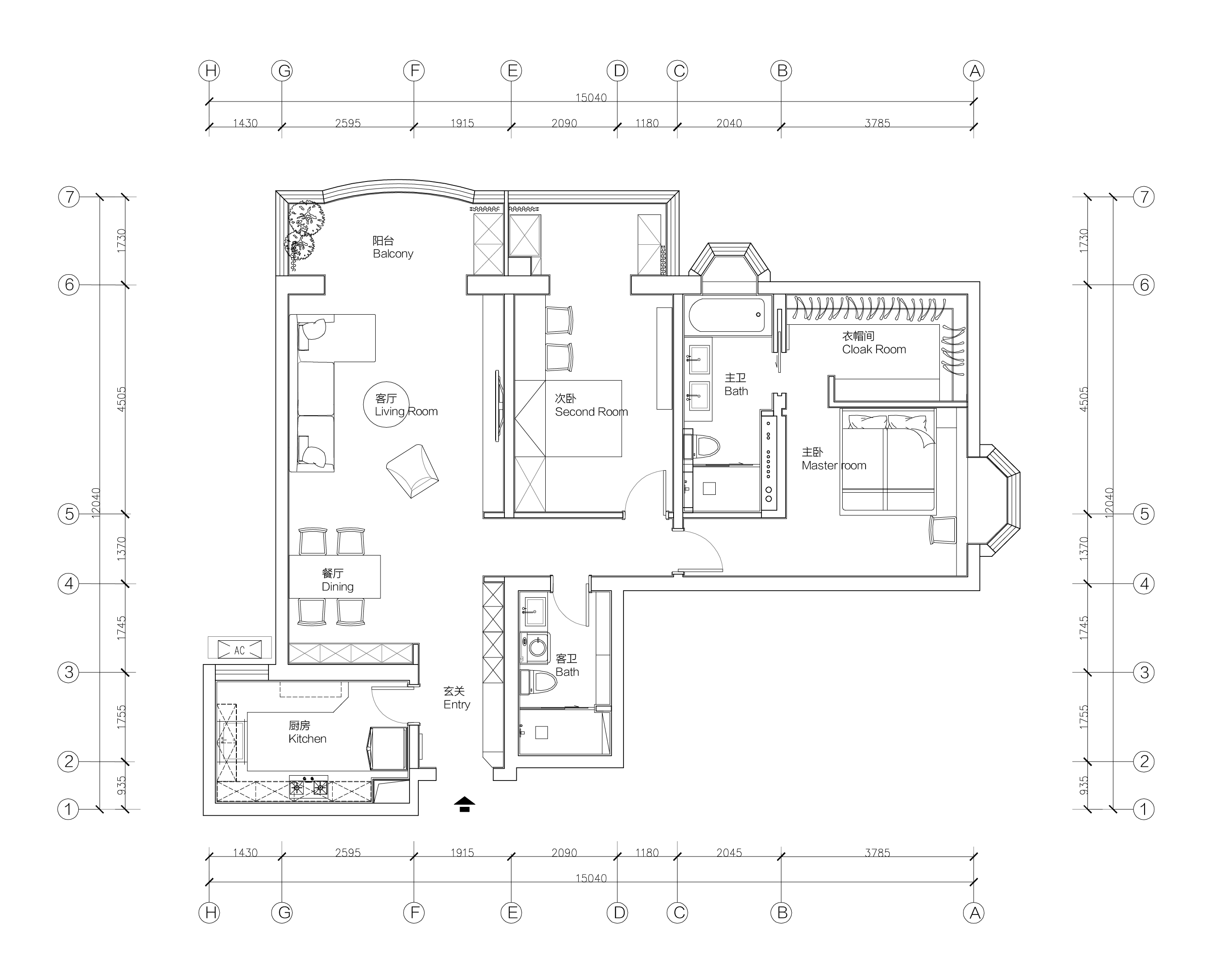
项目地址|北京朝阳区
项目名称|东区国际
建筑面积|147㎡
户型|三居
3ds Max 2020/VR
项目目前硬装已经全部搞定,因为疫情原因,业主也没那么着急入住,软装正在搭配,后续会把最终落地效果拍照展示出来,敬请期待吧~
北京东区国际极简浪漫家居设计-6
北京东区国际极简浪漫家居设计-7
北京东区国际极简浪漫家居设计-8
北京东区国际极简浪漫家居设计-9
北京东区国际极简浪漫家居设计-10
北京东区国际极简浪漫家居设计-11
北京东区国际极简浪漫家居设计-12
北京东区国际极简浪漫家居设计-13
北京东区国际极简浪漫家居设计-14
北京东区国际极简浪漫家居设计-15
北京东区国际极简浪漫家居设计-16
北京东区国际极简浪漫家居设计-17
南京喵熊网络科技有限公司 苏ICP备18050492号-4知末 © 2018—2020 . All photos and trademark graphics are copyrighted by their owners.增值电信业务经营许可证(ICP)苏B2-20201444苏公网安备 32011302321234号
客服
消息
收藏
下载
最近