查看完整案例


收藏

下载
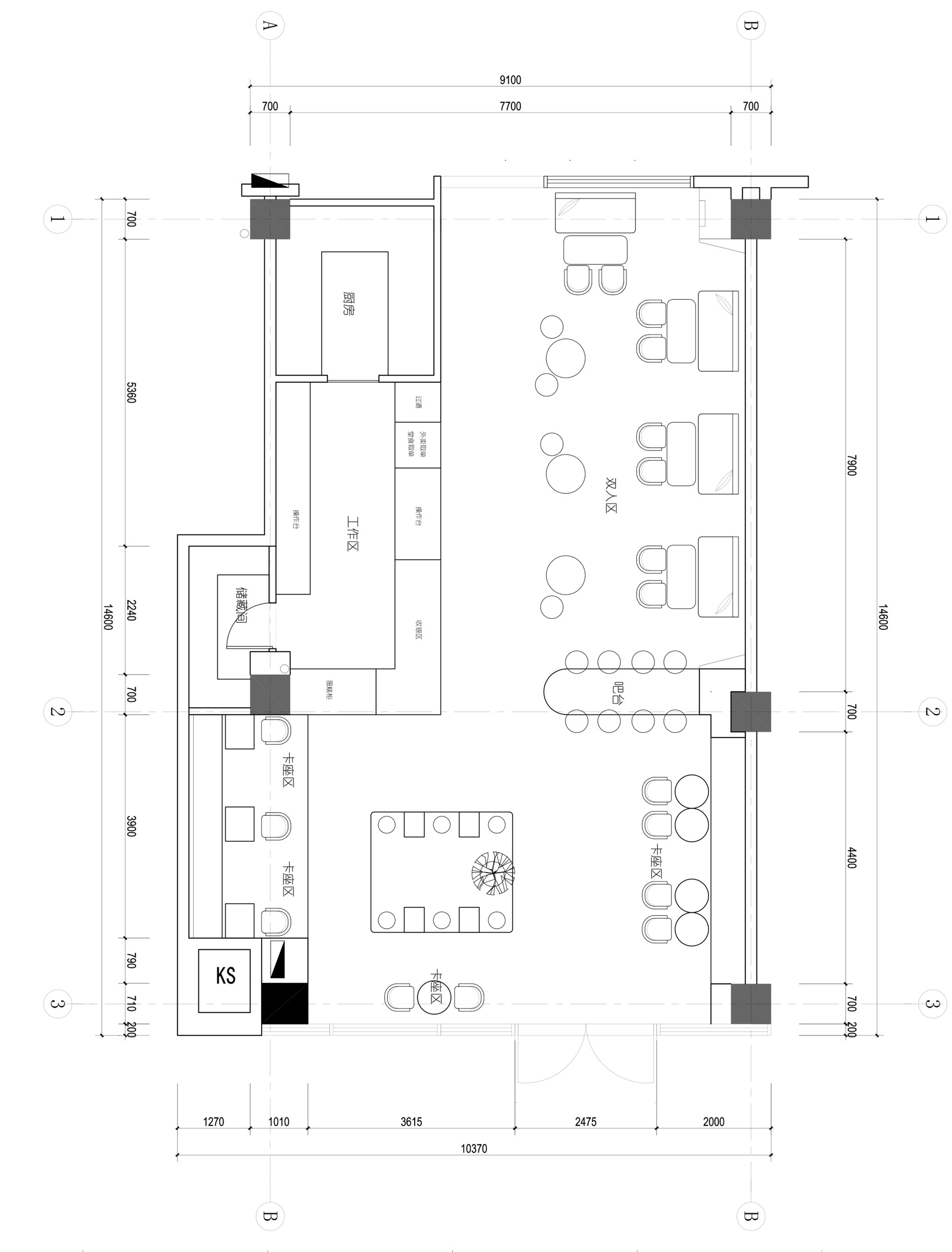
项目名称:波比铸茶所
设计单位:杭州民舍制作室内设计工作室
设计团队:贺赞辉 陈佳峰 孙紫益
项目地址:广东东莞
项目面积:135㎡
商业空间设计
当某个设计作品,以其独特的美将你我打动,则它是具有独特艺术品质的,波比铸茶所,便是如此。 设计秉持着“人应是空间核心”的理念,在室内空间中加入许多绿植元素,让空间充满互动感,自然特质,成为一个不可多得的空间亮点。对于美的追求,一直都是艺术永恒的主题。
项目名称:波比铸茶所设计单位:杭州民舍制作室内设计工作室设计团队:贺赞辉 陈佳峰 孙紫益项目地址:广东东莞项目面积:135㎡商业空间设计 当某个设计作品,以其独特的美将你我打动,则它是具有独特艺术品质的,波比铸茶所,便是如此。 设计秉持着“人应是空间核心”的理念,在室内空间中加入许多绿植元素,让空间充满互动感,自然特质,成为一个不可多得的空间亮点。对于美的追求,一直都是艺术永恒的主题。
客服
消息
收藏
下载
最近
























