查看完整案例

收藏

下载
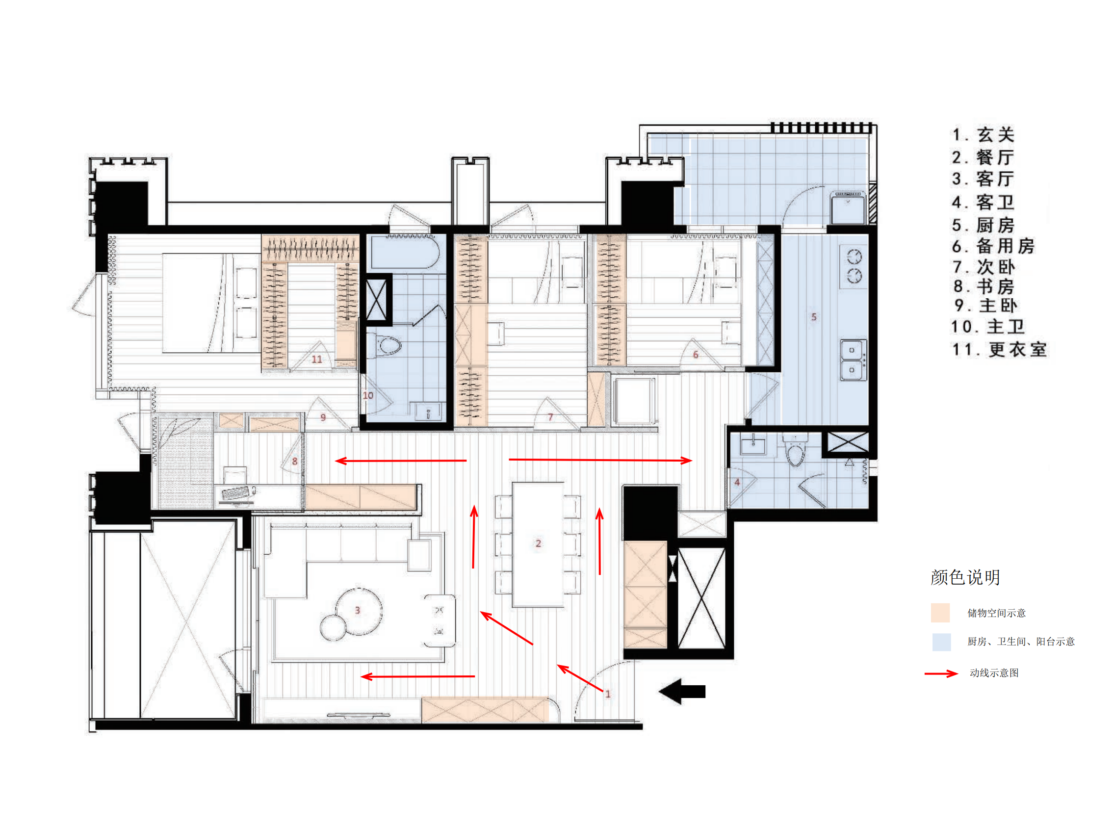
本案为5口之家,夫妻二人,一小孩,双方老人经常会轮流过来住两个月,原有的布局为三室两厅,因为业主有在家工作的需要,所以在原主卧的位置 压缩 隔出来了一间可容纳一个人临时短住的半敞开小书房,此处也算是本案的一大亮点改造,多了书房同时,虽然主卧的空间有所压缩,但客厅的空间却变得宽敞了许多,原始建筑的墙体能敲的地方基本都敲了,因为有许多的不合理之处,尤其是书房和次卧的空间如果按照原来的格局显得很是鸡肋。
在风格方面,本案我们以自然复古的原木色搭配时尚的深蓝墙面,并配以极具美式格调的线条点缀,算是一次元素的碰撞和尝试。
客服
消息
收藏
下载
最近






























