查看完整案例


收藏

下载
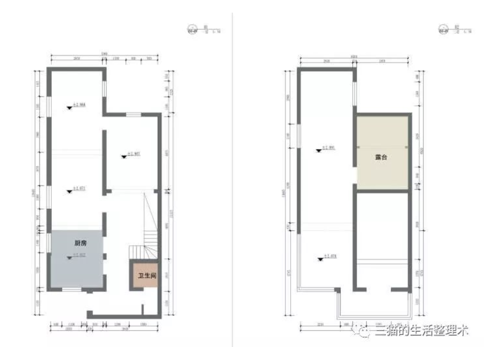
原始状况:独栋老旧民房,阴冷潮湿的3室1厅
实际花费:40w
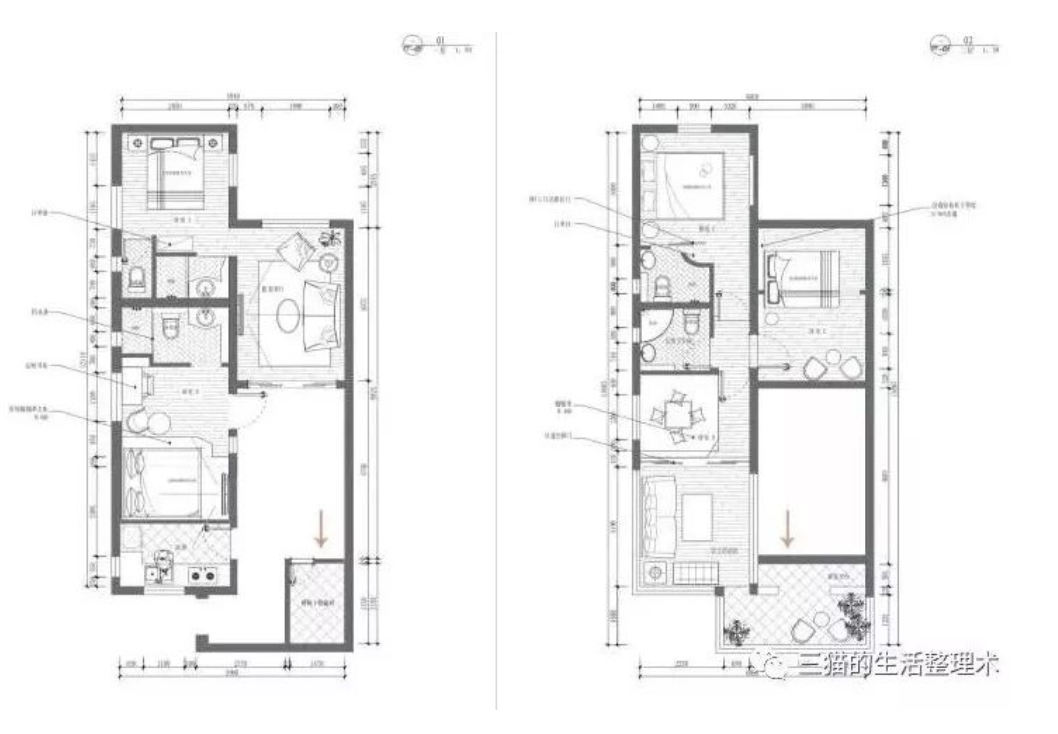
由三室一厅一卫改造成 四室两厅四卫
原户型采光和通风不好,增加了几个通风采光窗,在格局上做了比较大的变动:
1 只有一个一层的卫生间 改成了上下两层各两个卫生间
2 阁楼小阳台重新浇顶 新建一间榻榻米式房间
3 上下两层可分可合,满足业主的:作为民宿使用时,希望有客人的时候 也能各自有自己独立空间的需求。
全屋装了中央空调,所有的墙面采用了耐水腻子,把原来地面填充的建筑垃圾 换掉后做了保温层,解决了阴冷潮湿的问题。
客服
消息
收藏
下载
最近















































