知末
知末
创作上传
VIP
收藏下载
登录 | 注册有礼

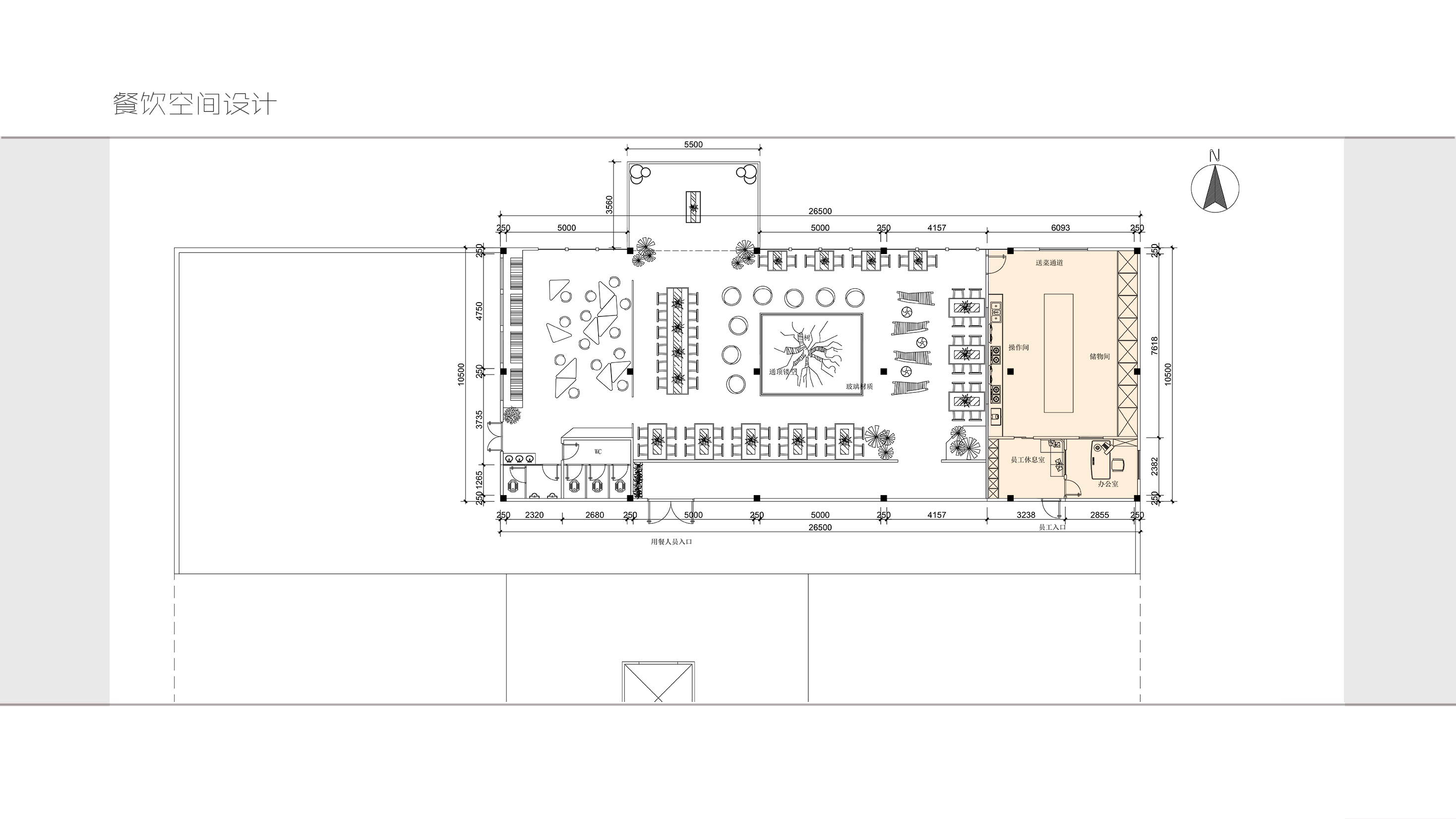
治愈空间——自然舒适的餐饮设计

2017/03/03 16:03:26
查看完整案例
微信扫一扫
收藏
下载
当各种个性鲜明,情感交织错综复杂的人们聚集在一起的时候他们需要寻求的是一种情感的宣泄、个性的宣泄、灵魂的宣泄;而这些情感释放似乎在我们传统的餐饮空间当中都看不到.......
我们想做一个让人处于这个空间便是自己最舒坦、最自然的状态、它并不需要你西装革履,也不需要你谈吐得当,你只需做你自己就好 。
治愈空间——自然舒适的餐饮设计-2
治愈空间——自然舒适的餐饮设计-3
治愈空间——自然舒适的餐饮设计-4
治愈空间——自然舒适的餐饮设计-5
治愈空间——自然舒适的餐饮设计-6
治愈空间——自然舒适的餐饮设计-7
治愈空间——自然舒适的餐饮设计-8
治愈空间——自然舒适的餐饮设计-9
治愈空间——自然舒适的餐饮设计-10
治愈空间——自然舒适的餐饮设计-11
治愈空间——自然舒适的餐饮设计-12
治愈空间——自然舒适的餐饮设计-13
治愈空间——自然舒适的餐饮设计-14
治愈空间——自然舒适的餐饮设计-15
治愈空间——自然舒适的餐饮设计-16
治愈空间——自然舒适的餐饮设计-17
治愈空间——自然舒适的餐饮设计-18
治愈空间——自然舒适的餐饮设计-19
治愈空间——自然舒适的餐饮设计-20
治愈空间——自然舒适的餐饮设计-21
南京喵熊网络科技有限公司 苏ICP备18050492号-4知末 © 2018—2020 . All photos and trademark graphics are copyrighted by their owners.增值电信业务经营许可证(ICP)苏B2-20201444苏公网安备 32011302321234号
客服
消息
收藏
下载
最近