查看完整案例


收藏

下载
该项目的所在地为陕西省西安市,项目面积为286平方米,此项目的成立初衷是为了打破近年来人们已经形成习惯的两点一线的生活方式,营造出与以往完全不同的第三生活空间,在这里,顾客们可以尽情发挥自己的创意,安静地做自己想做的事情。也顺应了线下实体店铺逐步向体验型空间转变的趋势。
该项目由BC cafe、木工体验区、皮具体验区、首饰体验区、油画体验区和休息长廊这六个区域组成,由于不同体验项目的性质及工作方式的不同,项目被人为的区分为噪音区和降噪区两个大区域,木工体验及皮具体验集中在噪音区,而剩下的几个部分被合理放置在一起,让顾客在体验不同手工项目的时候最大程度的达到专注且舒适的状态。
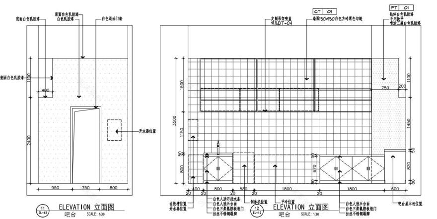
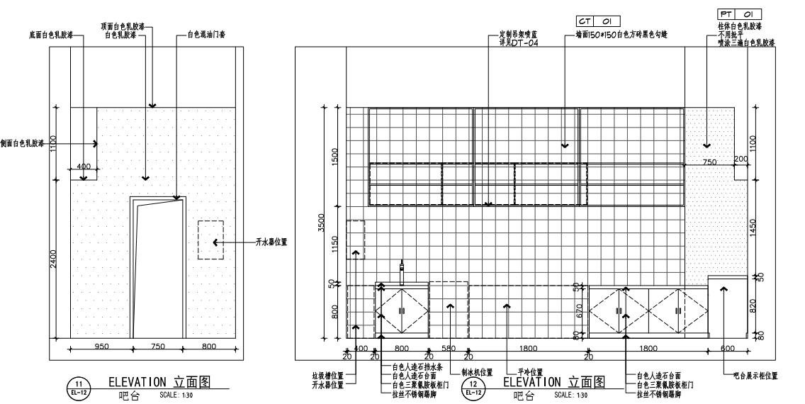
在项目建设选材上,我们选用了大型建筑路桥专用的水泥干磨石材质的地面。此地面成本较高,但耐磨耐砸,从而可以避免大型的木工工具掉落地面时对地面的破坏,可以维持整个项目的完整性。另外还使用了爵士白大理石,防腐木地板,软膜天花等材质,另项目看起来美观大方。
作为一个体验型的项目,能提供给忙碌的上班族们一个放松且自在的环境,项目开业后很快就与顾客产生良好的互动。由于项目在负一层,我们特地在最为黑暗的地方做了一整条的软膜天花吊顶的休息走廊,并且用超高玻璃折叠门,打开了一整面玻璃橱窗形成入店通道,另顾客轻松且不知不觉地就走入了我们的空间,享受我们的环境。项目除了在实际的工作中能给人带来愉悦之外更应该达到交谊、人际沟通等目的,而最为重要的是创造出了一个能够凝聚家人、朋友情感的感性空间。
客服
消息
收藏
下载
最近























