查看完整案例

收藏

下载
温馨的装饰
科学的规划布局
总是让人心情愉悦
漂泊中的归属感除了来自你的爱人
更多的是来自你下班后推门而入的家
幸福就是每分每秒的当下
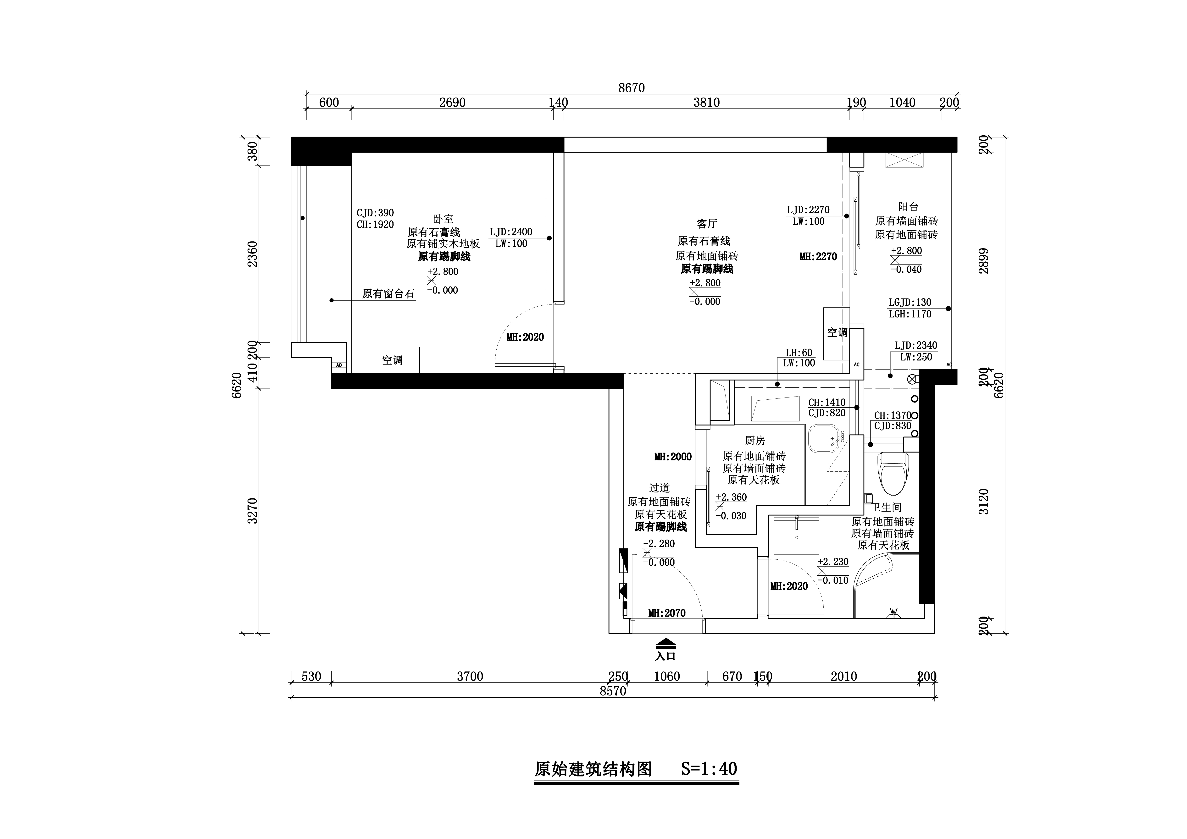
▲ 这是一套二手房,屋主本身是位爱好时尚、有品位的文艺女青年,对于审美有自己独到的见解。首先我们来分析一下房子原来的结构,由原建图可以看出,这一布局对于解决日常的生活需求是完全没有问题的,但是仔细的看,可以感觉到卫生间过于狭窄,过道的层高压至2米28,显得进门的区域有点压抑。房子是属于南北对流的,客厅和卧室中间的一面墙阻挡了整个空间的通风效果。阳台水管水表裸露空间积水情况严重,对此,我们整改了一份业主比较满意的布局方案。
▲ 这是一套二手房,屋主本身是位爱好时尚、有品位的文艺女青年,对于审美有自己独到的见解。首先我们来分析一下房子原来的结构,由原建图可以看出,这一布局对于解决日常的生活需求是完全没有问题的,但是仔细的看,可以感觉到卫生间过于狭窄,过道的层高压至2米28,显得进门的区域有点压抑。房子是属于南北对流的,客厅和卧室中间的一面墙阻挡了整个空间的通风效果。阳台水管水表裸露空间积水情况严重,对此,我们整改了一份业主比较满意的布局方案。
▲ 进门的第一视觉就是我们的厨房了,开放式的厨房通过白色瓷砖,胡桃木元素带来清爽洁净的视觉感受。可移动鞋柜的设计也考虑到了人坐在吧凳上用餐时的方便性。
▲ 进门的第一视觉就是我们的厨房了,开放式的厨房通过白色瓷砖,胡桃木元素带来清爽洁净的视觉感受。可移动鞋柜的设计也考虑到了人坐在吧凳上用餐时的方便性。
▲ 嵌入式沙发在一定程度上扩大了客厅的使用空间,整面墙的柜子可以摆放很多屋主的心爱之物,客厅茶几的安放既可解决屋主的用餐问题,同时也是屋主的工作区域,布艺沙发,胡桃木茶几,设计感十足的吊灯,各类型的装饰品,我们可以用丰富的家饰让空间处处充满着生活气息,同时也让这样无拘束看似凌乱的摆放,带来随性,轻松的感受。
▲ 卧室空间并不大,床和衣柜是必不可少的,为了增强其收纳空间和体现日式风格,我们把卧室设计成榻榻米,一张可移动的床垫代替了厚重的床。在原有的窗台石上面制作抽屉,还能在这地台上享受一会儿独处的时光。在全敞开式推拉门的后面制作帘子,增强其私密性。
客服
消息
收藏
下载
最近




















