查看完整案例

收藏

下载
这套作品是当初的毕业设计,虽然当初费了不少心血去做,但是现在看来无论是材质,灯光还是色彩搭配都还有很大的提升空间。不过回首观望这也是人生路上的一段历程!
回归正题,这套作品为“艺书”休闲书屋方案设计,从名字中就可以看出“艺”与“书”为整个设计的中心,但由于当初的水平有限(当然现在也没高到哪去)“艺”的表现还停留在表层,摆点艺术画,做点墙绘,弄点装饰品,做点有个性的东西这就是我当初所能做到的极限了。
至于“书”的表现!因为做的是休闲书屋的空间设计,所以我把更多的精力放在了这个字眼上面,像整个空间的家具设计,书架,吧台,椅子,书台等都是从书的形态衍生过来的,而这也正是贯穿这个设计的主线。
这套作品是当初的毕业设计,虽然当初费了不少心血去做,但是现在看来无论是材质,灯光还是色彩搭配都还有很大的提升空间。不过回首观望这也是人生路上的一段历程!<br> 回归正题,这套作品为“艺书”休闲书屋方案设计,从名字中就可以看出“艺”与“书”为整个设计的中心,但由于当初的水平有限(当然现在也没高到哪去)“艺”的表现还停留在表层,摆点艺术画,做点墙绘,弄点装饰品,做点有个性的东西这就是我当初所能做到的极限了。<br> 至于“书”的表现!因为做的是休闲书屋的空间设计,所以我把更多的精力放在了这个字眼上面,像整个空间的家具设计,书架,吧台,椅子,书台等都是从书的形态衍生过来的,而这也正是贯穿这个设计的主线。<br>
展板一
展板二
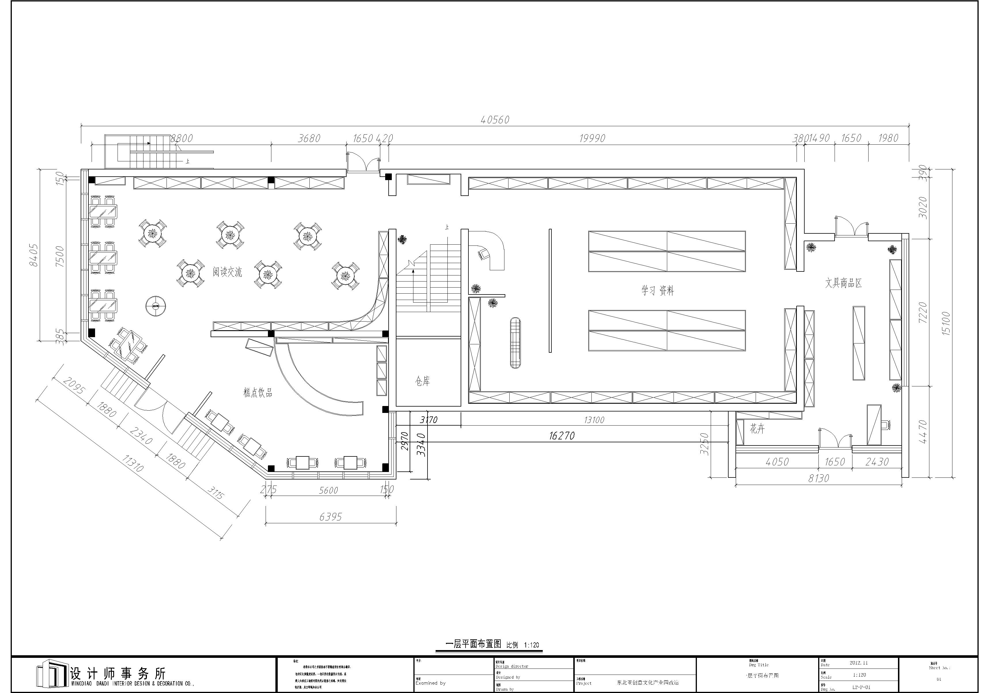
一层平面
二层平面
咖啡前台
入口背景
休闲阅读
学习资料
动漫周边
CD区
弧形书架
阅读长廊
书架设计
椅子设计
书台设计
吧台陈设
客服
消息
收藏
下载
最近


















