查看完整案例

收藏

下载
中粮创芯食堂位于深圳宝安区创芯科技广场,其主要受众群体是产业园区职工和部分外部客群,面对这些勤奋工作的劳动者群体,我们提出要以满足产业园区客户日常就餐、联络情谊的需求,兼备实现吸引人才、显示企业软实力、塑造中粮品牌的战略性价值。
本案基于“尊重自然,回归自然”的中粮企业理念,提出“现代化绿色生态食集”的设计主题,从职工出发,以人为本,树立中粮现代化、专业化、品质化形象。
面对昏暗潮湿狭长的地下停车场环境,如何做到停车与餐厅共存是我们遇到的首要问题。通过运用大量绿植隔断以及入口处的户外打造与就餐区进行过度,让就餐者从视觉与心理达到舒适放松的感受。
在以往食堂案例中往往只能瞒住员工基础就餐需求,而我们将时尚现代、自然与节奏感融入简单开放的空间,提供给职工工作之余日常下沉浸与放松的体验。
由于项目位于地下室,我们更多考虑材料防火等级的选用。软装饰品搭配上从绿色生态角度出发,运用绿植画面打破空间沉闷,花车、原材料的陈列展示方式也更具观赏性和诱惑性,同时向就餐者传递“自然、健康”的生活理念。
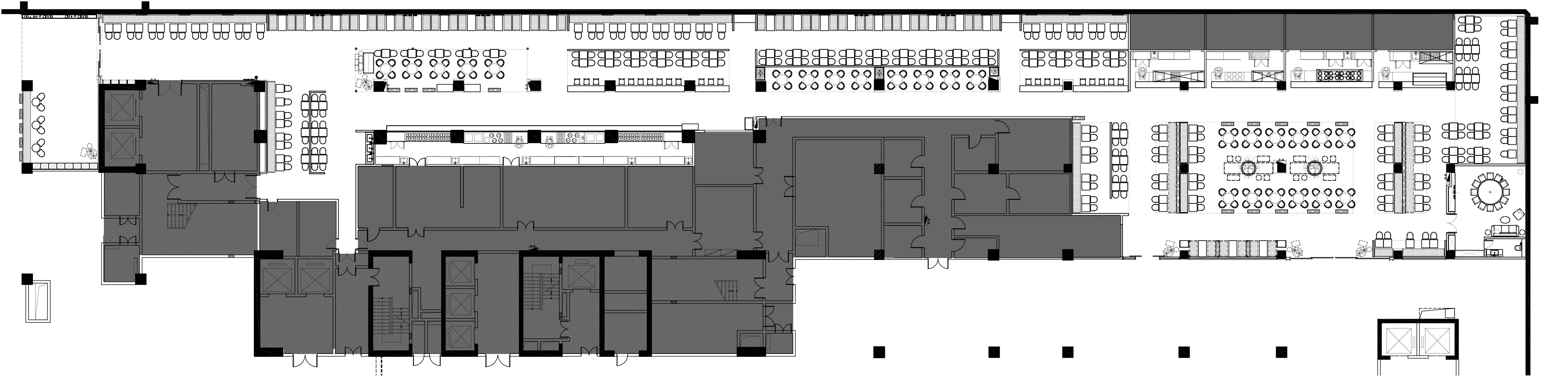
为满足操作厨房的高效运转以及就餐者的不同口味需求,同时在保证高峰人流不拥挤的条件下,我们于1800m²的食堂面积中规划2条自选快餐线以及4个特色档口区,最大程度的展示食堂多样性的一面。
流线式局部天花造型、木色餐桌、暖黄灯光、颜色跳跃的餐椅,明快的色彩在简练的线条交错碰撞出自由的构想,营造井然有序的中心用餐区。
客服
消息
收藏
下载
最近




















