查看完整案例


收藏

下载
项目名称/ 指尖王国画室
设计机构/ 宁波魂动文化传媒有限公司
项目地址/ 浙江杭州
主要材质/ 环保艺术漆、木质、玻璃
项目面积/ 126㎡
完成时间/ 2021.7
项目负责/ 张博 创意设计/ GG女士 设计总监/ Waison
设计团队/ Rush Tracy
空间色彩
在色彩上,主要以白色和原木色作为空间主旋律,白色纯粹干净,好似孩子的天真无邪,给人以明亮而又大方的空间感受。原木色自然简朴,丰富空间层次的同时,营造出舒适且温暖如家般的空间氛围。
空间材质
在材质上,使用了环保艺术涂料作为主要材料,搭配质朴的木质,空间也变得健康而具有亲和力。同时考虑到孩子的安全性和教学质量,采用了软包和吸音棉,建立起了人与空间的和谐联系,让孩子可以放心探索空间,并在一定程度上提高教学的质量。
门头区域
门头的设计更注重品牌标识的突出,没有眼花缭乱的装饰,而是简单的一个笑脸、英文字母以及品牌海报,简约而又有风格,并利用大面积的白色,来凸显黑色立体logo,直观显眼,让来往的路人一眼就能看见记住。
大厅区域
延续着简约的设计,大厅在使用较少装饰元素的条件下,利用弧形和曲面变化出丰富的几何形态,使得空间保有层次感而又不失细节。内嵌式的木质架,合理运用空间容量,增强了空间的实用性,还营造了一种亲切自然且舒适的环境。
过道区域
在极具纵深感的过道里,不同色块的弧面在顶部交错,充满了动态的艺术感,简约而永恒。洗手区的那抹蓝色瞬间点亮了整个过道,显眼但不突兀,反而给予了空间不一样的视觉感受。
教室区域
白色和木质的组合在不同的教室里进行了恰到好处的运用组合,整个设计偏向于舒适、温暖、宁静的平和氛围。空间内设计了大面积的玻璃窗,舒适的采光,让孩子在光与影中感受艺术的魅力,增强了人与空间之间的对话。
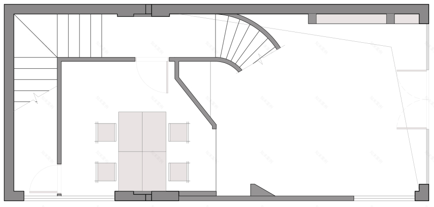
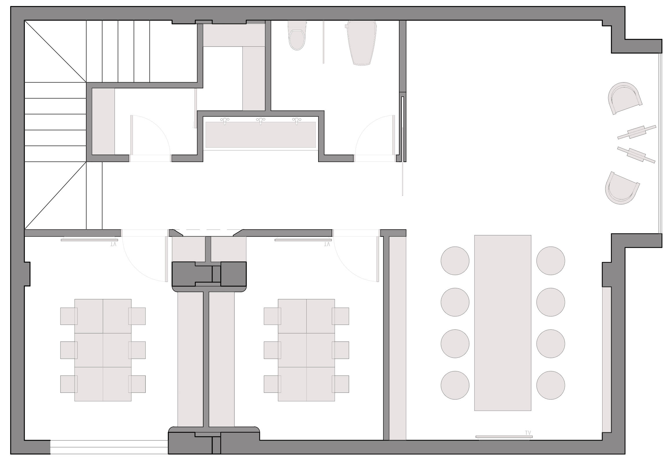
▾彩平示意图
▾施工前
▾施工中
▾空间色彩
▾空间材质
▾门头区域
▾大厅区域
▾过道区域
▾教室区域
客服
消息
收藏
下载
最近




















