查看完整案例


收藏

下载
小漾亲子游泳东莞南城店设计分享
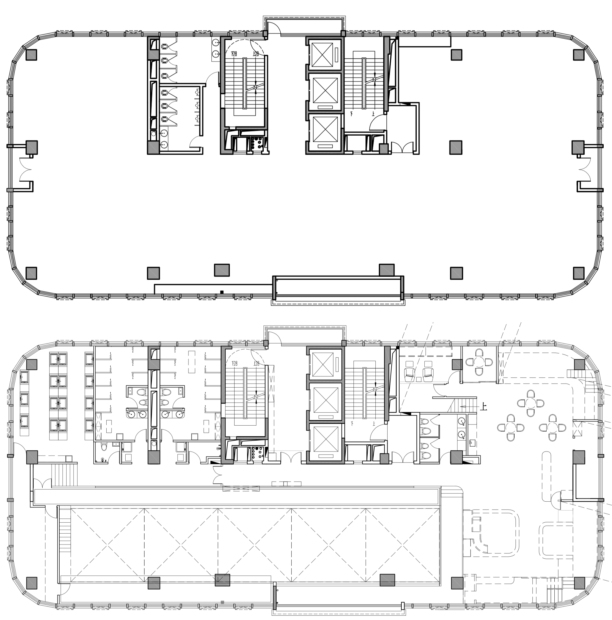
原始平面图及平面布置图,亲子游泳馆主要功能区包括湿区和干区,干区主要供孩子们玩耍、办公等使用;湿区用于教学,其中最重要的部分是泳池,其次为洗浴区、更衣区等配套空间。设计重点就是在满足教学使用的前提下合理规划功能空间和动静线。
空间的规划。受各种不同场地条件的限制,首先就是要满足泳池的功能,然后再将其他附属功能一一排列到位。
设计效果图-入口处
设计效果图-通道处
设计效果图-玩耍区
设计效果图-接待台
设计效果图-泳池部分
施工过程-泳池的加固工程
施工过程-干区的搭建
施工过程-玩耍区的搭建
施工过程-玩耍区的搭建
施工过程-泳池的建造
施工过程-干区的搭建
施工过程-女更衣室的清洁
施工过程-泳池的清洁。
经过三个多月的施工,我们的设计逐渐呈现在大家的面前。
完工照-入口换鞋区
施工完成后现场-干区全貌。
完工照-接待台部分。
完工照-就餐区以及阅读区的部分
就餐区及办公室
完工照-阅读区
完工照-洽谈室及办公室
水吧及温奶区
玩耍区
玩耍区及波波池
洽谈区
泳池方向及通道
干区方向及通道
女更衣室及男更衣室
女洗漱间及更衣室
女洗漱间及更衣室
男洗漱间及更衣室
泳池
泳池
泳池
泳池
泳池及教具
泳池
泳池观课区
婴儿洗浴区-家长给宝宝们洗澡的地方
婴儿洗浴区
设计机构:意匠工作室
本案位于东莞市景荣路创思智慧城。
客服
消息
收藏
下载
最近













































