知末
知末
创作上传
VIP
收藏下载
登录 | 注册有礼

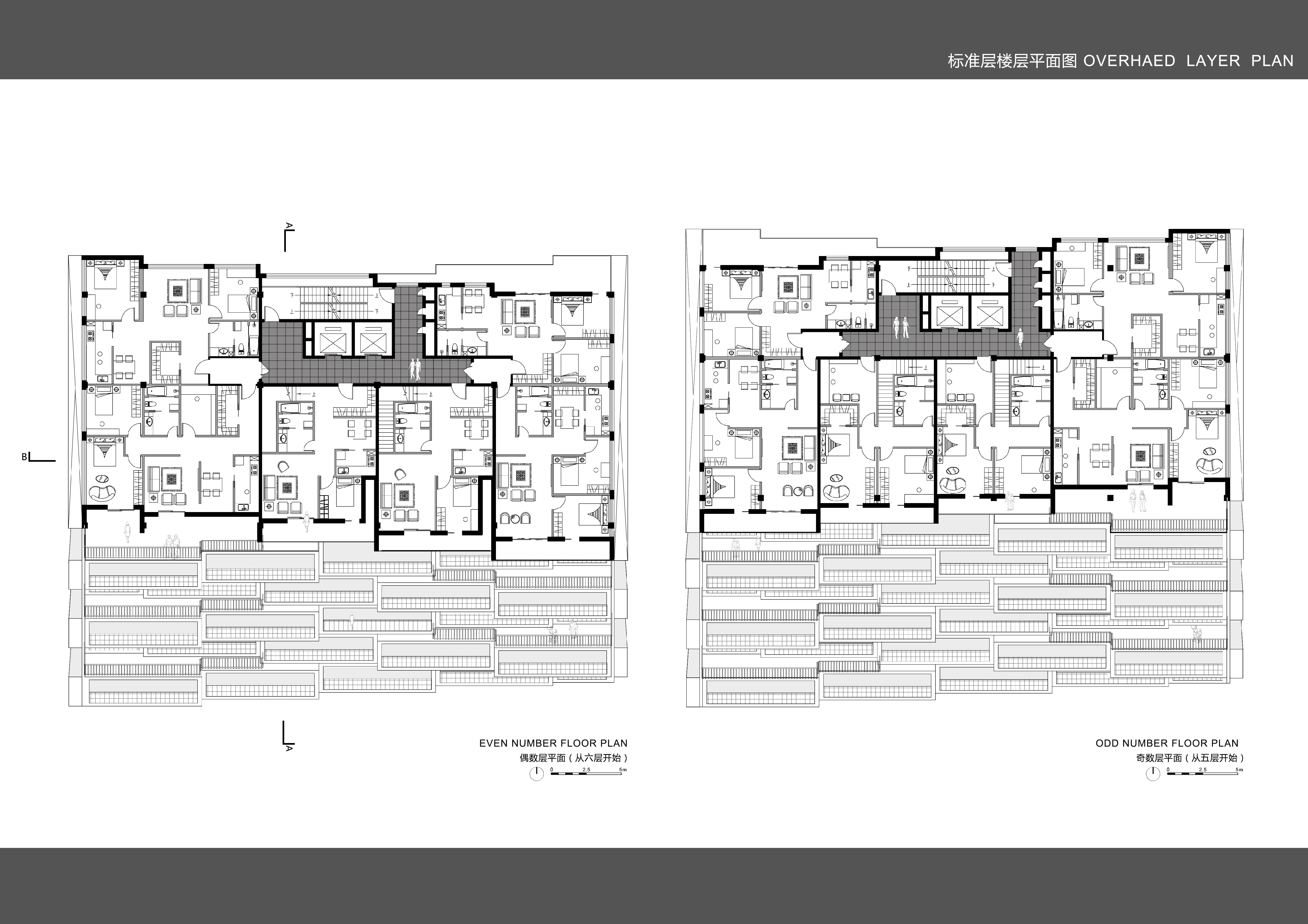
参数化设计 | 住宅区的创新与实践

2017/02/15 00:02:46
查看完整案例
微信扫一扫
收藏
下载
一直感觉站酷的建筑作品多为室内设计,很少有建筑设计,作为一名5年的建筑狗,就发一发自己的住宅区设计吧。这个方案肯定不是我一人做的啦~
四人一组,合作的过程中难免出现了很多不愉快,不过还好最后结果还是可以的~
参数化设计 | 住宅区的创新与实践-2
参数化设计 | 住宅区的创新与实践-3
参数化设计 | 住宅区的创新与实践-4
参数化设计 | 住宅区的创新与实践-5
参数化设计 | 住宅区的创新与实践-6
参数化设计 | 住宅区的创新与实践-7
参数化设计 | 住宅区的创新与实践-8
参数化设计 | 住宅区的创新与实践-9
参数化设计 | 住宅区的创新与实践-10
参数化设计 | 住宅区的创新与实践-11
参数化设计 | 住宅区的创新与实践-12
参数化设计 | 住宅区的创新与实践-13
参数化设计 | 住宅区的创新与实践-14
参数化设计 | 住宅区的创新与实践-15
参数化设计 | 住宅区的创新与实践-16
参数化设计 | 住宅区的创新与实践-17
参数化设计 | 住宅区的创新与实践-18
参数化设计 | 住宅区的创新与实践-19
参数化设计 | 住宅区的创新与实践-20
参数化设计 | 住宅区的创新与实践-21
参数化设计 | 住宅区的创新与实践-22
参数化设计 | 住宅区的创新与实践-23
南京喵熊网络科技有限公司 苏ICP备18050492号-4知末 © 2018—2020 . All photos and trademark graphics are copyrighted by their owners.增值电信业务经营许可证(ICP)苏B2-20201444苏公网安备 32011302321234号
客服
消息
收藏
下载
最近