查看完整案例

收藏

下载
项目地处深汕CBD 核心区的绿地中心,面积约为20万平方米,其中甲级办公面积5.2万平方米,全玻璃幕墙设计,是深汕地区唯一在建超200 米的商务地标,城市全景尽收眼底,是粤东沿海经济带新中心。
进入后现代社会以来,环境设计日益走向开放性和多元性。如设计风格的多元融合,空间结构的开放性以及高度的人性化设计理念,富有奇思创意的美学构想不断地渗透到设计之中。本案的设计意在整体营造舒适、现代、精致的办公氛围。将现代、精致、美学的设计语言运用在设计的框架当中。
创意源于滨海城市的地域元素,红头船文化中引申出“船帆”的概念,寓意“扬帆起航”,把船帆的元素转化为设计语言,沿用了建筑外立面极具现代美感的弧形线条,天花与地面呼应,多种产品展示手法在空间中交错。
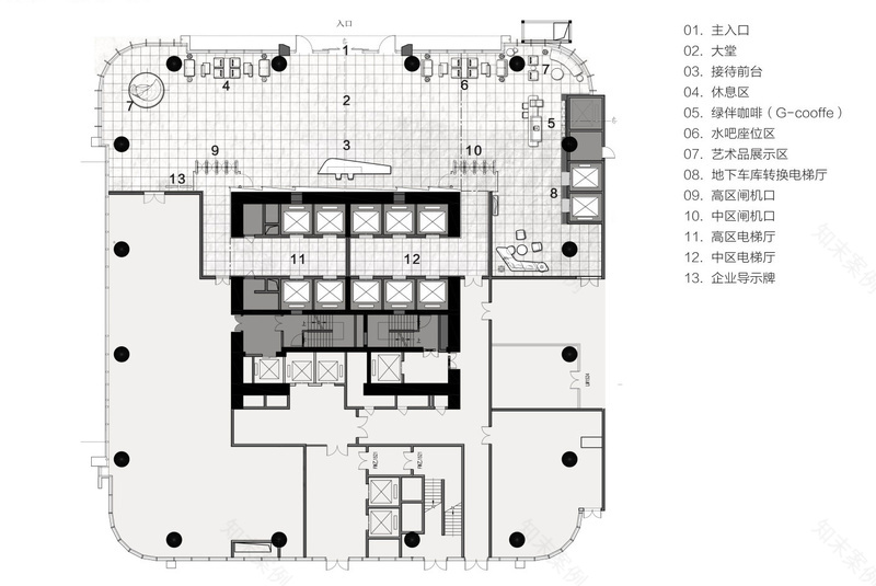
平面布局分区明确,人流动线十分流畅,大堂及主入口开敞明亮,大堂同时兼顾了营销中心,凸显高端大气的空间感受。12 米挑高气派大堂,大面积浅色调材质为主,巧妙运用石材、仿石砖、夹丝玻璃、铝板等主材,保持明亮清爽且时尚的整体色调,天花、地面以及墙身都运用细线条收口,极具精致细节的品质感。
样板间位于大厦的13 楼,面积约为148 ㎡的总裁办公室,配合项目营销,为30~40 岁的天使投资总裁量身打造,办公氛围着重体现尊贵与现代相结合的体验感。虚拟客户定位为金融高管办公室,面向上班节奏休闲舒适,办公模式多元化的30~40 岁投资人,提供方便与客户沟通交流,可进行小型商谈的办公空间。
样板间的空间处理上,明确分为3个区域,秘书区、洽谈区与办公区。既要满足现代化企业多元化的办公模式以及不同工作要求,又要打造既干练的简约面貌又保有尊贵的高端级别的办公空间。
以办公与休闲的设置,打造领导尊贵感并具有现代时尚装饰性的风格,体现总裁的生活品位和气质。整体以明亮的浅中性调打造,浅色石材、灰色不锈钢以及灰色木饰面营造尊贵时尚的高档次办公氛围,艺术地毯及挂画的点缀增添了总裁办公室的艺术气息,尽显总裁高端形象和大气风范,打造总裁私享的精致办公空间。
客服
消息
收藏
下载
最近























