查看完整案例


收藏

下载
亲子餐厅作为近年来新兴起的餐饮空间类型,更多地局限于儿童游乐场附带用餐这样的功能 。旨在为儿童建造另一个与父母互动的场所。古鲁奇与维塔兰德合作的亲子餐厅,却将聚焦放在为了照顾孩子无暇顾及自己生活,更遑论与青春年少时的朋友安安静静约餐饭的“父母们”身上。
然而当约局变成约“孩子局”似乎一切问题就迎刃而解。“树屋”的概念贯穿了整个餐厅的空间设计,一个个错落在空间里的小房子构成了不同的儿童体验空间,与就餐的大堂形成半围绕的结构,空间疏密相互呼应。
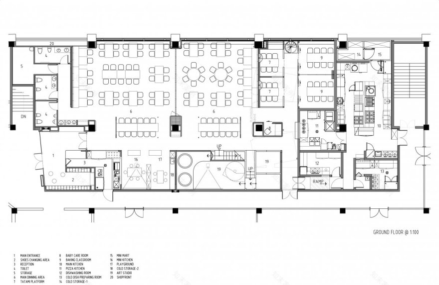
蔬菜与水果是餐厅的vi形象主体。一棵巨大的西兰花在入口处以欢迎的姿态迎接到访的客人,原本是大多数小朋友最“畏惧”的蔬菜,一下子活泼可爱起来。穿过白色的的鞋柜与展示架组成的玄关,跨过拱形的门洞就算是正式进入到这个“儿童与父母的乐园了”。
进入餐区,左手边便是主要的就餐大堂,白色的空间基调配上天花漂浮的圆形光圈灯具,有一种天空中的梦幻。大厅的中段设计了折叠门,需要办派对的时候还可以一分为二两个空间。而餐区的右边,以框架构筑的小屋为界限,分隔了餐区域儿童体验的区域,各种不同场景的体验活动,令成年人也羡慕不已。也许是在某个周五的下午,已为人父母的你我约上一杯下午茶,阳光透过窗边梧桐树落在桌面。目光的尽头是玩闹的孩子,一切在现实与青春年少的回忆间穿梭,时间的轴线就这样被打乱。
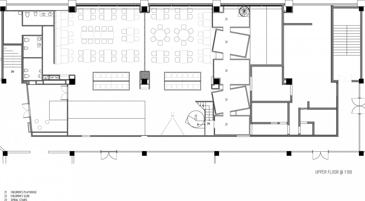
大厅的尽头便是整个空间最最有趣的树屋聚落。层错的小屋彩色的玻璃窗,玻璃的颜色不仅来区分空间又与视觉系统相呼应。下层的小屋是包厢、儿童的休息室。而楼上层高不足1.5米的空间被设计成为又一不同主题的儿童体验空间,这个层高对于成年人而言需要弯腰才能进入,但是对于孩子而言却是恰恰合适而又充满安全感。
两层的树屋之间也充满着空间上的互动。从右手边的楼梯向上走,楼梯的内侧边是孩子们最喜欢球池。更多的小朋友会“半途而废”还没有爬上树屋便顺着设计在楼梯中断的滑梯入口滑进球池里。如此反复上上下下乐此不疲。
也有些孩子首先就被树屋吸引,一鼓作气爬上树屋,发现里面是一个充满惊奇的新世界,刚从公主主题小屋穿过有来到了全是超级英雄的空间,再往前跑去,竟然又有旋转的楼梯可以向下。顺着旋转楼梯向下,刚刚落地,竟然看见才分开的爸爸妈妈正在热火朝天的聊天吃饭。恍然间,一场新的探险旅程就又要开始了。
古鲁奇所设计的维塔兰德亲子餐厅,并不走当下流行的夸张设计的网红路线,清新如天堂的风格考虑更多的是小朋友的使用,而不是为了让父母拍照。在空间上设计师将目光投放在了孩子本身对高高低低的可以攀爬的空间比对五颜六色的地方更感兴趣的天性上,将空间生动有趣高低错落起来,试图营造出能让孩子们自娱自乐“野蛮生长”的空间,也好让父母们偷得浮生半日闲。
当 “好友饭局” 变成了 “孩子局” ? 这家餐厅似乎将一切问题迎刃而解。设计团队并不想走当下流行夸张的网红路线,清新如天堂的风格考虑更多的是小朋友的使用,而不是为了让父母拍照。孩子喜欢对高高低低的可以攀爬的天性上,将树屋空间生动有趣高低错落起来,营造能让孩子们自娱自乐,“野蛮生长”的空间,也好让父母们偷得浮生半日闲甩开包袱与朋友尽情畅聊。
当 “好友饭局” 变成了“孩子局” ? 这家餐厅似乎将一切问题迎刃而解。一个可以让爸爸妈妈们暂时甩开包袱与朋友尽情畅聊的餐厅。设计团队并不想走当下流行夸张的网红路线,清新如天堂的风格考虑更多的是小朋友的使用,而不是为了让父母拍照。
在空间上设计师将目光投放在了孩子本身对高高低低的可以攀爬的空间比对五颜六色的地方更感兴趣的天性上,将空间生动有趣高低错落起来,试图营造出能让孩子们自娱自乐“野蛮生长”的空间,也好让父母们偷得浮生半日闲。
PROJECT
项目名称 : 维塔兰德亲子餐厅
设计师(公司) : 古鲁奇公司
设计总监 : 利旭恒
专案设计 : 许娇娇
设计团队 : 利旭恒 ,许娇娇,张晓环
客 户 : 维塔兰德亲子餐厅
项目位置 : 北京
项目面积 : 500平方米
完成时间 : 2019年06月
文 字 : 朱圆欣
摄 影 : 鲁鲁西
客服
消息
收藏
下载
最近



































