查看完整案例


收藏

下载
设计说明
项目名称 | 佛山顺德大良华侨城天鹅湖A10
项目地点 | 顺德大良南国东路与碧桂路交汇处华侨城天鹅湖
项目面积 | 1800㎡
完成时间 | 2019年12月
主案设计 | 罗海珠
设计助理 | 魏立江
设计团队 | 嘉索空间设计有限公司
艺术指导 | 罗海珠
开 发 商 | 佛山市顺德区CCT华侨城集团有限公司
空间设计 | 嘉索空间设计有限公司
设计说明:
1800㎡现代中式-------一方闲雅,温润的家
在忙碌的时代,诗意栖居是外在,旷达天性是内在。
历经世事,早已不为具体物质生活所动,追求精神上的从容、平和、宁静,能让我们超然世外又萦怀于心的只有自宅,不在乎陋室亦或豪庭,适合即可。
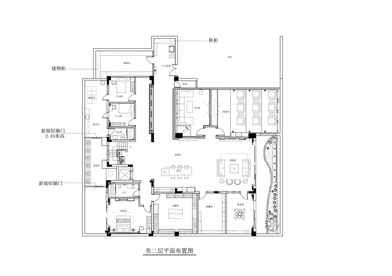
负二层入口小景气韵生动,玄关与休闲厅透景相承,光影的随机流动增添了自然的趣味、涵养。闲时与友在吧台区小酌三两杯,还能在休息日与家人看电影,增加隔代间的感情,休闲娱乐同时,放松身心,相得益彰。
内部通过楼梯上来是负一层,玻璃通透,让空间更具趣味和互动性。偏厅雅集,明亮大气,品茶、赏花,无论是春华秋实,还是嫩芽枯枝,在时光的流连中,守得一份从容和淡然。
兴趣室别具情趣,是满足隔代亲的爷孙游艺的专属空间。可以在健身房里洒脱汗水,也可以到泳池肆意游畅,运动一番到温水池放松洗净,夕阳洒落,极致享受的家庭级Spa。
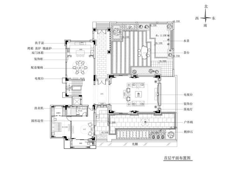
首层与其他空间有着完美的区域界线划分,虽然各空间独立但却又完美的结合,整体的空间动线流畅自然,作为一栋别墅待客区域,沉稳厚重的中式家具系奠定了高端的繁华都市品味,增添了宁静舒适之感。
暖棕色木质配以深色钢的精致,大地色系呈现出归属感,隐含一种稳稳的温馨感。开放式厨房贯通餐厅,开阳舒适。
二层房间相对更具现代特色,简约的背景墙透出国际潮流的设计语汇,又不失细节,竖向条达的机理贯穿的木质跟淡雅温馨的颜色,勾勒出房间主人的个性。
整个三层围绕主人生活形态展开,落笔成浓重的画面。配色沉稳的同时,更强调了手感上的丰富,木材、金属为背景更衬托出布艺丝绵的亲肤感。
这栋别墅不仅要融会贯通三代人的生活空间,还要集生活方式一体,设计师与客户磨合相融,打造了一个最适合的生活空间。
公司简介:
嘉索空间设计公司是佛山嘉盛致悦装饰公司的子公司,而嘉盛致悦公司创立于20世纪90年代初,有着三十年的发展历程。近年来,公司靠着以服务至上的理念赢得了许多客户的好评,随着公司的发展,规范化的服务程序也顺应而生。深圳嘉索设计公司主要负责总公司的设计业务,业务涵盖商业设计、办公设计、建筑设计、展示设计、园林设计。软装设计、住宅设计等。
负一层平面图
负二层平面图
一层平面图
二层平面图
三层平面图
顶层平面图
客服
消息
收藏
下载
最近









































