查看完整案例


收藏

下载
项目名称:法国RésidenceCaractère公寓
位置:法国
设计公司:Taillandier ArchitectesAssociés
摄影师:罗兰·哈尔伯(Roland Halbe)
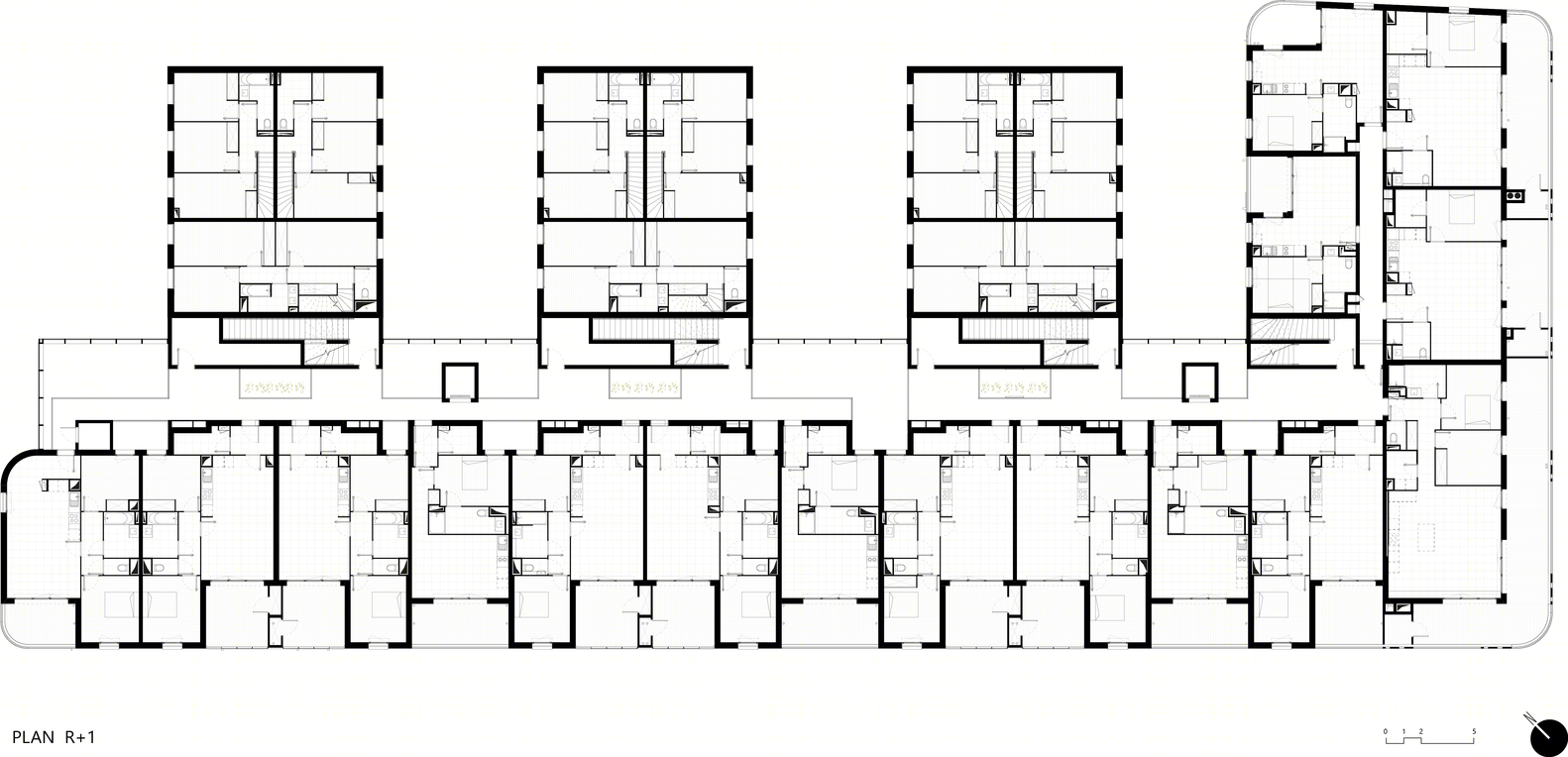
RésidenceCaractère的地块由著名的景观勾勒,包括中央公园和几个长廊,提供人行道,自行车道,骑马道,健康和健身路线,运动场和城市公园。根据ZAC的指导方针,城市存在的目标是面对公园的广阔开放空间的连续立面。不同的建筑高度使该项目可以连接到北面博泽尔公社的城市结构,该结构主要由单独的房屋组成。L形体积采用这种形式,从主要道路开始,一直缠绕到主要景观沟后退的20m处。在地块的中央,放置了三个中间壳体块,与ZAC相邻地块上的比例尺相呼应。RésidenceCaractère提供两种居住级别:集体公寓和中层公寓,两者均可通过将两者结合在一起的一条通道来访问。该中央通道在水平和垂直方向上展开,构成了项目的支柱。与室内街道相似,这种宽敞的玻璃空间构成了自然采光且通风的走廊,提供了不受元素保护的共享空间的舒适感,同时仍可广泛地通向景观,以及(在下面的室内通道上有更多详细信息)。主要容积中包含78套公寓以及位于底楼的办公空间。在较高的楼层,可通过室内通道的走道进入公寓,室内通道成为与邻居会面和交流的空间。宽敞的平台可欣赏到通道或花园的美景,可通往三到四套公寓。
该L形建筑物悬挑在地面上方,以减轻主体体积。该体积的弯曲角度也有助于软化该项目在城市中的存在。建筑高度为5层至2层。这在主要道路上产生了强大的影响力,同时还与Beauzelle镇的各个住房社区相连:该项目上升至Persée大道上的5层楼,并沿着de Grenade路线逐渐下降到北端的2层楼地块,突出了邻近的独立房屋。中央通道的玻璃体积也随着主体建筑的高度而形成阶梯状。在地块的中心,该项目包括12个中间住房单元,其中6栋是复式别墅,分别从一楼进入。这些单元的私密性是通过在每个单独的入口之前从共享的中央通道移动到私人通道的入口顺序来保持的。大窗户在立面上营造出节奏感,为砖砌立面增添生气,同时为公寓带来最大的自然采光。这三个街区之间的间距足够大,可以营造出舒适的视线,而在较高的楼层上,窗户交错排列,可以避免彼此直接看向。中间房屋之间的空间也可以从公寓中欣赏到风景。在二楼,设计了一个屋顶露台,通过使用封闭凉廊的透雕砖墙避免从高层直接观看,从而在不完全关闭空间的情况下过滤掉景色。混合的浅色砖的材料和建筑物的圆角使RésidenceCaractère具有柔软性和流动性,与ZACAndromède社区的生活质量相称。
石头色的砖砌覆盖了L型主建筑,从而彰显了立面的城市质感,在de Grenade路线上交替布置了凹廊,形成缝隙,而廊则被白色金属百叶窗封闭。这些凉廊的内部全是白色,与砖砌的立面形成鲜明对比,为建筑物增添了些许亮丽感。沿着Persée大道,立面采用连续的凉廊的节奏,这些凉廊由透雕的砖砌屏风排列而成,形成了私人储藏室。为了突出主要的彩色石头建筑与周围单个住宅区之间的对比,位于地块中央的三个街区覆盖着红砖,营造出温馨宜人的内部花园。灰色的窗户和钢结构与主楼形成鲜明对比。最后,室内通道由白色钢制框架构成,该白色钢制框架在中间外壳块之间的区域中填充有水平玻璃百叶窗,或者在其上方的部分中填充有透明玻璃面板。这将创建一个充满光的通道,并按不同级别的透明度排序。
ResidenceCaractère围绕着构成该项目骨干的生物气候室内通道而组织。这个封闭的空间宽敞明亮,通风良好,随季节而变化。在冬季,通道会在室外寒冷的地方与温暖的公寓内部之间形成一个舒适的中间空间。一方面,这减少了公寓的热损失,同时还创建了一个不受元素保护的舒适共享空间。在夏季,自然通风系统可在通道中保持较低的温度,从而在室内营造出令人耳目一新的内部花园,以散发热量。该缓冲空间还可以激活公寓的自然通风。我们将这个室内通道的生物气候功能发挥到最大,从而为该项目带来最大的附加值。易于实施的系统对通道的技术设计发挥了最大的能量作用,而不会影响立面的美观。通过使用旋转百叶窗创建此缓冲体积。百叶窗机械地枢转,以便通过精确的通风调节温度。
法国RésidenceCaractère公寓外部实景图
法国RésidenceCaractère公寓内部实景图
法国RésidenceCaractère公寓平面图
法国RésidenceCaractère公寓剖面图
法国RésidenceCaractère公寓立面图
客服
消息
收藏
下载
最近





































