查看完整案例


收藏

下载
Beijing Air China flight simulation training center
位置: 北京
分类:教育建筑
内容:实景照片
图片来源:中国建筑设计院有限公司
图片:11张
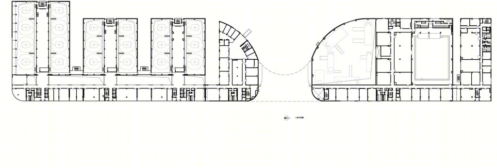
国航飞行模拟训练中心项目位于北京市顺义区后沙裕镇,是国航培养航空人才、展示企业文化、宣传其独特形象的重要基地。基地被
市政道路
分成3块用地,工程包括飞行训练大楼、乘务训练大楼、教学楼、图书信息,体能训练,办公,酒店公寓等多个子项工程。规划以外围的飞行楼、乘务楼、机务楼、公寓等形成外部围合的“干”;以教学、行政、图书、会议等核心区围合形成“核”,高效便捷的“空中连廊”形成“网”把各部分联络起来,景观绿地形成“叶”,共同构成外部围合、内部开放、功能齐备、联系便捷的建筑布局。
北京国航飞行模拟训练中心外部实景图
北京国航飞行模拟训练中心内部实景图
北京国航飞行模拟训练中心平面图
客服
消息
收藏
下载
最近























