查看完整案例


收藏

下载
寄席以禅
△建筑外立面|摄影©徐义稳
寄席位于无锡市中心的小娄巷历史风貌区,是一家高级日料店,业主希望寄席是一个空间氛围与气质俱佳的场所。项目场地的空间形态丰富,因此设计师把空间的秩序放到首位,以空间剧情的方式引人入胜,通过空间的转乘来让访客体验到层层开合,渐入佳境。
入口以低调的尺度开篇,转入第一重场景是一个走廊,设置场地高差让节奏贯穿于行走体验中,天花与墙面保留了原结构而地面与墙板构成新的呼应关系,内庭与外院分别赋予了“静”与“动”的主题。
一层餐厅作为开放式的空间,让顾客有多重的视角看到食物制作的过程。二层以“漂浮的灯笼”作为概念,将每个包间独立开来,光影重叠构成画面。
△项目视频
1 序厅
△摄影©徐义稳它在城中小巷,入口以谦逊的方式迎接访客,空间有转折,不大的序厅暗含深意。2 景廊
光线由暗到明,低处的条形灯指引向前,叙事缓缓铺开。
3 松院
△禅意松院|摄影©徐义稳
水声渐近,汀步限定了行走的路径,让景色与人物对话。
△松院质朴石材|摄影©徐义稳
石庭
△摄影©徐义稳
移门背后的石庭院以天光为线索,铺陈简洁映照出室内的丰富。
△石庭|摄影©徐义稳
△摄影©徐义稳
5 堂厅
△摄影©徐义稳
△堂厅|摄影©徐义稳
以氛围作为开场,红铜的背景与板前的厨师似剧场的演绎,热烈低回并置的结构融合人物的往来,营造出别有洞天的图景。
△摄影©徐义稳
△摄影©徐义稳
△摄影©徐义稳
△摄影©徐义稳
△摄影©徐义稳
6 厢室
△厢室|摄影©徐义稳
包房以本身结构为界限内明外暗,灯光相互映射,独立而呼应。
△摄影©徐义稳
△摄影©徐义稳
△摄影©徐义稳
△摄影©徐义稳
△摄影©徐义稳
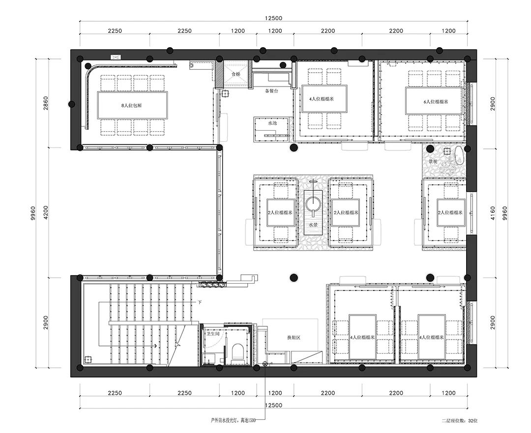
设计图纸
△一层平面
△二层平面
项目名称|寄席日料
项目地址|中国江苏
项目面积|310㎡
设计范围|室内设计、景观设计
设计机构|南筑设计事务所
设计总监|苏阳
空间设计|王海 龚道湘 姚育铭
软装设计|程征
软装团队|陈姝杭 徐玮雯
完成时间|2021.01
项目摄影|徐义稳
苏阳
南筑设计联合创始人设计总监
南筑设计团队
南筑设计成立于 2016 年,合伙人均为 85 后,分别来自建筑、室内设计与艺术领域,目前在上海/无锡/成都三地设立办公室。团队致力于人文体验的空间研究,在中国当代发展进程中充斥大量低廉、快速与批量化的设计与产品,南筑设计则希望致力于创新与体验感的研究,以新的视角传递人文设计的理念,创造差异化的空间设计。
部分案例
△南筑设计|定胜堂
△南筑设计|融创星耀干洗中心
△南筑设计|融创融汇 CLUB
△南筑设计|融创星耀形象馆
普罗旺斯百年建筑改造的精品酒店,建筑的时间感比薰衣草更迷人!
首发 | 里约设计 / 琉璃光院
希腊安缦今日重新开业|有一种精神,叫安缦!
首发|| 东半球最高豪宅地标 A-ONE,世界东方的云上会客厅!
客服
消息
收藏
下载
最近



























































