查看完整案例


收藏

下载
项目位于深圳市龙岗区南海街道下李朗社区中部地带,地处片区 6 大城市居住中心,项目周边被华润 40 万平米旧改项目环绕。北连下李朗村、下李朗幼儿园、下李朗小学,百分百创意广场;东倚广深铁路,南靠水官高速及佳兆业科技广场第三人民医院、3 号地铁线;西临布澜路、下李朗珠宝园、龙岗软件园,区域位置突出,交通便捷,配套齐全。
针对本项目的地理位置优势,设计师从项目定位、居住客户群体、功能空间、生活习惯等多方位考虑想要呈现出来的最终效果。常说设计就是在做“生活方式”,最大的一批“80 后”已近不惑之年,在近 20 年的财富积累中,他们成为当前购房的主力军。而成为购房主力军的他们追求什么?时代的更迭让人们对住房的需求不再停留于刚需,在文化娱乐不断丰盈的今天,80 后的精神世界,文化认知相较于从前的购房客户有了质的飞跃,他们向往的理想居所更是注重精神层次的构筑。
01120
在水泥森林铸造的都市中,只有家是心灵的休歇处,每个被用心设计的空间里,都会融入主人对向往生活的某种期待。
客、餐厅处在同一个开放空间,整体以米白色、浅灰色和深咖色搭配。为主客厅无过多装饰元素经典的家具组成恰到好处,无主灯设计更是简约大气。
用深咖色木饰面为背景衬托出餐厅就餐的仪式感,没有过多繁琐的装饰反而是我们应该赋予空间更多的自由流畅。条杆吊灯现代感十足,大理石餐桌与灰色皮座椅饰面同木质扶手的搭配呼应了空间中的复古感。
高级的空间感受来自于独白。主卧以米白为主色调,不对称的床头柜做法让人眼前一亮,让人感受着卧室的独特慵懒,同时又极好地与衣柜衔接,增加收纳的细节功能。
次卧室采用同样的处理方式,尽可能地把空间主体让给居者。干净利落的床头背景墙,木质床头柜兼备充电与置物的功能小巧且实用。
粉白色充斥着女儿房的空间视觉美感,各式各样可爱精巧的摆件陈设,线条丰富的家具搭配,在空间中对话碰撞,表现出饱满而趣味的明快气质。线条简约的和风柜面装饰和挂画,掩映着柔和的粉色色调,贴心匹配小女儿活泼可爱的格调喜好。
卫生间和厨房用白色和深灰色搭配,透着干净、雅致的气息。地面选用大面积石材砖铺贴划分空间,洗浴区整体大理石分隔出导水槽,体现了人性化的需求关怀。
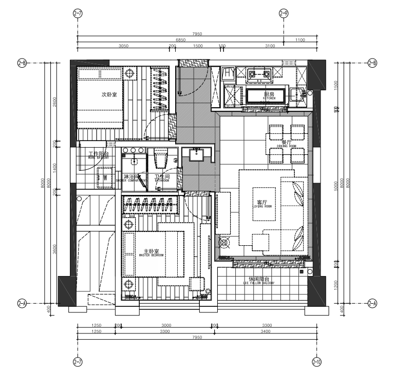
平面图
DESIGN PLAN
080
这是一套建筑面积 80 平米的公寓户型。原户型为两居布局,考虑项目的客户群体及销售需要,需将两室两厅户型改为三室两厅户型。从户型结构上看,将入户门移位及原本位于户型中间的卫生间改到北边,使得原户型有了较大的变化。
原本狭长间接采光的次卧室阳台也通过尺寸的精准规划变成了南向儿童房,实现了两房变三房的“神奇”变化。
同时,根据尺寸的推敲,将空间的收纳面积延展至原户型的一倍,使得这样的小户型空间将实用性与美观性、功能性有效结合。
这就是在设计前期——“户型优化”的作用,是设计师为户型做“量身定制”的基础。
本案的设计表达格调,以极致的当代设计美学呈现,并拥有属于自己的艺术。还在于体现简约性的设计元素,几何线条以及清晰的结构和秩序感。设计师将现代几何元素与极简主义碰撞打造出艺术且现代的设计。
有效的设计并不总是一定要有大预算加持,就像小公寓的空间也不一定只能是灰色和沉闷的。这个精致的小公寓就以其内部高级灰、卡其色及白色等色彩、别致的几何纹理和对现代板式家具的创造性使用而受到很多白领的青睐。
经过设计师的精心布局,将客餐厅、厨房空间感有效的扩大。拆除大部分隔墙,使紧凑型公寓变得明亮、实用,并完全满足现代需求。
主卧室保留了原户型的位置,最大程度地利用好南向卧室的朝向,同时增加了主卧阳台,使得通风采光更为舒适。这样的小户型公寓能带双阳台的设计已是非常难得。
阳台改成的儿童房,空间开敞舒适,完全满足卧室及书写功能的需求。太空主题的软装搭配,既具有童趣,又为小空间带来了一份活力。
次卧室也同样设计精巧,充满人文关怀,书桌及衣柜有序结合,以木色、深灰色和浅灰色的搭配,空间的色调层次丰富。悬挂式壁架形成有趣的背景,桌面小装饰为家增添了个性。
总体来说,小户型设计上需凸显格调和韵味,透露出独特的细腻,大胆用色彩,巧妙地结合材质、纹理、色彩,以及空间格局形式的内在力量,最大程度地体现功能的优势。
平面图
DESIGN PLAN
项目信息
ABOUT THEPROJECT
项目名称│深圳梓盛发·万象里园
项目地点│广东深圳
委托单位│深圳梓盛发地产
设计团队│周美清 宋仁泽 谢名雪 鲍春晓 潘菲菲 曾慧婷 杨国胜
设计主创│杨添天 赵彦乐 粟卫
设计面积│120㎡&80㎡
完成时间│2021 年 10 月
摄影单位│江南
关于设计公司
ABOUT THE DESIGN COMPANY
域度空间设计 2015 年成立于中国深圳。公司由设计咨询策划、建筑室内设计、室内外软装设计、采购实施等多专业部门与精英组成。致力于房地产样板房、会所、售楼处、酒店、商业办公、展览展示、高端私人住宅以及批量精装修设计一体化全程项目管理服务,探索室内人文空间设计与建筑环境设计的结合与执行落地。
本案由域度空间设计提供,为授权稿件。
POPULAR ESSAY RECOMMENDATIONS
首发 | 华墨国际 X 矩阵纵横:当代诗意,戏剧人生
首发 | 万科×安想设计:相遇云城,打造多元 SOHO
首发 | 德沐&飞视:以自然造境,温蕴儒雅
# 投稿&商务
客服
消息
收藏
下载
最近

















































