查看完整案例


收藏

下载
人心很难居住在这个数字时代。我想建造的是那种让人心居住、扎根的地方——安藤忠雄
“小隐隐于山,大隐隐于市”,“大隐”,即于闹中取静,尘世常常让青年不再感知内心,生活变得嘈杂,身心变得疲惫。该如何寻觅「一隅静地」让我们得以喘息,让我们得享其静,逃脱喧闹的浮世,找回自己的「本源」?
"The real faint in the city, small faint in the wild.", "big hidden", refers to seeking peace and quiet in noisy surroundings. The world often keeps young people from feeling their hearts. Life becomes noisy, while their gets physically and mentally fatigue. How can we find "a quiet place" so that we can breathe, enjoy its peace, get away from the hustle and bustle and find our "origin."
「古城新归兮」
| 改造前后对比
建筑设计
BWA 博万
明镜高悬的新安县衙,穿街走巷的青石板路。南头古城,自晋朝以来有 1700 年历史,是深圳城市的原点,承载了无数“深漂”的梦想与生活,它曾经历了无数“深漂”的迁移与回归。如今,“蝶变重生”的南头古城,街巷熙攘之间开始了安放的生活。
Nantou ancient city, with a history of 1700 years since the Jin Dynasty, is the origin of Shenzhen city, carrying countless dreams and lives of "Shenzhen drifters". It sees their migration and regression. Today, Nantou ancient city is "reborn", where stable lives starts between streets and alleys.
樱花飘落的速度是秒速五厘米,而我们被时代的洪流裹挟着前进。在这飞速运转的时代,SD 设计的泊寓南头古城店共享空间于洪流中寻觅静地、需要关注年轻客群的精神和身体享受,与南头古城一起秉承共建、共治、共创、共享的社群理念,缔造属于「城市青年的新归兮」。
Cherry blossoms fall at a speed of five centimeters per second, while we are pushed forward by the torrent of the times. In this era of rapid operation, the shared space of Boyu in Nantou ancient city designed by SD Design offers young customers the spiritual and physical enjoyment. Together with Nantou ancient city, it adheres to the community concept of co-construction, co-governance, co-creation and sharing to create a "new habitat of urban youth".
「逃脱樊笼,复归本源」
「不期而“愈”」忻悦之喜;
「漫步喵星」乐享自在;
「解压胶囊」寻觅归依;
「FUN 肆猫社」偿其所欲。
愿在此处,探寻平行世界中的另一个“你”,逃脱樊笼,复归本源。
设计尊重建筑原有空间结构的同时,试图找到能够改变现状的路径。室内场景空间运用高低错落的楼梯结构,塑造隐形的边界。将各功能空间连接起来,同时延展不同切面下的具象场景。一切有序而又不拘于序,形成了多层次的空间体验。
在自然和艺术、人文的基础上构建精神上的归栖之所。让久在樊笼的人们在方寸之间即可畅享自在的身心。将人从繁忙的工作与社交生活中解构出来,回归「本源」。
| 一层演变图
二层演变图
01「不期而 "愈"」
境遇·竟愈,于时光之中寻本真
暮归的行人,影子被夕阳拉长。街口轮班睁眼的红绿灯面对来来往往的车辆,总是顾此失彼。
Shortly before dusk, the shadow of pedestrians is lengthened by the sunset. The shifting traffic lights at the corner of the street has been always facing with vehicles coming and going.
活着就要安然自在,顺应本心,虽说浮生如逆旅,也应多寻些盎然之意趣。
To live is to feel safe and comfortable and to be yourself. Although life is one long, hard road, the interest in it is worth seeking for.
建筑设计 ©BWA 博万
开放通透的玻璃窗,无论是归家还是过客,皆可与室内猫爬架上的猫咪互动,拉近了与人们之间的距离感,充满了互动性与趣味性,吸引着人们放下戒备,欣喜进入。
No matter if you are coming home or passing by, you can interact with the cats through the transparent glass, or on the cat tree, which shortens the distance between cats with people. In this space full of interactivity and interest, people are attracted to put down their guard and enter with joy.
多功能区
跨过门槛,刹那间就被万象森林般的墙面地毯所吸引,伴随着室内材质中低调优雅与宁静的气息,融合映入眼帘时光调色板中的一抹绿意,「成功治愈了归栖的心灵」。
Across the threshold, the wall with carpet stands out like a forest. The low-key elegance and tranquility in the indoor material, integrating a touch of green in the time palette, "curing the returning soul".
接待台
红色作为空间中的点缀色,中和了空间的古朴色调与原有建筑空间结构下的深沉与肃穆,让整个空间氛围更加具有质感且温柔,以一颗无尘的心,「还原生命的本真」。
As an embellishment color in the space, red neutralizes the simple tone of the space and the depth and solemnity under the original architectural space structure, giving the whole space atmosphere more texture and gentleness, and "restoring the true nature of life" with a dust-free heart.
夜幕降临之际,点亮几盏小灯,照亮归家路,仿佛内心的方寸之地也被照亮,「让人心生安宁」。
02 「漫步喵星」
浮生偷取半日闲暇,一撸解千愁。
古时陆游曾写过:“溪柴火软蛮毡暖,我与狸奴不出门”的豪言。猫之于身处 996 快节奏之下年轻人的意义,不仅仅是看护,更重要是寄情。无论是“独居”“租房”还是“空巢”的情感追求,还是“不打扰”“不麻烦”的价值追求,放慢脚步,「愿这里是你的寻安」。
In ancient times, Lu you once wrote: "the stream firewood is soft and warm, and I don’t go out with the beaver slave". The significance of cats to young people under the fast pace of 996 is not only care, but also affection. Whether it’s the emotional pursuit of "living alone", "renting a house" or "empty nest", or the value pursuit of "don’t disturb" and "don’t bother", please slow down. "May this be your peace."
| 猫爬架
以大型猫爬架为特色,枝叶为脉络,互动延伸,将猫爬架安置在核心,成为人们步入空间的第一视觉落点,连接入口和水吧区、一层和二层,融合“互动”的概念向外扩散,以充满雕塑感以及流动性的手法,来构造动线丰富的序列组合。
This large cat tree stands at the center, with branches and leaves as the context for interactive extension, which is the first visual landing point for people to enter the space. It connects the entrance and the water bar area, the first and second floors as well, integrating the concept of "interaction", so as to construct a rich sequence combination of moving lines by means of sculpture and fluidity.
猫仓区
轻轻转身,便与不期而遇的温柔相撞,目光所及之处,尽是雅致与温和。影木和紫玫瑰不锈钢的材质组合,仿佛空间的寂静,便是一切最好的答案。
Turn around gently, and you will collide with the unexpected tenderness. Where your eyes reach, there are elegant and gentle. The combination of shadow wood and purple rose stainless steel seems to be the silence of space, which is the best answer.
猫仓设计的灵感,源于对猫咪行为习惯和本能心理的洞察,集寄存服务一体。明暗的变化、光影的移动、狭小的空间,使猫咪获得安全感。
The inspiration of the design of the cat compartment is derived from the insight into the cat’s behavior habits and instinctive psychology. It integrates the storage service, the change of light and shade, the movement of light and shadow and the narrow space, so that the cat can get a sense of security.
二层观猫区
对于深度吸猫的人,猫是朋友、是伴侣、是不同躯壳下两个平等的灵魂。由复合发纹紫玫瑰不锈钢生成的半弧形“胶囊”,辅以植物地毯上墙,是整个空间的亮点,猫咪天性喜高,站在二楼的“胶囊”空间,可以轻松的与猫猫视觉互动。
For people who love cats deeply, cats are friends, partners and two equal souls under different bodies. The semi arc "capsule" generated by the composite hair pattern purple rose stainless steel, supplemented by the plant carpet on the wall, is the highlight of the whole space. Cats like high nature. Standing in the "capsule" space on the second floor, you can easily interact with cats visually.
「人与猫,彼此平等」
03 「解压仓」
冷静与热情的空间,压力的顿消
人生万象,生活百态,繁忙都市的我们在追寻人生的理想,解压仓让生活在喧嚣城市,面对快节奏极大压力的我们得到一种放松和休息,给我们提供心灵庇护的港湾,愉悦身心。
闲暇的日常中,我们期盼着,一场邂逅,一场相约,一场三五好友的小聚。
We are pursuing the ideal of life in a busy city. Decompression warehouse allows us to relax and rest in the face of fast-paced and great pressure in a noisy city, providing us with a harbor for spiritual asylum and physical and mental pleasure. In our spare time, we look forward to an encounter, an appointment and a small gathering with friends.
多功能区
觥筹间的闲适,弥漫着乐趣,木和金属的刚柔并济,为空间注入温暖的色调和生机,以热烈的形式给予生活仪式感。打通空间,让整个空间通透流动,释放出大量体积过度到里层空间,让公共空间与安静的私密空间形成了独特的空间节奏。
The combination of hardness and softness of wood and metal injects warm tone and vitality into the space and gives a sense of life ceremony in a warm form. Open up the space, and let the whole space flow through, release a large amount of volume to the inner space, and form a unique space rhythm between the public space and the quiet private space.
二楼水吧
安静的吧台空间成为偶尔想要舒缓内心压力的好去处,红色所深藏的热情和张扬时刻帮助这我们释放消极的负能量,重启活力十足的工作状态。
The quiet bar space has become a good place to relieve our inner pressure occasionally. The enthusiasm and publicity hidden in red help us release negative energy and restart our energetic working state.
二楼休憩区光线的渲染和人们的闲谈,自然增加场所的浓密关系,拉近了我们的距离。白色沉静的沙发,木色优雅的地板,红色耀眼的金属让质感充盈整个空间。不同的色演绎着我们不同的气质,影响着这个空间中不同的我们。沉稳与炙热的反差色调,在碰撞交融中呈现了这个空间的包容度。
The rendering of light and people’s talk naturally increase the dense relationship between and shorten our distance. The quiet white sofa, the elegant wood floor and the dazzling red metal fulfill the whole texture atmosphere. Different colors deduce our different temperament and affect different us in this space. The contrast tone of calm and hot presents the tolerance of this space in the collision and blending.
「在这里,即使无知和无趣的人,也有属于他们的故事」。
04「FUN 肆猫社」
“同情心和设身处地为别人着想的技能,或许是最有价值的东西”,于青年一代而言不可或缺的 FUN 肆空间仿佛穿梭于泊寓的每一处角隅,为设计注入灵魂,得于古文中商铺寓意的“肆”是设计师对此处的概念缩影,光临此处时能够「偿其所欲,乐享其中」。
"Compassion and the skill of putting yourself in the other’s shoes are perhaps the most valuable things". For the young generation, the indispensable fun space seems to shuttle through every corner of the park, bringing the design to life. The word "肆" implied by the shops in the ancient Chinese is the epitome of the designer’s concept here, with hope that it is a place where everyone find pleasure.
商区
“设计师对于空间有着不断探索,追求一种「真实与想象」空间结合的成效”,适用各种实质物料、光线的融合;撩人眼球的色彩、质感让你陷入视觉盛宴的迷宫;合理的交往购置空间;超然自得的设计理念;为来者创造完善的生活空间,演绎设计的多元场景。
Designers are constantly exploring space, pursuing an effect of the combination of "reality and imagination" space, which is suitable for the integration of various substantive materials and light. Eye-catching color and texture make you fall into the maze of visual feast. The reasonable communication space and detached design concept are integrated to create a perfect living space for the newcomers and deduce the diversified scenes of design.
自然与金属质感的交融,仿佛在空间与装置的之间衔接了一条无形纽带。几何形状的穿插错落,为商品的放置提供饱有设计感的依存之处,同时营造一种怡然的社交、消费氛围。
The blending of nature and metal texture seems to connect an invisible link between space and device. The interspersed geometric shapes provide a sense of design dependence for the placement of goods, and create a pleasant social and consumer atmosphere.
05「细部世界」
细节不是“细枝末节”,而是用心
是一种认真的态度和科学的精神。——汪中求
拱形门
弧形的门洞、植物地毯上墙共同形成了丰富的空间层次,强化了空间的趣味,构筑了空间的独特格调。作为功能体的门洞,是人穿梭于不同空间的传送门,在材质、灯光、肌理的映射下,「虚实之间,回归本源」。
The curved door opening and the upper wall of the plant carpet together form a rich spatial level, strengthen the interest of the space and build a unique style of the space.
As a functional body, the door opening is a portal for people to shuttle through different spaces. Under the mapping of material, light and texture, "between virtual and real, return to the origin".
墙面软包
空间中肆意挥洒的绿色、毛绒质感的软包,增加着自然的纹理,为一层带来独特的观感,身处其中,春意盈盈,心生暖暖。
The green and plush soft bags in the space increase the natural texture and bring a unique impression to the first floor. When you are in it, spring is spreading everywhere in your heart with warm.
楼梯室内场景空间运用高低错落的楼梯结构,塑造隐形的边界,将各功能空间连接起来,同时延展不同切面下的具象场景。斜斜的楼梯,垫脚的阶石,却写着人间最美的情意。
The indoor scene space uses the high and low staircase structure to shape the invisible boundary, connect the functional spaces, and extend the concrete scenes under different sections at the same time. Inclined stairs and stepping stones together write the most beautiful feelings in the world.
猫仓
猫有不同的个性,需要的健康空间也不尽相同,猫仓的设计要顾全它们爱跳高、爱探索,渴望变化、要隐私、怕太热、爱发呆的天性。
Cats have different personalities and different needs for health spaces. The design of cat barn should take into account their nature of love for high jump, exploration, desire for change, privacy, fear of heat and nature of daze.
那一柔美的灯光,像一个明亮的猫咪眼眸,让我们仿佛远离了黑暗,置身于一个有着明亮天窗的梦幻乐园,温馨而又美好。
That soft light, like a bright cat’s eyes, makes us feel as if we are far away from the darkness and in a dream paradise with a bright skylight, warm and beautiful.
货架
圆是稳定而持久,是饱满、永恒、无始无终、循环不止,在这里「既是理想,更是永恒」。
“日出而作,日落而归的逐梦者,愿你在这里超越孤独和城市水泥森林带来的疲惫,静下心来,放慢脚步复归本源”。
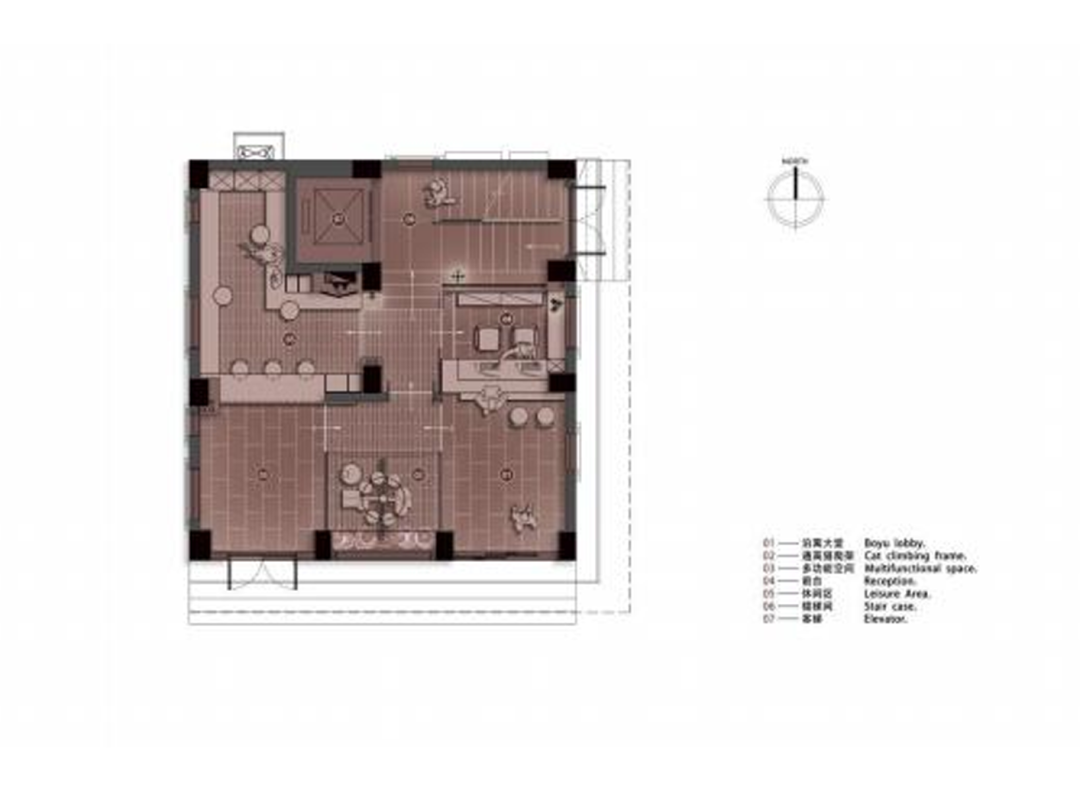
滑动查看平面图
项目名称 | 万科南头古城泊寓猫舍公区
项目代建 | 深圳市万科城市发展有限公司
项目业主 | 深圳市泊寓租赁服务有限公司
项目地点 | 中国深圳南头古城
项目时间 | 2021.08
设计面积 | 220.88
设计团队 | SD Design 深圳市艾斯蒂设计有限公司
设计总监 | 宋红阳、李欣
项目主创 | 黄俊瑛
设计参与 | 李展鹏、梁振榕
软装总监 | 宋嘉音
软装参与 | 黄思燕、武梁、陈昱琦、李焱
设计管理 | 万科李松、泊寓宗献瑞
万科工程 | 李进强、姚文雄
项目主编 | 唐思宇、廖蕾、占蕊晨、彭文
建筑设计 | BWA 博万建筑
项目摄影 | 聂晓聪
特别鸣谢 | 爪爪喵星球 kingdom
“SD 设计”是一家专注于高端商业地产、精装修设计与研发、教育空间、商业旧改为主的先锋设计品牌。目前团队成员 80 余人,主创团队在国内著名设计事务所共事十余载,具有丰富多元的设计专业经验。项目组织架构稳定,建立有完善的项目运作与管理系统,有效控制项目实施全过程的顺利进行。保障设计成果的完美实现,积极分担客户在项目管理方面的投入,为客户提供专业全面的设计服务。
SD 为“School of Design”即“设计学院”的缩写,主创团队秉承探索研究精神,多年来坚持挖掘东方人文精髓,并将其融入现代设计之中,打造“现代美学”与“东方哲学”相融合的空间。致力于打造富有创意和历久不衰的设计,影响和改善人们的生活和工作方式的设计,为客户提供一个与众不同并舒适的生活环境。
明雾创作 | PREDREAM 概念店
IN.X 屋里门外|| 徐记海鲜万象天地店
IDAD 久度设计 | 力高佛山西樵颐尚嘉园售楼处
柏舍×华墨 | 深铁·瑞城精装样板房
客服
消息
收藏
下载
最近



























































