查看完整案例


收藏

下载
六盘水,别名中国凉都,位于贵州西部乌蒙山区。当地文化历史悠久,底蕴深厚,民族风俗浓郁,穿梭于这座城市,会感受着当地独有的红色文化肌理。这些红色文化,被深深的烙印在城市每个角落,同时也成为了本案创作灵感,牧笛希望为这座城市打造一所古今相融、时尚雅奢的“文化行馆”,通过富有文化情谊的手法表达融汇古今的深意。
/壹繁花似锦,美景连绵///寻觅一段诗意时光
繁花纹样的吊顶将诗意与柔情融入空间,营造出繁花似锦的艺术氛围,一花一影,一亮一暗,一虚一实,增添了诗情画意的柔美感,与自然相融相生。
空间中刻意营造出简洁的线条感,更显生动深邃,与装饰相辅相成,惊艳空间的繁花是艺术的馈赠,尊贵典雅的空间体验感更使诗情画意与线条合二为一。
/贰
凤鸣朝阳,超逸绝尘///
演绎那一抹红的诗情画意
以贵州山脉为元素,以震撼的金属装置画来描绘贵阳的秀丽山川,竹栅隔断将视线引入到大型金属立体装置,层叠的近山远山,极赋代入感,增加空间的丰富性,层次感,增强视觉冲击力。
横平竖直的线条,既融合了中国传统文化的韵味,又与现代建筑风格相融,整体空间通透,空间内大面积的落地玻璃有着强烈的视觉冲击,沉浸其中,细细品味城市肌理与空间中的联系。
艺术展区展现了浓厚的贵州建筑文化,以贵阳文昌阁为设计灵感,吊装的建筑装置吸引宾客的眼球,放置文昌阁建筑模型及书籍进行造景,艺术展区墙面以贵阳古建筑剪影做点缀,增强视觉体验及艺术感,长桌的饰品及书籍体现了贵阳的建筑文化及人文情怀,供宾客的翻阅及赏析。
洽谈区以舒适简洁的四人位为宾客提供舒适洽谈的场所,禅意的桌椅及极具古典韵味的饰品都体现了浓厚的贵州文化。红色的花艺点缀整个空间,增加了空间的色彩活跃度。
运用独特的山石艺术造型雕塑作为吧台元素,顶面的水滴吊灯犹如绵绵细雨中雨滴,打造简洁禅意的艺术氛围,在隔断墙外侧增加壁灯,增加画面感及仪式感,赋予空间浓郁的中式韵味。
/叁
如沐春风,心旷神怡///
行走于空间中的全新体验
空间由柔和的中性色展现,通过雕塑的形态、装饰灯的搭配、大理石的质感、简洁的线条、色彩的运用……一系列与空间相得益彰却又饱含诗意。光一寸一寸地落于空间,神秘感与序列感也由此产生。
在充满中式元素的空间中,欣赏、驻足、观摩、用心感受着空间带来的雍容气质。勾勒出完美贴合当地人文情怀和特色的尊贵场所。
一小桥,一流水
一楼台,一亭阁
一青砖,一黛瓦
一古巷,一油纸伞
一条千年沧桑的青石板
/效果图
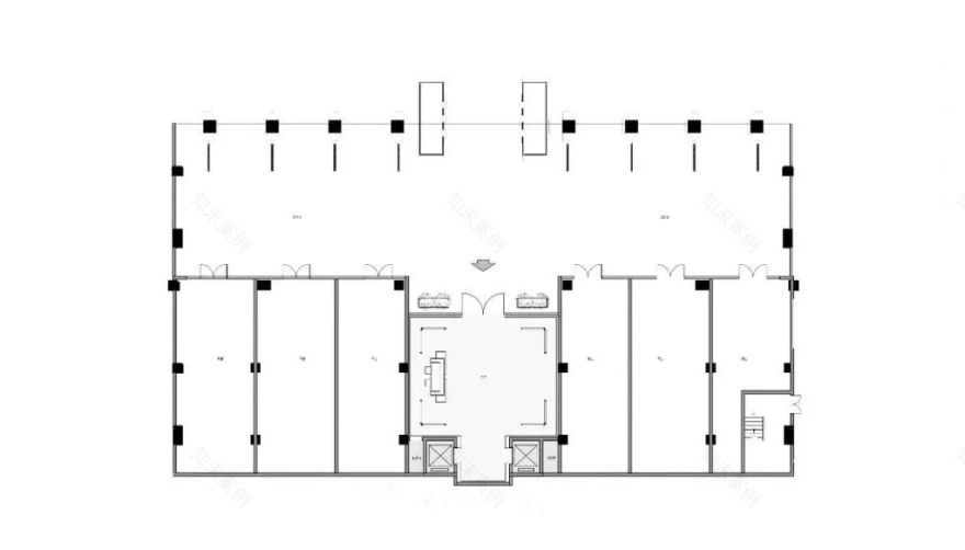
负一楼平面布置图
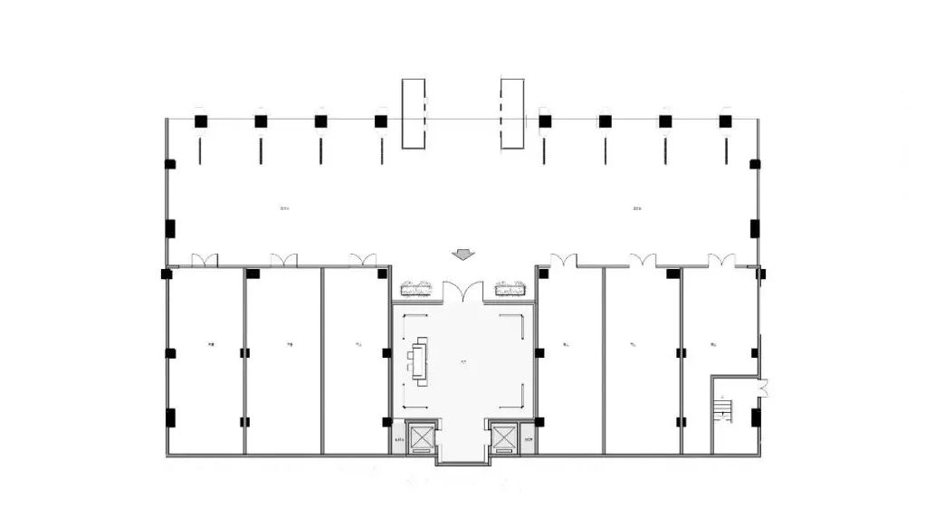
一楼平面布置图
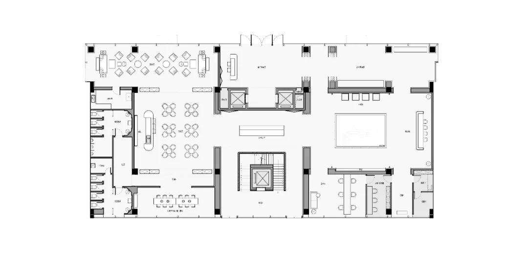
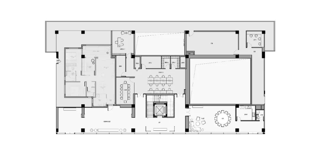
二楼平面布置图
项目名称 | 新城·凤凰台体验中心
业主信息 | 新城控股集团
地理位置 | 中国·贵州
完成时间 | 2020
设计面积 |
1150
硬装设计 | 牧笛设计
软装设计 | 牧笛设计
项目摄影 | 王厅
创始人&设计总监 / 毛明镜
由毛明镜先生创立的 MAUDEA 牧笛设计成立于 2011 年,坐落于中国上海。致力于为国内不同行业的一流企业提供国际化的建筑、景观、室内、以及产品设计服务。公司项目遍布全国,并获得诸多国内外权威设计奖项,是一家具备多元化设计经验的合伙人制设计师事务所。
MAUDEA 秉承严谨的设计态度,打造充满深厚文化底蕴与丰富情感的内涵空间。结合全球化的设计理念,力求设计不是表象而是呼应心境的写照,从而细致丰富的将美学表达。
牧笛设计近期案例
万科·湖山源著别墅样板间
新城 云昱东方 阜阳体验中心
联发万科海上明月体验中心
万科·翡翠东第
Germans Ermičs / Ombré Glass Chair
Jacob Hashimoto / 双色云
Katsura Funakoshi / Wood Carving
TONY CRAGG / “非自然选择”的展览
客服
消息
收藏
下载
最近











































