查看完整案例


收藏

下载
清远又称“凤城”,是海上丝绸之路和陆上丝绸之路的对接地,是中原文化向岭南传播的前沿地。也是中国十大绿色城市、休闲城市、生态旅游城市之一。
在位于清远的实地蔷薇熙岸销售中心,设计师打造了一个自然主义的诗意栖居。提炼山林、城市的几何形态并符号化,让阳光撒入室内游走于“林”景中,令人沉醉于静谧。
建筑设计采用大空间容纳小空间的设计概念。建筑是最简单的几何造型,主体的建筑内包含有几个小的体量,有着不同功能。绿色植物延伸入室内,模糊了室内外的空间界线。整个售楼处建筑是通过桁架结构、半透明双坡屋顶的构成方式形成一个通透、发光的玻璃盒子。透明性使建筑在白天获得充足光线,在夜晚又成为了一个散发着柔光的展馆。
室内延续了建筑的“极简风格”。设计师致力于用理性的方式去诠释当代都市与人居的关系,简单的手法表现优雅气质,营造了兼备科技感与品质感的写意空间。
室内引进景观绿植,并结合开放座椅,为参观者创造了一个精心设计的花园空间。整体以盒中盒的形体呈现,穿梭于中的是清新自然的树木,绿篱与竹林也是引领客户的流线。
空间的基调以白色、绿色为主。软装搭配均以较简洁造型及哑光白色,低饱和度材质来体现,营造相对
清新、清爽、开放的空间感受
在家具选型上选择了较轻便,方便挪动的休闲座椅款式;灯具的款型同样现代,特别是签约区的“飞碟”造型与售楼处整体的科技感相呼应。
设计师在竹林边设置了几组发光雕塑,如同竹林中冒出的雨后春笋般给人春意盎然之生机感。
沙盘区位于室内小体量建筑内,新媒体的运用让其艺术感和科技感兼备。
科技给生活带来全新的可能性,智能家居已然是未来生活发展趋势。为展现智能生活,我们特意在售楼处设计了一个智能体验馆,纯粹流畅的空间结构,并附加上顺应结构的灯带,空间的科技感自然而成。智能屏幕互动中,展现科技生活的样貌。
此项目摒弃了传统中规中矩的售楼处氛围,通过室内绿植打造并结合高科技产品,给人更轻松愉悦,现代化的体验感受。
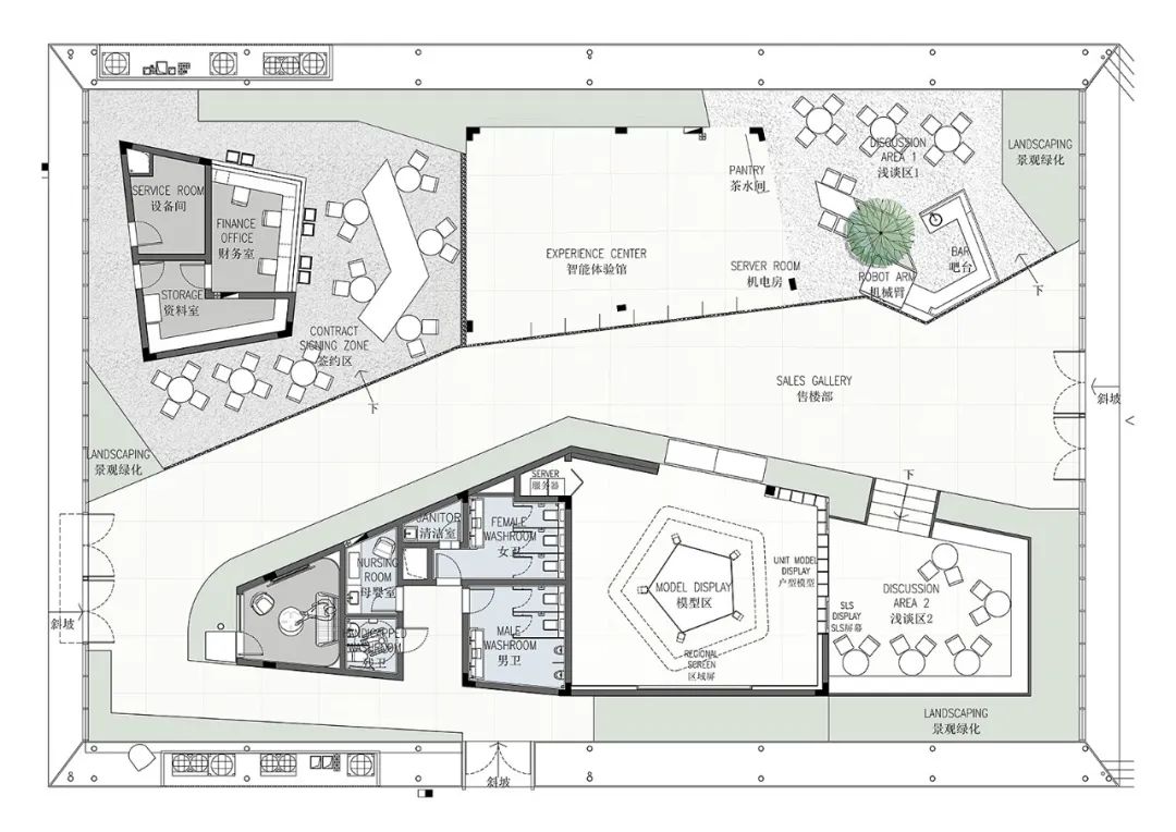
平面图
项目资料
项目名称:实地清远蔷薇熙岸销售中心
项目地址:清远
项目面积:售楼处 759㎡
软装:斯库图拉(上海)SCULTURA
软装总监:Canning、Janice 周逍阳
软装团队:金嫣敏
设计单位:新加坡 FORMWERKZ
设计总监:Gwen Tan
业主单位:实地地产 SEEDLAND
业主团队:展示中心团队
摄影师:孙骏
斯库图拉(上海)SCULTURA 成立于 2015 年,以国际视野专注软装设计服务,不断以实力赢得众多知名地产及餐饮企业的合作与支持,始终奉行创新至上的价值观,塑造时代品格,构筑有艺术质感的生活。
本案由斯库图拉提供,为授权稿件
精 选 推 荐
多元生活的理想家,质感百变超混搭!
独家首发
极趣、创意,get 沁入式梦幻体验!
独家首发
328㎡简璞美居,骨子里的淡雅中式风!
独家首发
觅一处都市森林,把自然安置在生活里!
独家首发
联 系 我 们
添加以下任何信息请注明来意
投稿热线:
sheyi006
郁经理
15365133087
媒体总监:祝主编
18013312730
欢迎大家星标不错过任何一个好设计!
客服
消息
收藏
下载
最近



































