查看完整案例

收藏

下载
对设计风格产生影响的要素有很多,其中城市气质是时常提及到的一点。
成都,一座国际化的城市,积极蓬勃的力量让发展脚步越走越快。
这一次我们把目光收回,重新审视那些打动人心的天然产物,向天府之国最原始的城市气质发起探究。
成都奥园锦官芳华位于熊猫大道,坐拥约 3000 亩的北湖公园、约 2100 亩凤凰山公园、约 1000 亩大熊猫繁殖基地、约 2930 亩国际熊猫风情小镇等近万亩生态屏障。
陈设设计由丰富的生态资源起意,持续升级的文化与城市原生魅力带领我们开启这场解码之旅。
CHAPTER 1
熊猫迎客来
悠然自得的熊猫举着竹子憨坐在前台迎接来客,向到来的人们带来笑意,由意境递进至心境,原本素雅空旷的室内瞬间被注入萌趣。
设计师擅长用天然元素诠释空间,入户门厅没有遮掩,阳光肆意照进室内,万物生灵的力量自然而然向外到内,任其伸展。
CHAPTER 2
风潇潇 竹飘娆
也许是与生俱来的基因传承,竹,清雅脱俗,不管出现在什么样的风格中,总能带着东方的魂。
假说我们把熊猫比作成都的魂,那竹就是城市气质的魄。据记载自 1993 年起,成都每年都会举行竹类相关展览。竹,与这个城市的联系密不可分。
元禾大千设计团队从城市的符号中获取材质灵感,将寻常生活可见的竹透过艺术化的方式表现。不止于形式上的创新,而是引发以小见大的思考,指引人们的思绪回望城市的气质。
「熊猫与竹」既是成都的名片,又是空间引导性元素。从入户到整体动线的起承转合,陈设设计融合独到的东方美学,大量留白突出设计重点,艺术解码之旅步步向上更加清晰。
CHAPTER 3
聚于上自在得闲
空间的转换,由熊猫与竹做指引。
在这个尺度开阔的区域,大型吊灯寥寥几笔潇洒扬起,奠定空间平和的调性。米灰色铺满目之所及,座椅呈围合式组合矩阵排列,家具选择介于地板与墙面之间的灰棕色,整体色彩统一和谐,透露出朴实无华的宁静。
大型落地窗不作任何遮挡,随天外日光倾斜,任窗外树叶飘洒,自有一方天地可谈可闲。材质、光感、艺术三者之间彼此烘托构成一景。
闲适淡然的空间逸趣成为闹市中的逃离之所,我们用设计放大城市气质,与来客轻松对话。
风从东方来,竹舞锦官芳华里
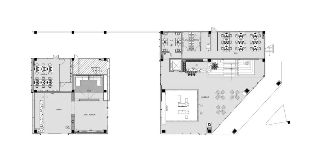
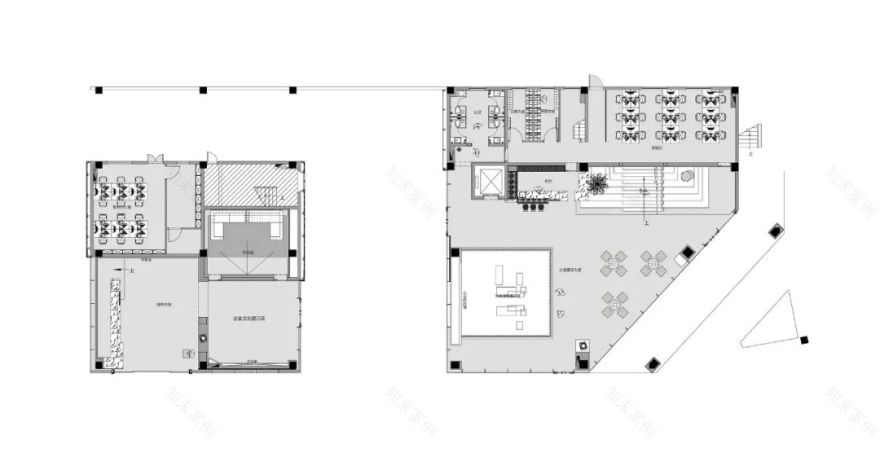
一层平面图
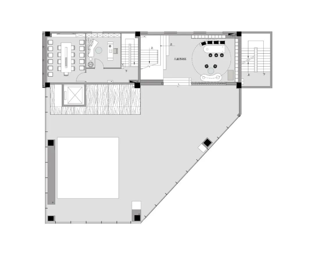
夹层平面图
二层平面图
项目名称 | 奥园锦官芳华销售中心
项目地址 | 成都
软装设计 | 元禾大千
硬装设计 | 千迈设计
设计时间 |
2020.8
完工时间 |
2020.10
空间面积 | 920㎡
特别支持 | 奥园集团
摄影团队 | 冷風
元禾大千,是一个以艺术为驱动力的软装设计品牌。专注于售楼中心、样板间、酒店、会所等公共空间,以深度、全面、专业的态度提供从空间装饰设计、艺术定制化生产、采购到落地布场、推广宣传等各环节的整体项目设计管理服务。
元禾大千诞生自 2007 年,前身为大千画廊,在空间装饰领域沉淀 20 余年,目前总部设在重庆,拥有深圳、成都、杭州三家分公司,员工逾 300 人,项目遍布全国。本着艺术成就空间价值的服务理念,多年来长期与国内知名房地产开发企业共同发展,用艺术化的空间装饰助力项目价值成就。
元禾大千近期案例
保利誉都花园销售中心
重庆阳光城悦江山
泉林黄金小镇六期 1 区航天飞行体验馆
客服
消息
收藏
下载
最近












































