查看完整案例


收藏

下载
逸秀东方
漫岭雾朦胧,欣然凝作琼。
莹莹临玉界,皓皓步天宫。
风起掀云浪,日蒸飞蜡虹。
回头看远树,景色已葱茏。
潇湘毓秀,钟灵万象《山海经》有云:澧沅之风,交潇湘之渊。湘水,致意叠峦之间,写意时光流转,延绵着“楚汉名城”千年之古韵。长沙,又名星城,拥揽山、水、洲、城,开万境,立万象,裁抒自然之禅,尽陈人文之蕴。其间万境纳藏于心,合而诗意丛深、人文纵深,敛纳古今之意趣,清逸灵秀。在万境潇湘的设计中,设计师梁智德先生传递了万象由心、境界洞开的东方禅意。设计依循潇湘八景的艺术主线,或乘风骋志,或逐水之溯,解构晶莹剔透的雾凇物象,于山水诗画之间,达至天人合一的哲美臻境。
隽岫缀境,清逸生蕴
物形表象的渲染描摹,精神视像的化形延展,皆归于设计师艺术笔法的融通与洞察。
光影随风入诗境,建筑的美学尺度悉数衬于可见的山石、水幕、折阶、庭树,与无限绵长的人文底蕴相和,构建出一方灵韵天成而隐逸自在的天地。
水景的回环动线以建筑为圆心视点,经由石阶周折引入,设计所要传递的东方隐逸层层递进,曲径纵深,流水潺潺。
于方圆之间,造物,造景,亦造境。
檐侧落雨帘,大珠小珠浑然归一,又周而往复,激起点点涟漪,回旋在空濛的意境之中。
观庭于竹,山水归逸
庭者,堂前阶也;
院者,周坦也。
建山水,植松竹,依轴为序归置山水动线。
长幅泼墨山水画卷围合起建筑与堂前朗阔之地,山石水景各有逸趣,又富于形、归于道,重置当代语境下的东方文化认同感。
云纹墙面上雕镂的半透屏风圆融雅正,以金属穿孔板为材,在漏景中定格流云纹样,勾勒出轻灵入胜的美学意涵。
阶梯装置取象自湘江的形意,涵容其柔与美,立体解构,以周折的线条铺叙力量感,突显半空的建筑层次,删芜就简中亦有空灵意境。
微风细细,修竹影交加,月色与流水雅澹相生,让人恍若栖隐山林,尘嚣皆滤,心归静宁。
凇晶凝魄,灵秀在境
步入空间,平沙落雁之景描于水墨画卷上,三五成群的大雁,空际盘旋,倏隐倏显,定格其间雅致素净的玄灰主调,近相呼应室外山水景观意境。
设计师从棱角分明的雾凇切割面获取灵感,以几何立面体块的形式重构了接待台与背景墙,融注进当代艺术的气息,在视觉变幻中,展呈美学万象的不同截面。
空间布局上先藏后露,随之徐徐行进,感受几何块面带来的闭合与通透等变化,以及视野延伸下的物我状态。
行至转角处,借助墙体前后块面的错落,大理石与木艺拼接出一个清静端雅的水吧空间,起承转合的雅棕与玄灰主调,涵容书架上瓷器、花艺、卷帙的比例,构图上呈现一种清新澄净的艺术感。
恍若千年时光留痕于此,一树梨花光影呈画,盏茶致知音,清气萦绕久。
心揽东方,虚实游骋
沙盘区轩然朗阔,几何块状的叠加,运用于沙盘底座,延续了端秀而雅正的秩序感,与层次分明、疏密有致的木艺天花相映成趣,衔接起峰峦百转、岚烟迂濛的画意诗情,于温煦淡雅的氛围中,一探空间的境中深蕴。
木艺天花的不规则层次,恰似山峦的连绵起伏状,又如玲珑精致的雾凇切割面,设计的寓意游走在虚实之间,于东方情致的隐喻中,并置为空间格调的韵脚,立意高远,诗性旷达。
一株梨树立于山石端景上,远观有雾凇般的清透玉质,满目玉树琼枝,凝住“梨花千树雪”的高意雅境。
大面积的玻璃轩窗,搭配水墨叠峰的卷帘,一开一阖间,意境互换,室内外的自然与人文相融共生。
溯源潇湘八景,俯仰山水之间。设计师以清逸灵秀的当代设计,辅之东方的物象美学与深厚的精神底蕴,诠释万境潇湘之于品质人居的拓展意义。
在设计中,设计师追溯本源,立意营造,呈现了自然与传统交叠、人文与当代并置的隐逸场景,将空间的平面范式扬升至立体视像的高度,真正让人观境由心,归逸山水。
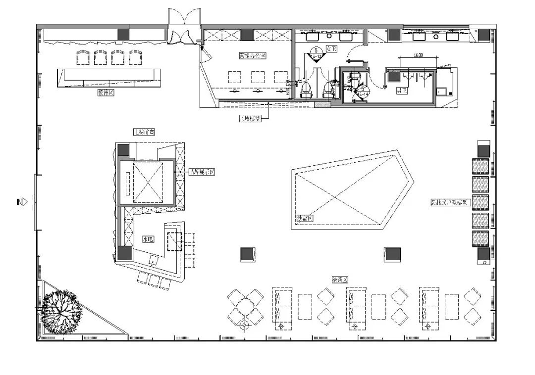
▲ 首层平面图
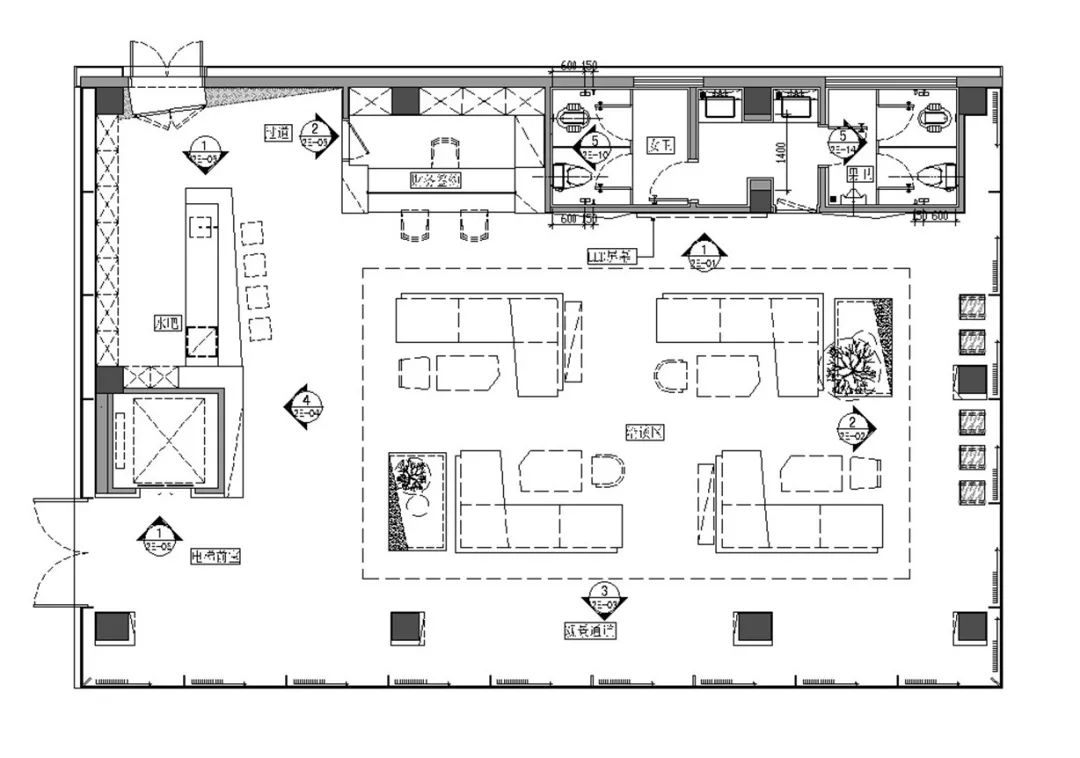
▲ 二层平面图
项目名称:万境潇湘
项目地址:湖南长沙
项目面积:500㎡
竣工时间:2019 年
开发商:湖南矿梦置业开发有限公司
建筑设计:深圳市库博建筑设计事务所有限公司
景观设计:广州怡境景观设计有限公司
室内设计总监:梁智德
室内设计团队:梁淑华、林伟冰、刘原畅、王向荣、林观莲、李嘉慧、袁思颜
摄影师:翱翔
关于设计师梁智德
梁智德
本则设计创办人 | 设计总监
建筑学系专业出身,扎实的美学基础,贯通室内、园林、环境设计。
对东方传统文化、易学理念有个人独特的认识与理解,致力用一生来体悟,将这些传统的宝贵文化推广并传承下去。
他操刀设计过数以百计的地产和文旅项目,其中北有长白山池南区文旅度假项目,南有三亚亚龙湾畔华皓亚龙府合院,西有玉龙雪山脚下的金茂雪山语度假别墅,东有霍英东集团的南沙游艇会。
在众多的地产和文旅项目设计中,他主张道法自然,注重人文与自然的和谐结合。
客服
消息
收藏
下载
最近







































