查看完整案例


收藏

下载
风景秀丽之处,值得为自己、为家人修葺一个独一无二桃花源。它是远离都市烦嚣、重回自然怀抱的精神自留地,是静享闲情逸致的浪漫归处。
龙岩花漾江山墅比邻江山大峡谷风景区、文昌阁、后林壁、陈山等自然人文风景区,也出落秀气雅致,独具灵韵。
尊重琳琅山水的意蕴,不拘泥于传统中式的单调,利用大胆的中西元素碰撞,为度假墅居生活打造简明却内涵丰富的、“极简主义式”的雅致东方风情。
首层入户处,一个舒豪的品茶空间映入眼帘。
墙体由细腻的纹理刻画,主位背后屏风上的图案却是行云流水般畅快自由。
前后两处的互相对比呼应,一静一动,一粗一细,形成极为有趣的张力,似是暗喻着主人的精神世界。
案桌上留有一炉正旺的炭火,方便落座煮水、饮茶快意。
深夜围炉夜话,无论是迎客还是独酌,都能兴发几分疏野生猛的诗意。
▲1F 品茶区
▲楼梯间
书房里,别开一重禅意宁静天地。
木格栅虚虚实实地变化着,隔开小小的储藏空间,演绎光与影的朦胧之美。
静谧,内敛平和的氛围,让晨昏闲坐时的云卷云舒,也增添几分人文气息。
▲1F 书房
笔墨丹青的恣意延续到二层下沉式大客厅。
中央垂悬的的挂画一笔而成,如瀑布般从高处泻落,气势非凡,极好地强调了客厅高挑的层高结构。
道德经有言:道生一,一生二,二生三,三生万物。禅意中的哲学思考全蕴含在“一笔”中。
纤细的英文手写体,与那遒劲的笔触相映成趣。
设计师摒除艳丽繁复的装饰,直白简约的饰面和柔软的织物为空间定下淡泊简约的气质基调。
▲2F 客厅
栽一株绿植,全无传统盆景的刻意,反倒成就了一股打破沉闷的、蓬勃的张扬感。
家具带有现当代的造型,细节处却又暗暗藏着几分东方的含蓄。
光线经窗幔柔化后轻轻降落,各类中西元素杂而不乱地组合一起,令客厅的构图竟呈现出一抹微妙且耐人寻味的和谐与平衡。
▲客厅细节
餐厨空间兼容中西功能,同样透露着细节的精致。
由翠绿色大理石打造的西厨的中岛料理台,蕴藏着金石的意趣。
旁逸的枝叶诉说着毗山林而居的灵气自然。
优雅生活的临场感也因此跃然纸上。
▲2F 餐厨空间
主卧的空间氛围与客厅同宗同源。
客厅的装饰细节仿佛是预先埋藏的伏笔,草蛇灰线至主卧,得到了一一对应和相和,颇能引人会心一笑。
▲4F 主卧套间
为次卧注入不同的主题,不同风格的艺术装饰品各得其所,让家庭成员的墅居生活充满了中西共融的的双倍乐趣。
素净、温润,恰到好处的手笔,让空间的留白在宁静中显露精神的力量。
▲次卧
▲次卧
次卧透过极简的风格,将东方美学与西方意趣相互结合,设计出众多引人不断地探寻挖掘的丰富的细节。游走在传统和现代之间,中西元素的有趣对话充满了留白式的哲学和当代写意的灵动。图纸呈现
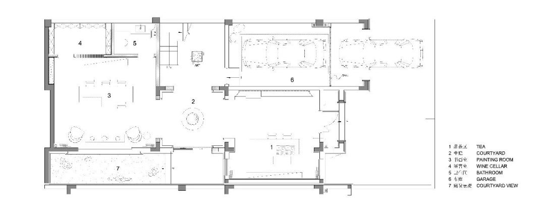
1F 平面布置图
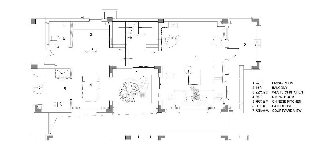
2F
平面布置图
3F
平面布置图
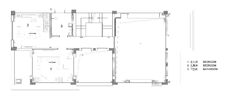
4F
平面布置图
项目名称:阳光城龙岩花漾江山别墅样板间
甲方信息:阳光城集团厦门公司
甲方团队:熊青、李科辉
项目面积:320 平米
硬装设计:上海柯翊建筑设计有限公司
设计团队:周晟、肖鹏
软装设计:上海璞辉空间设计有限公司
设计团队:尹志超、叶林娜、李连琳琛
摄影:魏已栋、赵宏飞
完工时间:2019 年 12 月
关于 KOYI 柯翊设计
KOYI 柯翊设计设计总监周晟
上海柯翊建筑设计有限公司是一家专业的室内设计公司。
专注于地产样板间、会所、售楼部、办公空间、商业空间、别墅、住宅等室内设计领域。
至今已完成多个地产室内设计项目,倍受业界好评以及客户的专业认可,以专业的设计能力领先于市场。
经过几年的发展,团队更是吸纳了一批来自国内外各大知名设计机构设计师的加入,形成了比肩行业内一线设计品牌的工作团队和组织架构。
我们年轻但经验丰富,秉承对设计的热爱和对自身价值的追求走到一起。
自信对前沿风尚的敏锐接触和对国内优质需求的深度了解,能够创造出更多优秀且充满惊喜的作品,服务更多期待创新的企业和个人,开创属于 KOYI 柯翊设计的一片天地!
代表作品
▲晋江海峡大都会·国府销售中心
▲重庆阳光城檀府大平层样板间
▲青岛青特悦海府售楼处会所
材料商/地产商/设计公司/空间视频
15365133087
本案由 KOYI 柯翊设计提供,为授权稿件
点击阅读原文,查看更多设计案例~
客服
消息
收藏
下载
最近





















































