查看完整案例

收藏

下载
设计在此处与彼时,仰望空间与生活的未来,回望脚下热土中的文化。
江南情韵是文化的情感连接,现代秩序是设计的理性落点,情怀铺陈,空间勾勒,重重似画,曲曲如屏。合能杭玥府,徐徐而来。
文雅几何“微风到帘栊,舞影入图绘。”江南的意蕴,采撷在婆娑的竹影间,游刃于山石水波与悠悠书香中。
U 形玻璃围合中的印象竹影,作为写意的隔断,划分着前场与中庭,柔和着空间的段落。
"水天溶漾画桡迟,人影鉴中移。"
影湛波平,佳期如梦。
几处别景,点缀着江南的梦。
"室雅何须大,花香不在多。"洽谈区是营销中心的书房,伴着书香与花香,合着白石与绿意,交流在文雅的愉悦中进行。
空间几许空间的开合序列,在定格与转承间,在线面体块中,层层推演。秩序之美与功能之需共生,大隐于市,或在其间。
那些构成的语汇,在典雅与精炼中,和着二维与三维的视角,描摹着空间的画卷。
"光影与共" "半亩方塘一鉴开,天光云影共徘徊" 水光石色间,是光阴的味道,留一段韶光,在此处,在彼时。
效果图
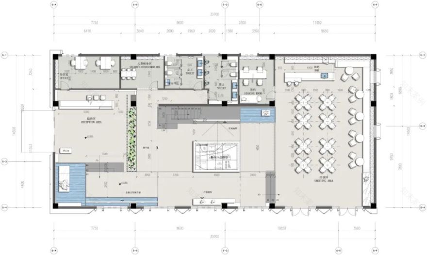
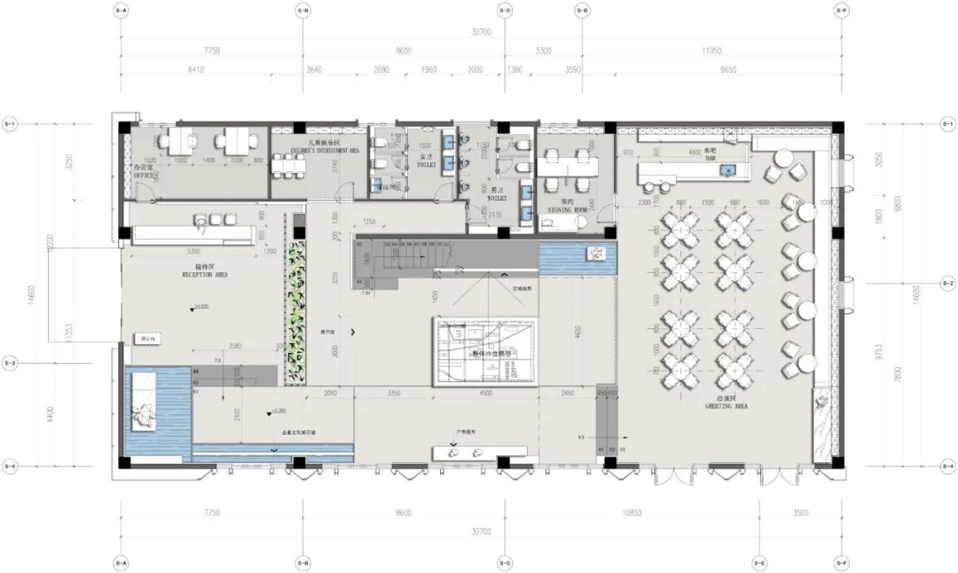
平面布置图
项目名称:杭州合能杭玥府售楼处
设计单位:当境设计
设计面积:约 500㎡
主创设计:黄晖
设计成员:董靓、范承禹、金志强、山旭东、高同彤
项目业主:合能地产
项目位置:浙江杭州
设计时间:2020 年 7 月
竣工时间:2021 年 1 月
黄晖
创始人、设计总监
当境设计成立于中国上海,致力于在全球视野下对当代设计的探索,创作时代前沿的作品。团队核心成员在室内设计领域都有超过十年以上的设计经验,参与过诸多大型公共项目设计,近年来专注于售楼处、样板房、配套酒店会所、配套综合商业设计,已成为地产领域许多标杆项目的合作伙伴。团队设计视野开阔,艺术交流广泛,提倡原创精神,打造高效率、高品质的设计机构。
本案由当境设计提供,为授权稿件
精 选 推 荐
苏州 400㎡暖灰大宅,通明洁净的生活享受!独家首发
106㎡ & 124㎡ 精致好宅,唤醒轻奢韵律!
独家首发
160㎡&180㎡现代美宅,雅致悠然,气质全开!
独家首发
邱德光:820㎡江南园林雅墅,遗落人间的梦幻仙境!
独家首发
联 系 我 们
添加以下任何信息请注明来意
投稿热线:
sheyi006
郁经理
15365133087
媒体总监:祝主编
18013312730
欢迎大家星标不错过任何一个好设计!
客服
消息
收藏
下载
最近














































