查看完整案例


收藏

下载
"我愿深深扎入生活,吮尽生活的骨髓,把一切不属于生活的内容剔除得干净利落。
"I would like to be deeply involved in life, to make the bones of life, and to remove everything that is not part of life."
梭罗在《瓦尔登湖》中对生活的审视,才是真相。
This is the truth of life that Thoreau mentioned in Walden.
阳春白雪不过是精加工的调味剂,吃多了味觉会麻木。就如同当今家宅设计中,趋同的精细化追求,使人乏味。因而,如何找到“回归本心的感动”,成为当下设计凾待突破的一大难点。
If a well-cooked cuisine added way too much condiment, it tastes numb after several tries. Just like the interior design nowadays, refined similarity makes it tasteless and bland. Finding the “heartbottom” touch is one of the design break point that we are looking for.
孙文设计事务打造的旭辉宸宇府剥离形式主义的外壳,将“人的体验和观感”作为切入点,以产品的全局性思维把控空间,挖掘人最原始的心理层面,让身心与空间产生真正的对话。
The Xuhui Polaris Mansion model house created by S.U.N Design takes personal experience and visual impression as the point cut to consider the overall space. By looking into the most primitive part of inner body, the design talks between mind and space.
取“围炉夜话”的意象作为贯穿整个设计的主题,是为了满足人对温暖最本能的渴望。
客厅以大面积的灰色调铺陈叙事,为传统性质的样板空间注入沉静而抚慰人心的力量。
Warmness is one of people’s most instinctive desires. Taken “Fireside Talk” as the design concept, the living room uses grey color tone just like a calm and peaceful story background.
墙上的现代都市风格画作,来自德国艺术家格哈德•里希特。他的“无主题艺术”,同设计师所追寻的“没有特定风格的表达”不谋而合。
The Non-objective Art by Gerhard Richter just coincident with what the designer looking for, to express design without a particular named style.
当黑夜接替白昼,家人在炉边围坐,一天的疲惫自会卸去。
在安宁之中,种种烦闷都会消散。
When night comes, the whole family sits around the fire. All kinds of exhaustion and trouble will disappear in such a peaceful and relaxing atmosphere.
餐厅与客厅连通的厨房是偌大的开敞空间。
灰绿色大理石材质岛台,为空间增加了几分细致入微的质感。
Large open kitchen connected to the living room with gray-green marble island adds a bit of refined texture to the space.
当一缕清早的阳光洒入室内,窗外的绿植映射出欣欣向荣的生命力量,在这里,一份温馨的早餐预示着新一天的开启。
When early morning sunlight shines into the room, the green plants outside the window brings thriving vitality. It was the place where a nice breakfast starts a fresh new day.
主卧
当步入三层的男女主人房,南向双阳台提供了更加宽广的视野深度,洄游动线使得窗外的景色尽收眼底。
When entering the master’s bedroom, the double-balcony provides a wider depth of field of view surrounding the whole floor.
大理石纹路的天然走向和质感粗凛的地毯,给柔和的整体加入局部锐化的视觉层次感。
The natural marble vein and rough rug texture add a touch of visual depth for the soft bedroom.
主卫
大面积玻璃石材工艺,为浴室空间营造明亮整洁的空间氛围。
不加赘余的线条,是对物料本真的尊重,传达屋主人对于美、真、淨的偏爱。
Well refined glass and marble creates a bright and neat bathroom atmosphere. Without any extra lines, it respects the essence of material itself and conveys the preference of beauty and cleanness.
男孩房
极简的风范,来自对纯粹、直观自然之美的执念,让低调的美感充盈在每一个角落。
The minimalist comes from the obsession with pure, intuitive and natural beauty, filling every single corner with understated beauty.
女孩房
女孩房间是米色系和治愈粉色系的巧妙结合。
波普风的拼接地毯和挂画,一改常规女孩房温柔乖巧的印象,进而彰显的是更为大胆活泼的形象。
Girl’s room is a subtle combination of beige and baby pink. Pop-style splicing rugs and artwork shows a bold and lively mood instead of a dull impression of gentle and well-behaved.
而每一个精心挑选的摆件,都在各自表达着情绪,承载着有关现在和未来不可言说的小秘密。
Every carefully selected piece of accessory expresses different emotions. Each of them tells a small secret about the present and future.
夹层花艺区,是日常为精神供给养料的狭小空间。墙纸饰面吸纳自然的色彩、肌理,在其中打理各色花艺,定气凝神间纯粹的观感被无限放大。
The floral art studio is more like anatural relaxing space, colorsand texture reflected on the wallpaper with various flowers magnifies the pure feeling of relaxation.
拾级而下至地下层空间,这里是一切隐秘的汇合处。
Stepping down to the basement, this is where all the secrets converged.
深色木框架构建了坚实的背景墙。
漫反射的灯光自上而下投射,映出每一件物体的质朴模样,为幽暗空间营造神圣气氛。
Firmly structured background wall made of dark wood with concealed lighting makes the tea room in a simple but Zen mood.
在这里,通过眼观、手触、鼻嗅点香参禅,可以在久违的仪式感中涤荡浮躁,找寻内心失去已久的平静秩序。
Here you can find yourself a long-lost peace by watching, touching and smelling.
透过一条火焰摇曳的狭长缝隙,可以瞥见另一引人入胜的画面。
从侧面走道绕过,便能收获豁然开朗的畅快感。
Look through the fireplace you will catch a sight of a fascinating space. By passing the sidewalk, a sense of openness appears.
天光自高处挑空倾泻而下,石墙似一块大画布,光线如同水墨晕染的层次向下渐而浓重。
Skylight pouring down from the double high celling shades the stone wall as a gradual light painting.
白色沙发是空间气质的具象化身,自有一股不食烟火的灵气。
另一侧墙面陈列着马术用具,和悄然伫立的经典藤编椅自成一体,是对贵族精神由内向外的凝视。
The white sofa figuratively embodies the space temperament while the equestrian equipment on the wall and the classic rattan chair matching with each other stands for the spirit of aristocratic spirit.
当炉火的白噪音和焚香味道交错,听与嗅觉的界限被打破,居住空间于人的奥义将秘而不宣。
“活在当下”的畅快,便能触发内心本真的感受。
When the white noise and the burning scent of the fire staggered, it breaks the boundary between hearing and smelling. The meaning of living space to every living soul remains as a secret. The sincere joy of “Carpe Diem” can trigger the real feeling in the deep heart.
项目名称 | 宸宇府排屋样板房
业主单位 | 旭辉地产/ 华宇地产 /禹洲地产
设计单位 | 首发孙文设计事务所
创意总监 | 孙洪涛
室内设计 | 郑水方、蔡启铭
软装设计 | 张志娟、刘倩
深化设计 | 郑雪玲、戴男
设计面积 | 360 平方米
项目地址 | 杭州市
摄影师 | 李恒
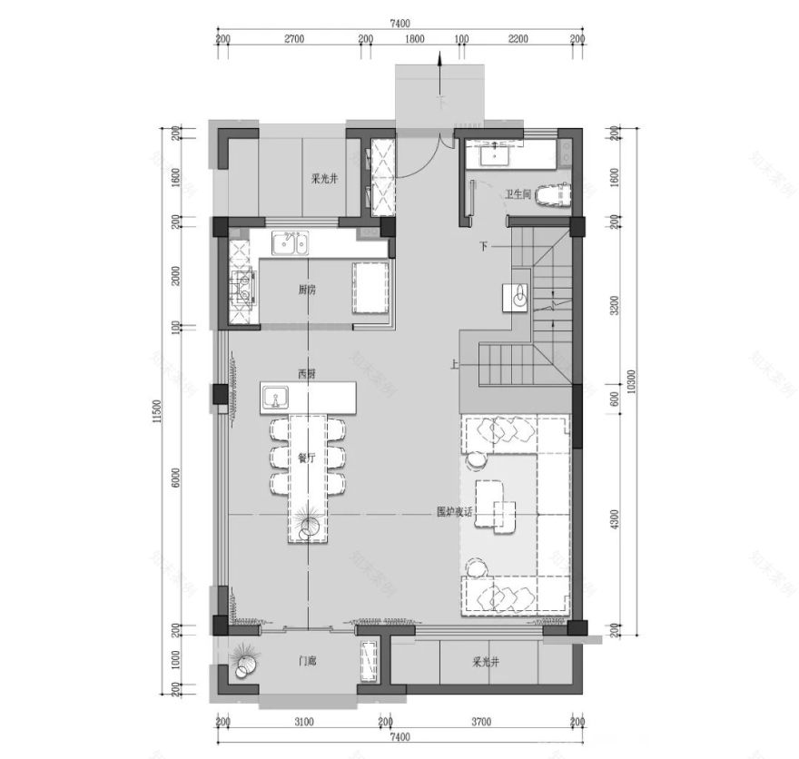
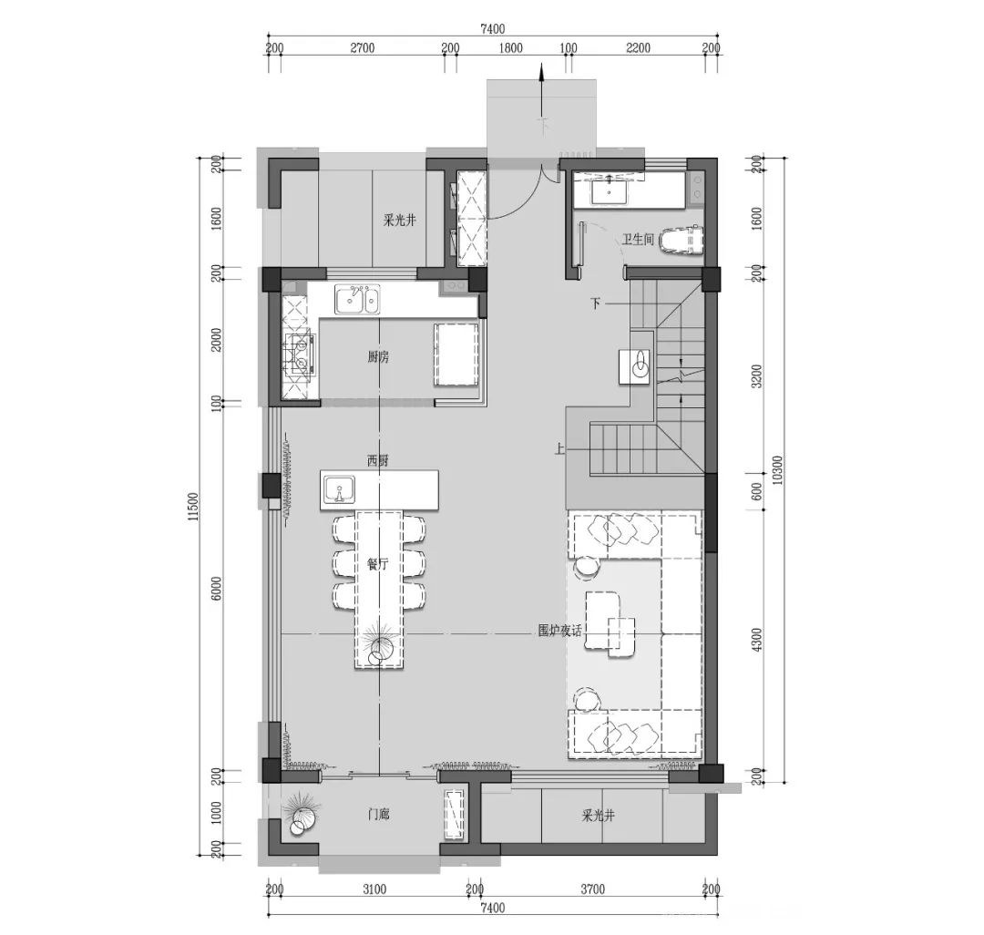
宸宇府排屋样板房图纸呈现
地下室平面图
夹层平面图
一层平面图
二层平面图
三层平面图
宸宇府排屋样板房
公司介绍
团队照
S.U.N DESIGN 孙文设计事务所有着 15 年丰富的室内设计、软装设计经验。这让团队所在星级酒店、顶级会所、高端地产样板房、地产售楼处及公建项目等设计领域有很高的造诣。
S.U.N 设计作品正如 S.U.N 三个字母组成一样 Simple(简单的);Unique(独特的);Natural(自然的) 一直坚持设计自然生长的理念,不断将原创的、简约的、自然的设计理念融入每一个设计作品中。
S.U.N DESIGN 孙文设计事务所设计作品获得包括 2019 INTERNATIONAL PROPERTYAWARD 国际地产大奖、2018 WORLD ARCHITECTURE FESTIVEL INSIDE 世界建筑节、2018 美国 INTERIOR DESIGN AWARD 室内设计奖、2018 意大利 A’DESIGN AWARD 金奖等。
供稿/S.U.NDESIGN孙文设计事务所
Gooobrand
品牌设计
客服
消息
收藏
下载
最近










































