查看完整案例


收藏

下载
清迈是泰国的第二大城市,有“北方玫瑰”之城。它曾今是泰国历史上第一个独立王朝——兰纳泰王朝的首都,因此是一个历史文化名城。2019 年 4 月,Amata 携团队在这文艺之城附近打造的 Little Shelter Hotel 精品酒店正式开业。
建筑
艺术的使命不是模仿自然,而是表现自然。
—巴尔扎克
酒店位于清迈,这座和环境相结合的建筑形式正是对过去壮丽的城市风光和当地建筑的一次再现。其中最具代表的是建筑的木制结构和木瓦倾斜屋顶。酒店附近拥有 700 年历史的城墙,面朝西面即是 420 平方米占地的朝湄平河,屋顶的西侧敞开于户外,形成一个屋顶平台,可供客人们在日落时欣赏河流全景。而酒店本身则仿佛坐落在一片森林之中。
设计通过使用传统木瓦来延续当地建筑的特征。这种有趣的材料系统已经历了数百年的发展。小尺寸的木瓦单元像鱼鳞般排列成一块密不透水的建筑平面。在项目中,建筑师试图将新的材料融入这一系统,以创造出富有现代感、同时又根植于传统的建筑表面。
建筑的屋顶和侧墙均使用了木瓦。在朝向河流的一侧,聚碳酸酯板被切割成与木瓦相同的尺寸,构建出一个半透明的立面。入口立面的顶部采用了实木的瓦片,这些木瓦从上方“洒落”下来,逐渐与聚碳酸酯表面融为一体。
虽然二者看似连接在一起,但实际上这种连续的半透明表面是通过特殊的半透明螺柱和透明螺钉而实现的。随着阳光照射在不同的材料上,建筑的立面将变得闪闪发光。透过立面的光线在不同的时间营造出不同的室内氛围。
到了夜晚,从建筑内部发出的光线让建筑看上去犹如河岸上的灯笼,比起建筑本身,更像是一件优美的工艺作品。
大堂与餐厅
公共区域的设计与建筑外部的简洁感形成和谐的呼应,呈现出画廊般的观感,空间顶部还装饰着专门定制的装置艺术品,其灵感源于经典的 Boh–Srang 伞,以精致而独特的造型对当地手工艺进行了现代化的诠释。
与大堂与咖啡吧相反,餐厅和酒吧选用暗灰色,营造出浪漫和温馨的休闲感觉。
餐厅的灯具选用和大厅同样的 Boh–Srang 伞元素,现代与传统的完美融合,如星星般点缀在空间中。
吧台线条简洁明了,均匀的光光线从背板后面溢出。
客房
所谓“精品”,酒店全部只有 14 间房,但是每一间都匹配不同主题,让住客每一次的到来都仿佛走进不同世界。
客房内部为客人们提供了发现清迈的全新视角。
天花板上装饰着与清迈的重要地点和事件有关的图像,包括古城墙、水灯节、松树林和 Pah-Chor 峡谷等等。
这些图像从天花板无限地延伸至覆盖以镜面的墙壁,带来一种超现实的无边界体验。
据设计公司所说,所有图像均是该项目设计师躺下来所拍摄,目的是希望入住者也能体验到身临其境的感觉。
客房的天花板上装饰着与清迈的重要地点和事件有关的图像。
项目名称 |
Little Shelter Hotel
客户名称 |
Little Shelter Co., Ltd.
项目地址 | 清迈,泰国
设计单位 |
Department of Architecture Co.
主任设计师 |
Amata Luphaiboon, Twitee Vajrabhaya
建筑设计团队 |
Pitchaya Poonsin, Tanadeth Mahapo lsirikun, Supavit Junsompitsiri
室内设计团队
Yada Pianpanit, Apisara Lertrattanakit
设计面积 | 890 平方米
设计周期 | 2017 年 5 月 – 2018 年 1 月
建设时间 | 2017 年 12 月 – 2019 年 4 月
摄影师 |
W Workspace Company Limited
DEPARTMENT OF ARCHITECTURE
Little Shelter Hotel
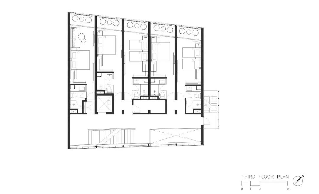
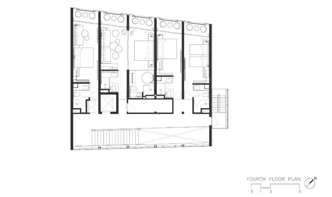
图纸呈现
一层平面图
二层平面图
三层平面图
四层平面图
立面图
剖面图
供稿 / Department of Architecture Co.
Gooobrand
品牌设计
客服
消息
收藏
下载
最近


















































