查看完整案例

收藏

下载
“仓阁”——首钢工舍智选假日酒店设计始于 2015 年 11 月,2018 年 7 月竣工。项目位于首钢老工业区北部,原为高炉空压机站、返焦返矿仓、低压配电室、N3-18 转运站等 4 个工业建筑,改造后成为一座特色精品酒店,同时为紧邻的北京 2022 冬奥组委办公区员工提供倒班住宿服务。
由客房阳台远眺首钢工业景观
设计最大限度地保留了原来废弃和预备拆除的工业建筑及其空间、结构和外部形态特征,将新结构见缝插针地植入其中并叠加数层,以容纳未来的使用功能:下部的大跨度厂房——“仓”作为公共活动空间,上部的客房层——“阁”漂浮在厂房之上。
被保留的“仓”与叠加其上的“阁”并置,形成强烈的新旧对比。同时,“仓”的局部增加了金属雨篷、室外楼梯等新构件,“阁”则在玻璃和金属的基础上局部使用木材等具有温暖感和生活气息的材料,使“仓阁”在人工与自然、工业与居住、历史与未来之间实现一种复杂微妙的平衡。
改造示意图
首钢工舍与远处的热风炉©陈颢
自西南望首钢工舍
©陈颢
室外楼梯©陈颢
新旧建筑相互穿插创造出一个令人兴奋的内部世界:“仓阁”北区由一高炉空压机站改造而成。
原建筑的东、西山墙及端跨结构得以保留,吊车梁、抗风柱、柱间支撑、空压机基础等极具工业特色的构件被戏剧性地暴露在大堂公共空间中,新结构则由下至上层层缩小,屋顶天光通过透光膜均匀漫射到环形走廊,使整个客房区域充满宁静氛围。
错落高耸的采光中庭在“阁”内形成颇具仪式感的“塔”型内腔,艺术灯具从天窗向下垂落,宛如一片轻盈虚透的金属幔帐,柔化了宁静硬朗的空间形式,与原始粗犷的工业遗存形成鲜明对比。
改造前西南鸟瞰照片
©郑旭航
门厅完整保留原厂房结构
©陈颢
中庭©陈颢
大堂吧,裸露的混凝土构件为原空压机基础©陈颢
客房层公共空间
©陈颢
“仓阁”南区由原返焦返矿仓、低压配电室、N3-18 转运站改造而成,3 组巨大的返矿仓金属料斗与检修楼梯被完整保留在全日餐厅内部。
料斗下部出料口改造为就餐空间的空调风口与照明光源,上方料斗的内部被别出心裁地改造为酒吧廊,客人穿行其间,获得独一无二的空间体验;客房层出檐深远,形成舒展的水平视野,在阳台上凭栏远眺,可俯瞰改造后的西十冬奥广场和远处石景山的自然风光。
原 N3-18 转运站被改造为楼梯间
©陈颢
全日餐厅
©陈颢
料斗下部出料口改造为就餐空间的空调风口与照明光源©陈颢
利用返矿仓改造成的酒吧
©陈颢
经过清理的金属料斗内部可供参观
设计过程中,建筑师与结构工程师密切配合,对原建筑进行全面的结构检测,确定了“拆除、加固、保留”相结合的结构处理方案;使用粒子喷射技术对需保留的涂料外墙进行清洗,在清除污垢的同时保留了数十年形成的岁月痕迹和历史信息。
南北区之间的天井©陈颢
“仓阁”是西十冬奥广场各单体中旧建筑保存最完整的一座,设计尊重工业遗存的原真性,延续首钢老工业区的历史记忆,通过新与旧的碰撞、功能与形式的互动,使场所蕴含的诗意和张力得以呈现。
它曾经是首钢厂区生产链条上不可或缺的一个节点,今天则是城市更新的一次生动实践,并与北京 2022 冬奥会的可持续理念高度契合。
自冬奥组委办公区望首钢工舍
©陈颢
改造前原状
©郑旭航
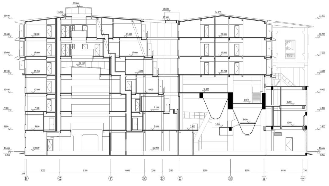
项目图纸
设计手稿
总平面图
首层平面图
六层平面图
西立面图
A-A 剖面图
项目名称:“仓阁”——首钢工舍智选假日酒店
建筑事务所:中国建筑设计研究院有限公司
主创建筑师:李兴钢、景泉、黎靓、涂嘉欢、郑旭航、田聪、高阳、张文娟、王梓淳、李秀萍、徐松月、马卓越、邢睿
项目详细地址:北京市石景山区
项目完成年份:2018 年
建筑面积(平方米): 9890 平方米
摄影师:陈颢、郑旭航
结构设计:王树乐、郭俊杰、居易
机电设计:申静(水)、郝洁(水)、祝秀娟(暖)、孟鑫(暖)、张祎琦(暖)、高学文(电)、王旭(电)、何学宇(电)、李宝华(电) 、张辉(电)、王昊(电)室内设计:曹阳、马萌雪、张秋雨、张洋洋、李小菲
▼ 网站最新 24 小时精彩项目集锦
更多海量精彩阅读
客服
消息
收藏
下载
最近





























