查看完整案例


收藏

下载
重建新生,凤凰涅槃
“生长”就是除了生命本身过去和未来都可以被囊括其中好的不好的都将一并接受并重新启程。
现代主义大师柯布西耶,注重设计中的秩序,他提倡在建筑设计之中,从纵深排列的平面中,创造出一个可以走进去的延伸空间幻像,达到一种通透感。
而室内设计中的通透感也源于这种从二维到三维的空间转化。
本案外建筑关系错落有致,多种组合拼接、相互呼应,空间层次有主有次,节奏分明。通透的落地玻璃是最为重要的设计元素,简简单单的软装陈列,将室内的产品充分展现。
原有空间,墙体繁多,布局分散,动线关系凌乱而复杂,严重影响了展示体验。空间尚停留在二维的平面上,板滞而缺乏层次。设计师巧妙的将空间中不可拆除的墙体重新做了空间梳理,改变了原有的失序状态,最终确立了立体而通透的空间秩序。
借助项目本身的品牌定位和特点,以及外界周边所获得的直觉和信息,设计师重新理解和构建新的存在。对于本案,并不单单是对废墟和新生的重新考量,亦有重塑和构架。
生存、生长、新生,将当下的发展观念和功能需求置入其中,重新组织布局,功能业态、新生关系、打造一个全新的感官空间。
结构分析图
原有空间,墙体繁多,布局分散,动线关系凌乱而复杂,严重影响了展示体验。空间尚停留在二维的平面上,板滞而缺乏层次。设计师巧妙的将空间中不可拆除的墙体重新做了空间梳理,改变了原有的失序状态,最终确立了立体而通透的空间秩序。
生存、生长、新生,将当下的发展观念和功能需求置入其中,重新组织布局,功能业态、新生关系、打造一个全新的感官空间。
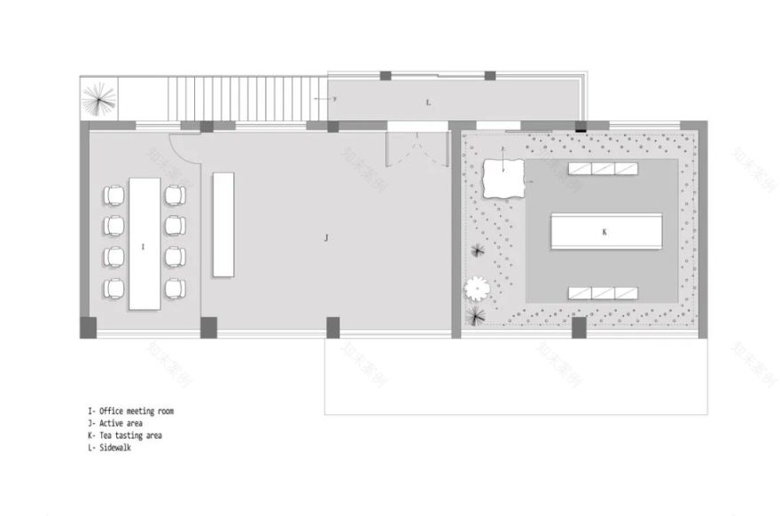
一楼办公、洽谈、休息、茶歇,选取长卷打开的表达方式,照顾了实用功能的实现后,并兼顾审美情趣。
非淡泊无以明志,非宁静无以致远。设计从返璞归真的东方哲学出发,将日本文化传统中的木、竹、枯山水等元素融入空间,寻求人与自然融合的诗意状态。置身其中,自然而然放下身心,平静的感受当下,一草一木、一杯一盏所蕴含的包容与承载。
空间选用原木色和光,表述画幅的纯粹及诗意,在提供情感归属和文化认同的空间内,适当留白,来丰富空间的想象力,既温柔又有趣。
会心不在远,得趣不在多,人文气息与艺术气息的交织,展现出空间的生活美学以及器物情境之美。
光衬着景为空间蒙上了一层滤镜,古今碰撞的同时,又呼应了场域感,“孤舟蓑笠翁,独钓寒江雪”。室内造景的每一处陈设,都有各自的生命。
通过材质的变幻构筑当代设计语境,软装的陈列分界空间的自然属性,过道或座席、线与形、虚与实,都是边界弹性而模糊的存在。
踱步而入,深色的胡桃木与橡木作为空间的主色调,纯净中潜藏无限生机,正是东方美学强调的平衡意境。
软装会为了空间牺牲装饰,硬装也会为软装舍弃许多技巧,但我们依旧会在力所能及的范围内,尽可能地保留对万物的平衡,让空间饶有趣味的不只是突如其来的感觉,更包含高层次的体会和理解。当这种思想浓缩,就成为了美学。
在享受光线的极致体验,以及空间情感带来乐趣的同时,从不同的界面,色彩,材质,氛围去传递美,以此来抵御世俗的缺憾。
二楼入口茶水区,门洞处采用镜面不锈钢,通过材料自身的特性,营造出一种空间时机上的转换和切换。沿着楼梯拾级而上,楼道干净清雅,脚下的灯光伴君而行。
线条的秩序与自由
行至二楼,透过木栅背景的结构更能让人心生遐想,“山有木兮木有枝”,借用传统来打造出更具现代感的空间结构,把一切世俗隔绝在外。
空间的顶面造型延伸至墙面,层级依次降落。墙面层叠的灯光呼应红色的镀膜玻璃,给整个空间带来了艺术性灵动性。
内敛有序的灯光,用自己的语言诠释着空间的可能性,无论是自然光还是灯光,都因为光的光明、希望寓意,而成为设计中最值得期待的部分。
茶室通过立柱做了结构和视觉上的穿插,模拟出一个身处丛林的时空感,去表现独特又新颖的视觉体验。结合内部空间的功能特点,让人犹如时光的剪影,穿梭在这片丛林当中。纵深通透的茶室并非乏味得一览无余,而是在“似断非断”、“似隔非隔”的张力下独具魅力。
设计师将传统材料重新定义,去建立一个人与环境的对话窗口。
空间是可以灵活的,松散的,随性的,多变的,利用空间本身的结构特点做空间装置语言,体现其独特的精神气质,乍看不知何为,细细寻味,意远留长。
空间营造出静逸的休憩场景,去感受时间的生命力,在微弱和谐的对比中,细数每一寸斑驳的界面在时光里蔓延,去抒写恬静温暖的空间氛围,过去、未来、现在,连成一线,安静和谐。
这是一个值得静候的空间,在观点开放而具弹性的空间架构中,不仅当前的成果能表述观点品味,更期待随着时间的推移,在材质的呼吸演化过程中,抑或随生活、见闻所积累的个人变化中,能够覆写、包容未来的经验,寻得平静与心性的自由。
在本案的设计与实施过程中,为了最好地糅合东方哲学与生活美学,设计师经过反复推敲,精益求精,对体量、尺度、光线、色彩、肌理及空间的特性需求等进行精准的洞察及综合把握,延续仓石设计一贯强调的简约美学逻辑,并力求在当代的建筑秩序中寻求自由的精神传达。
建成立面图
立面结构图
一层平面图
二层平面图
项目名称 | 艺枫榻榻米
Project Name | YifengTatami
项目面积|255 平方米
Project Area|255m
设计公司|| 上海仓石设计有限公司
Designed by Shanghai Cangshi Design Co., Ltd.
主创设计|| 邵龙
Master designer
|Long Shao (Leo)
参与设计 | 林柯群
ParticipateDesigner|KequnLin(Lynn)
项目类型|| 展示空间
Project Type|Exhibition space
设计时间|
2019.8.10
完工时间|
2020.6.
灯光设计 | 第壹舍灯光
Light Design | First house lighting
项目摄影 | 金选民丛林
Photographer | Xuanminjin, Jungle
创始人&设计总监 / 邵龙
CSAD 仓石国际创建于上海,是一个具有国际视野的室内建筑设计团队,创造能与自然和社会建立起新的良好关系的设计产品,并致力为不同行业的前瞻性客户提供高端的建筑、室内及产品的创意设计服务,为室内建筑寻找合适的表达方式,创造独一无二的生活空间,并帮助众多企业获得全新的空间体验,通过高性价的空间作品带来卓越的市场反馈。其作品已囊括诸多国内外权威赛事殊荣,并相继发表于各大影响力传播媒体。
仓,谷藏也,仓黄取而藏之,故谓之仓。仓容万物,稳如磐石。代表仓石国际纳有多维的设计方向,不拘泥单向设计思维表达,并通过多元化的空间作品呈现更具国际视野的企业态度。
业务涵盖建筑、私宅、商业、餐饮、办公、酒店、会所等等。
客服
消息
收藏
下载
最近


























































