查看完整案例

收藏

下载
简化意味着去掉不必要的元素,让必要元素凸显。
江苏纺原品牌重塑
Design By 逆视觉品牌设计
苏尧是一家有着国企根基,业务面向全球的多元化企业。
如何重塑品牌,提升公司形象体现一体化实力,逆视觉品牌设计事务所以“标识性”为主题,从品牌 Logo 入手,根据需求进行了从二维平面到三维空间的同步优化。
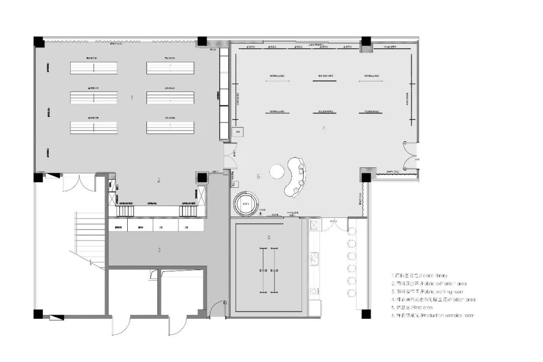
本次设计的重点为"布料图书馆",主要用于分类保存大量布料样品,使其条理清晰。我们最初的考虑就是实用性,如何把大量的样品化零为整是我们问题的核心。
我们将整个区域分为 ABCD,下一级用数字编号,预留标签位置,待布料进入“图书馆”后,搜寻的逻辑变得非常清晰
例如“D15-2”,它对应的就是某种布料,这样公司内部沟通过程当中就可以用代号表示,D15 代表毛呢,2 就是毛呢里面的 2 号产品。
对外如果有客户需要看样品,也可以根据编号,在“面料图书馆”非常快速的找到布料的位置,大大的提升了沟通效率。
空间设计方面整体基调简单明亮,以白色、灰色为背景,红色点亮空间,所有标识和字体部分均为量身定制。
本案需要一间可以展示样衣拍摄走秀的空间,所以在保证实用功能的前提下应尽可能地使有限的空间宽敞明亮以保证后期做临展有足够的空间。
中部的吊杆是可活动性的,根据展示需求的不同可以调整吊杆的位置,灯光采用可调节角度的筒灯,配合后期舞台走秀。
于细节之处见精神,从品牌到空间全案设计赋能老牌企业,为其进行文化梳理,注入全新活力。
▲总平面图
Project Name | 项目名称南京苏尧制衣有限公司
Location | 项目地址南京苏豪国际广场
Area | 项目面积 260
Design Director
设计总监 | 杨湛蓝
Project Director | 刘苗
Project Supervisor | 项目主管王帅彭
Project Designer | 项目设计王帅彭
Project Supervision | 项目监理
赵庆春
Design Company | 设计师公司
逆视觉品牌设计事务所
Completion Time | 完工时间
2021.09
Photography | 摄影师高峰文字/图片:逆视觉品牌设计
DESIGNER
设计师介绍
杨湛蓝
逆视觉创始人
北京服装学院特约讲师
中国软陈协会理事
从事设计行业 12 年,拥有 10 年的品牌运营和品牌策划经验。
逆视觉是一家专业的品牌整合设计中心,致力于品牌形象设计的研究,擅长以精准的策略创造性地解决客户需求;专注于服饰、鞋包、餐饮、快速消费品等领域,为企业提供品牌全案策划、终端 SI 系统设计、平面 VI 系统设计等服务。公司以“与客户共同成长”为服务理念,奉行“低成本打造专业品牌形象”的宗旨,为企业量身订制专业的具有视觉冲击力和有生命力、可延续的形象套餐。
欢迎投稿作品
不忘点击
客服
消息
收藏
下载
最近



































