查看完整案例


收藏

下载
如何在 70㎡的商业空间内,同时满足珠宝展示,工作,洽谈等功能,又能促成有质量的交易,是这个空间项目需要解决的关键问题。
How to meet the functions of jewelry display, work, negotiation, etc. in a commercial space of 70㎡, as well as promote quality transactions, is the key problem to be solved in this space project.
在值得记忆的空间中,达成丰富意义的消费体验
In the space worthy of memory, achieve a rich consumer experience
珠宝是彰显品味与爱意的象征,无论是中国还是其他国家,珠宝消费往往由女性主导,NDB DESIGN 从女性视角出发,将多变的色彩感受与材料质感融合,并建立功能逻辑,希望突破传统珠宝零售空间奢华的气氛,营造与众不同的梦幻消费体验。
Jewelry is a symbol of showing taste and love. Whether in China or other countries, jewelry consumption is often dominated by women. NDB DESIGN combines changeable color feelings with material texture and establishes functional logic from the perspective of women, hoping to break through the luxurious atmosphere of traditional jewelry retail space and create a unique dream consumption experience.
我们使用多变的色彩诠释空间的多变可能性。
We use changeable colors to interpret the changeable possibilities of space.
女性拥有更好的色彩敏感度,所以 NDB DESIGN 大胆使用高明度的红蓝黄三原色,组成本次项目空间的重要元素,唤起女性消费者的好奇心与探索欲。
Women have better color sensitivity, so NDB DESIGN boldly uses the brilliant three primary colors of red, blue and yellow to form an important element of this project space, arousing the curiosity and exploration desire of women consumers.
红蓝黄玻璃环绕的空间内,人们在自然地对珠宝进行鉴赏、佩戴等行为,同时他们可以透过有色玻璃观察到每个功能区,但又形成不真切的视觉感受,不断产生好奇与惊喜。
In the space surrounded by red, blue and yellow glass, people appreciate and wear jewelry naturally. At the same time, they can observe each functional area through colored glass, but they also form an unreal visual feeling, constantly generating curiosity and surprise.
红黄蓝是三原色,是色彩变化的基础,是人最熟悉的色彩,NDB DESIGN 利用红、蓝、黄三色悬挂玻璃的叠加与区隔,在空间内部出现有色彩节奏变化的视觉效果。
在珠宝展示区,沿行走动线设计出现不同的悬挂彩色玻璃,利用人在观赏珠宝的间隙,在空间中的移动,发现玻璃的角度与区域的变化,并在光线的各种反射之下,构建出一个梦幻的色彩世界。
Red, yellow and blue are three primary colors, which are the basis of color changes and are the most familiar colors for people. NDB DESIGN uses the superposition and separation of red, blue and Huang San hanging glasses to produce visual effects with color rhythm changes inside the space. In the jewelry display area, different hanging colored glasses are designed along the moving line. By using people’s movement in the space between watching jewelry, the changes in the angle and area of the glass are discovered, and a dreamy color world is constructed under various reflections of light.
NDB DESING 希望打破珠宝行业的金碧辉煌,雍容奢华的零售空间形象,更多关注消费者进入空间后的心里状态,设计服务于商业,为空间赋予它背后更多的商业价值,而不仅仅停留在好看就可以了。
NDB DESING hopes to break the resplendent and luxurious retail space image of the jewelry industry, pay more attention to the mental state of consumers after entering the space, design serves the business, and endow the space with more commercial value behind it, instead of just staying good-looking.
项目名称 | 久宜珠宝办公展示空间
Name | Jiuyi Jewelry Office Display Space
项目地点 | 金华市金东区光南路万达 4 号写字楼 816 室
Venue | Room 816, Office Building, Wanda 4, Guangnan Road, jindong district, Jinhua City
项目面积 | 70 平方
Area | 70 square meters
项目成本 | 50 万元
Cost | 500,000 yuan
完成日期 | 2019 年 8 月
Completion date | August 2019
设计公司 |
NDB DESIGN
Design company | NDB DESIGN
设计团队 | 倪董波、冯突杰、郭传阳
Design Team | Ni Dongbo, Feng Tujie, GuoChuanyang
设计主理人 | 倪董波
Designer | Ni Dongbo
NDB DESIGN
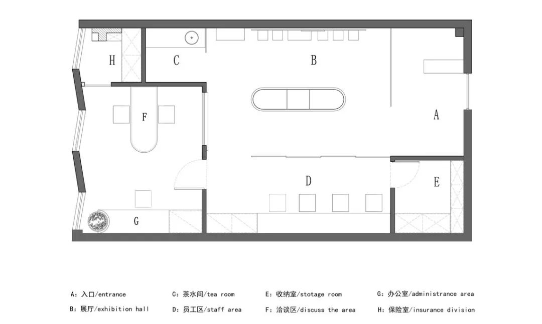
久宜珠宝办公展示空间图纸呈现
平面图
NDB DESIGN
久宜珠宝办公展示空间
公司介绍
NDB DESIGN 空间事务所成立于 2019 年,是一家由 90 后年轻设计力量组建而成的室内设计工作室,专注于个性化住宅空间,商业空间等室内咨询服务
NDB DESIGN Space Office was established in 2019. It is an interior design studio formed by young designers from the 90s. It focuses on personalized residential space, commercial space and other interior consulting services.
倪董波,2013 年业于宁波大学环境艺术系,目前是 NDB DESIGN OFFICE 室内设计服务公司的创始人&设计总监,以独立的视角探索人与人、人与空间的可能性。长期的设计经历累积,倪董波先生不断得到业界的肯定,于 2018 年荣获 IAI DESIGN AWARD(全球设计奖)设计优胜奖及法国双面神“GPDP AWARD”国际设计大奖--(别墅空间提名设计奖),并受邀法国双面神“GPDP AWARD”国际设计大奖成为 2019 形象大使。
Ni Dongbo, who started his career in environmental art department of Ningbo university in 2013, is currently the founder of NDB DESIGN OFFICE interior design service company & design director, exploring the possibility of people, people and space from an independent perspective. With a long history of design, Mr. Ni Dongbo has been continuously recognized by the industry. In 2018, he won the IAI DESIGN AWARD (Global Design Award) design award and the French double-faced god "GPDP AWARD" International Design Award-(Villa Space Nomination Design Award), and was invited to become the 2019 image ambassador by the French double-faced god "GPDP AWARD" International Design Award.
一个好的设计师,可以没有丰富的生活经验,但是不能不体会多元的生活方式,因此倪董波先生更愿意将设计空间,形容为设计习惯。无论是商用空间还是居住空间,都与人有关,解决功能性问题的同时,满足使用者的习惯,释放其内心品位,是倪董波先生认同并践行的方式。从习惯出发,NDB 顺 [适] 而为。
A good designer may not have rich life experience, but he can’t help experiencing diversified life styles. Therefore, Mr. Ni Dongbo prefers to describe design space as a design habit. Both commercial space and residential space are related to people. While solving functional problems, satisfying users’ habits and releasing their inner taste are the ways that Mr. Ni Dongbo agrees with and practices. Starting from the habit, NDB follows suit.
供稿/NDB DESIGN
Gooobrand
品牌设计
客服
消息
收藏
下载
最近

































