查看完整案例


收藏

下载
精选佳作
【优雅骑士 | 勇敢的心】一生中不过饱餐与被爱
一生所求不过温暖与良人
前路再难也不畏不弃
因为,我们每个人都应成为
那不被生活琐碎绊倒的
勇敢骑士
业主照片
屋主是一个很酷的 90 后青年,热爱健身与橄榄球,洒脱、果断、幽默感十足的痞子气让我们后期的设计有了很好的发力点。
屋主很认可我们“人是居住空间设计的出发点与终点”这一设计观点,我们根据他的内在需求与外在需求,设计出一套独一无二,专属他个人的空间体系。
以深色系为基底,为其打造了一个超级炫酷的现代公寓,最大化地开放视野,让家居氛围更加明快轻松。
暗色系的空间设计,给人深邃本真的空间语境,我们为了平衡空间的气氛,加入了暗红色的家具与局部,希望呈现肌理的美感与对话,所有的设计构思,存在于业主的气质中。
入户玄关可以便捷的完成换鞋、脱外套、洗手消毒等一系列动作,污与净划分空间,让生活在后疫情的我们更为健康。次卫木饰面隐形门的设计与入户大门木饰面选择类似木饰面,让整个玄关区域效果统一又实用。
采用无墙的设计形式,让空间的流动性更强,光线的流动、行动轨迹的流动。看似没有分区,其实有更多分区与可能。让居住其中的人有了更好的空间体验感。
开放式空间的设计让居住的可能性变的更多。如生活一样,对未知生活需要勇气与探索精神,让生活里的每一种可能的来临做好应对,勇敢接受。
楼梯:旋转楼梯为空间的中景进行展开,让一镜到底的空间多了层次。楼梯弧形的流畅的形体,也让整个空间更为从容优雅,增添了空间的气质。
结合中岛吧台的开放式厨房:开放式的厨房设计增加了空间的通透性,让空间的对话感十足。使用了质感冷硬的仿黑白根大理石橱柜,加上粗粒水泥地砖,餐厅内的座椅使用皮革带奢华感材质,两者中和,让空间的氛围变得更加松弛,生活的烟火气也可以很干净利落。
客厅:驼色的真皮沙发在极简落地灯的照射下尽显优雅。下方铺设了大块的方形绒毛地毯与沙发相辅相成。挑空位置正好位于客厅正上方,让客厅的空间更完整,通透的落地窗,明亮的光线自由流淌,光,是最美的设计。
多功能房:可开可合的多功能房至少拥有 4 个空间的作用,临时客房、健身区、洗衣晾晒区、储藏区,让空间有更多的可变性。
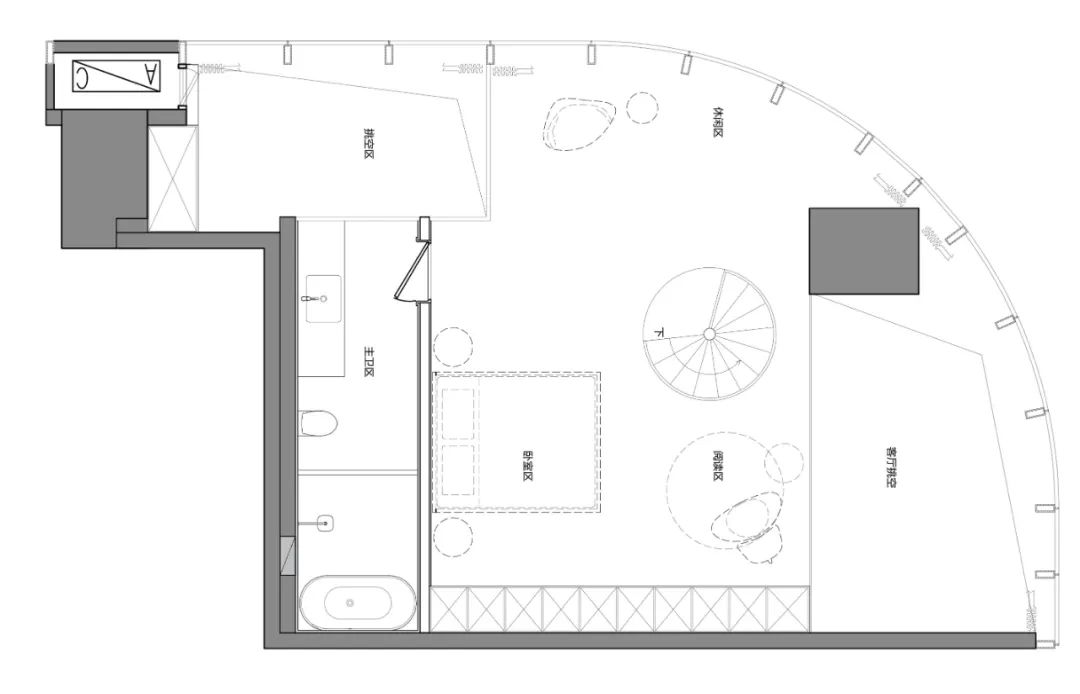
卧室:主卧背景隐形门的设计,让主卧形态更完整的情况下,也保证了空间的美观与使用。卧室使用了大量的玻璃元素,现代简约的风格扑面而来,也丰富了空间的层次与美感。
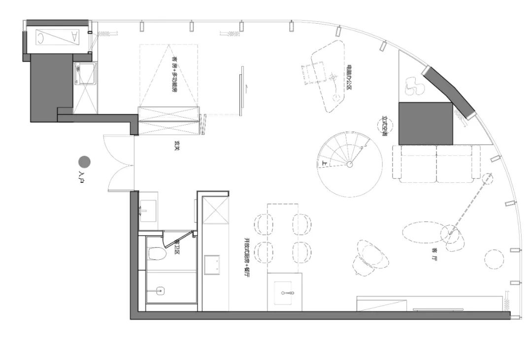
主卫设计:以深色系为主,一体成型的面盆,品质感十足,设计感爆棚的水龙头看着都是一种视觉享受。层次分明的灯光干净利落的空间,彰显出不一样的品质。平面图
1F
2F
项目类型 | LOFT 公寓
项目面积 | 120 m²
项目地址 | 成都天廊 T66 高端公寓
设计团队 | 成都初一美学设计有限公司
主创设计 | 张月
设计参与 | 李海龙
项目摄影 | 普尤
公司简介
成都初一设计
【初一】取自「初心如一」之意。
初一|| 一直坚持做有态度的设计,努力深入研究人与人、人与空间的情感关系,强调功能、弱化风格;
初一|| 一直探索视觉、功能、情感精神与业主气质完美结合的空间,实现居住空间的个性化、专属化、高品质化。
设计师简介
张月
成都初一设计创始人设计总监
成都初一设计自创立之初,始终坚信设计应该是有温度、有情怀、有文化的一种存在。初一倡导“以人为本”的设计理念,初一认为设计风格不是设计存在的根本,居住在其中的人的生活、精神世界的延展提高才是空间设计的本质所在。
初一也认为设计应该是一种关乎情感的表达,重要的便是感动人心、点亮人心。所以初一始终坚信用我们的设计温暖这个世界、传播更能打动人心的设计力量。
同时对于各有差异的客户需求跟空间,我们能做的是善待每个空间,让使用该空间的人被优待、被尊重、够人性化、够舒适。尊重每个使用空间人的习性、引导一种更好的生活。打开一扇通往更高品质生活的门的可能性、与客户一起找到一种比当下更好的生活方式。
本案由
初一
设计提供,为授权稿件
精 选 推 荐
柔软而强大,都市精英的暖心归属!
独家首发
195㎡雅灰大平层,静奢间勾勒家的温情!
独家首发
优雅现代简约,邂逅东方人的理想生活!
独家首发
178㎡清冷色系,演绎宋代美学的简静纯粹!
独家首发
联 系 我 们
添加以下任何信息请注明来意
投稿热线:
sheyi006
郁经理
15365133087
媒体总监:祝主编
18013312730
欢迎大家星标不错过任何一个好设计!
客服
消息
收藏
下载
最近




































