查看完整案例

收藏

下载
让空间产生诗意与联想
我们爱复古,爱的就是它背后历久弥新的经典;我们爱现代,爱的是它简单,惬意休闲的舒适。复古与当代对撞,注重以人为本以及追求写实,这种复古与现代混搭利用了极简主义的大块面、几何形状构成,搭配经典的繁复雕刻线条。既保留了过去时光温暖经典的风情,又添加了现代的活力因子,解决物质世界与精神世界之间的矛盾。
通过细致的、复杂的、一刹那感觉来探测心灵深处最隐蔽的内容,让空间产生诗意与联想,缥缈深邃,达到朦胧的、难以琢磨的理想主义无比神秘的顶点。
白日梦
"在梦幻之树四面伸展的荫影中,梦直到深秋还会萌生,但没一个梦,能象女性的白日梦那样从心灵升华。她梦着,梦着,直到在她忘了的书上,落下了她手中忘了的一朵小花。"
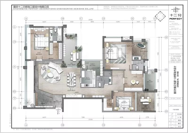
户型构想
原始平面结构图(标准的四房空间,原来是精装房用于办公,两个带卫生间套房,一个客卫,两个小杂物间、三个露台)
平面布局图
设计师巧妙在公区做一面镂空造型的斜墙,将门厅与客厅互动有趣开阔起来;保留原来的一个套房成为妈妈的卧室套房;保留了原来厨房;将其他卧室与原来卫生间、杂物间等重新融合规划出新的开阔拥有明窗的客卫,以及大的主卧室;把沐浴区域搬到主卧套露台;顺应位置也给主卫洗面区顶上保留了自然天光天井;公区的地面大部分保留保守的米色原地砖,巧妙替换门厅和客厅切割边缘砖为质感黑色地砖嵌金属条解决爆边以及提升质感,替换部分过道卧室区域木地板成就呼应最后空间调性的大背景。
呈现梦幻居所
十二分田艾灵项目组设计主题方向:将复古经典的元素引入当代空间,用矛盾对撞的手法,表达艺术性,结合传统与现代哲学的生活态度,碰撞出属于未来意趣的新內容,重新定义经典,表达梦幻般具有感染力的情绪空间。
于私宅:家是怎样,我觉得就是让你心生欢喜的模样!它不是简单的跟流行、一窝风的千篇一律可以代表的。找到你自己、找到你最喜欢的生活状态。
干净利落的石材纹理,多层次的冷色系,文艺复兴风格元素点缀的法国的罗奇堡 MAISON LACROIX 矮柜,构成块面、线条、黑白灰与斑斓丰富里精致层次递进。
大空间点到即止的古典阴角、房门,特别调制的木作色彩,搭配源自法国的罗奇堡 MAISON LACROIX 系列家具和十二分软装馆的茶几,原来丰富也可以这么干净明媚。每一个细节过程里的推敲成就最后的魅力。
简单改造设计后的厨房定调色彩移门,扩大了厨房单门洞小气感,搭配 CELESTE 餐椅和十二分软装馆的餐桌,将原来金属门修改为造型木门、增加的西橱柜、大胆采用了绿色、搭配墙面蓝中带绿的呼应,曾经单调的空间丰富摩登起来。原来米金咖色的老厨房也时尚起来。
古典的顶角线条、西式的拱门,现代感的金属门框、几何构成感的 STAIN GLASS 地毯与丰富绚丽的 MAISON LACROIX 屏风,在块面黑与墨绿色里消融,少许的金色是一笔奢华质感。
有 5 个层次邻近色系的递进,复古的门套、简约现代的金属框线、既有现代几何的表达又不失复古的经典。
卧室一角,法国的罗奇堡 MAISON LACROIX 高柜与小镦几构成一幅画面。
几何箱体的色块、利落的中性亚麻感舍可舍软包及定制布艺床,构成简单减压的明亮卧室空间。曾经卧室的逼仄已经荡然无存,取而代之的是阳光开阔利落。
箱体盒子的空间构成是解决包落水管,让基础弊端也是艺术,设计就是如此。
蒂凡尼蓝半墙、线条吊灯,将原来遗留的画面与老杂志插图等组合搭配十二分软装馆的家具,此处喝杯下午茶如何。
改一处风景露台为阳光沐浴房,可全情打开的木折叠门,在家即是五星级度假体验。
阳光自由的漫入,这样的荡涤身心是否更彻底。当不需要私密性时,一块软垫放进浴缸,窝在里面晒着暖阳,偶尔抬头看看外面的风景,设计不仅仅是功能照顾,怡情和有趣性同样重要,去生活去体悟去设计。
项目地址 | 雍江悦庭
项目面积 | 260㎡
项目风格 | 融合
全案设计|| 十二分田艾灵项目组·田艾灵
硬装参与设计|| 十二分田艾灵项目组·刘佳佳
软装布场配合|| 十二分空间陈设中心·杨茜
空间摄影|| 张骑麟
关 于十二分空间设计
十二分空间设计,一家自 2002 年启航,擅长于去尊重使用者本身的功能、情感需求,用专业帮助使用者达成室内空间与情感的融合,实现空间价值最大化的公司。服务范围:住宅、商业空间、酒店项目、教育、养疗机构等空间设计。集合硬、软装设计,施工、家具配套,配备工艺、主材、软装体验馆,根据您的需求,单项或者全配套去呈现您的空间设计与落地,打造“我”想要的空间!
部分荣誉
2019 木兰奖设计实战赛商业组季军
2018 年金外滩奖入围奖 | 芒果奖中国设计推动
2018 芒果奖中国别墅优胜奖
2018 金堂奖年度优秀别墅设计奖
田艾灵
十二分装饰 设计总监 品牌策划人
2017-2019 重庆女设计师联盟木兰会联席会长
2018-2019 年十间坊实战赛西南地区导师
2019-2022 重庆市建筑装饰协会收纳研究院主任委员
主要荣誉:她设计奖 2019 年度优秀空间设计奖
2019 木兰奖设计实战赛商业组季军
2018 年金外滩奖入围奖
20181DS 设计国际先锋榜优胜奖
2018 金堂奖年度优秀住宅公寓、年度优秀别墅设计
2017 年十间坊全国实战赛季军
本案由十二分空间设计提供,为授权稿件点击阅读原文,查看更多设计案例~
客服
消息
收藏
下载
最近


























