查看完整案例

收藏

下载
© 卢俊江
设计方法层面,提出“普通建筑”的概念,并致敬现代主义经典,回应建筑学的几个基本问题(场地/环境、空间/功能、建造/材料),进行分析式的设计,最终生成出建筑空间。
感谢
中国建筑西南设计研究院有限公司
成都师范学院第二实验楼为文理科院系使用的综合实验楼,是大学校园中的一座“普通”建筑,而非“标志性”的中心建筑。设计者意为校园整体公共空间以及自身使用环境在人文关怀层面做出积极探索。“普通建筑”意味着非中心、非标志、非网红,在较低的造价和平常的资源匹配条件下,营造对环境有积极作用的公共空间,有较高建筑品质的建筑。
▲建筑外观
©卢俊江
设计方法层面,提出“普通建筑”的概念,并致敬现代主义经典,回应建筑学的几个基本问题(场地/环境、空间/功能、建造/材料),进行分析式的设计,最终生成出建筑空间。
▲分析图
©中国建筑西南设计研究院有限公司
▲建筑与草坪
©卢俊江
▲建筑与广场
©卢俊江
▲架空底层和大阶梯©卢俊江
环境空间层面,尊重校园总体规划,关注群体空间环境,营造校园公共空间。
界面与轴线:建筑界面与中轴线上现有建筑的外边界对齐,保证建筑群体的整体界和轴线,强化以图书馆为中心的校园整体格局。
流线切割建筑:来自校园几个不同区域的人群可进入和穿越建筑,将建筑切割出多个公共性的开口,开放的姿态建立其与周边环境的连接和对话。
立体公共空间:公共空间向空中延伸,设置架空通道、平台、大台阶、廊道和空中院落,形成“多层次立体公共空间”。既提供课间和课外的交往休息空间,又成为校园中的公共空间。
▲剖视图
©中国建筑西南设计研究院有限公司
▲庭院鸟瞰
©卢俊江
▲景观内院
©卢俊江
▲过道
©卢俊江
▲楼梯
©卢俊江
二层平台 ©卢俊江
▲走廊
©卢俊江
▲从屋面 3 看向内院
©卢俊江
夜景©卢俊江
绿色生态层面,天然采光和自然通风,回应生态、健康和人性使用。采光:采取南北向为主的建筑布局,水平带型窗设置挑檐,起到夏季遮阳和放置空调外机的作用,西向设置计算机教室,实墙面为主,减小夏日西晒影响。通风:庭院、通廊等空间形成通风廊道,将自然风引入房间内部。
建筑表达上,质朴材料和真实建构表现简约形式,体现其美学价值。质朴材料:呼应校园中白和红两种主要色彩,采用马赛克、红砖、混凝土花格砌块等最普通的材料相互组合,大幅度降低建筑成本,形成质朴的建筑气质。真实建构:架空区结构楼板外露代替吊顶,分体空调外机位结合遮阳的隐藏式处理,外走廊上空设备管线有组织的露明,强化了建筑的概念。
▲细部
©中国建筑西南设计研究院有限公司
项目图纸
▲总平面图
©中国建筑西南设计研究院有限公司
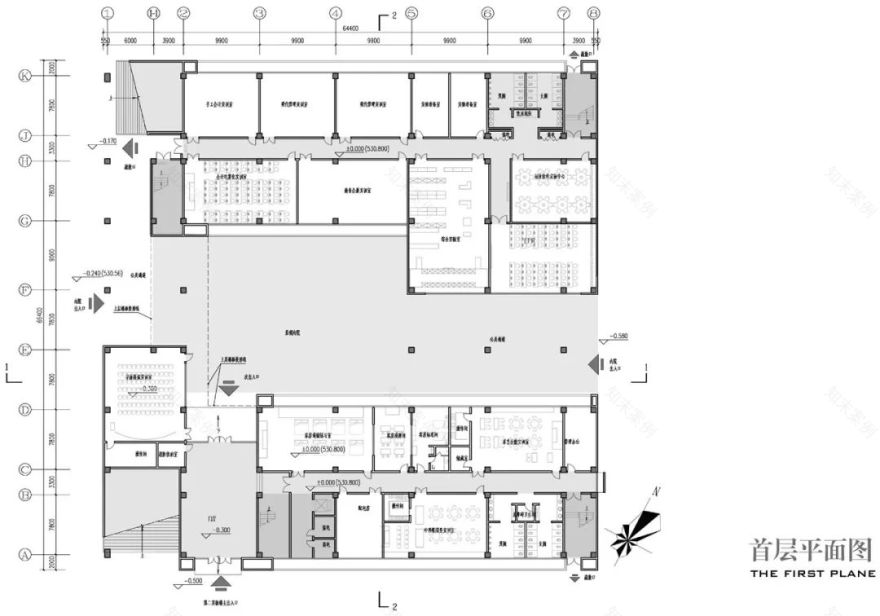
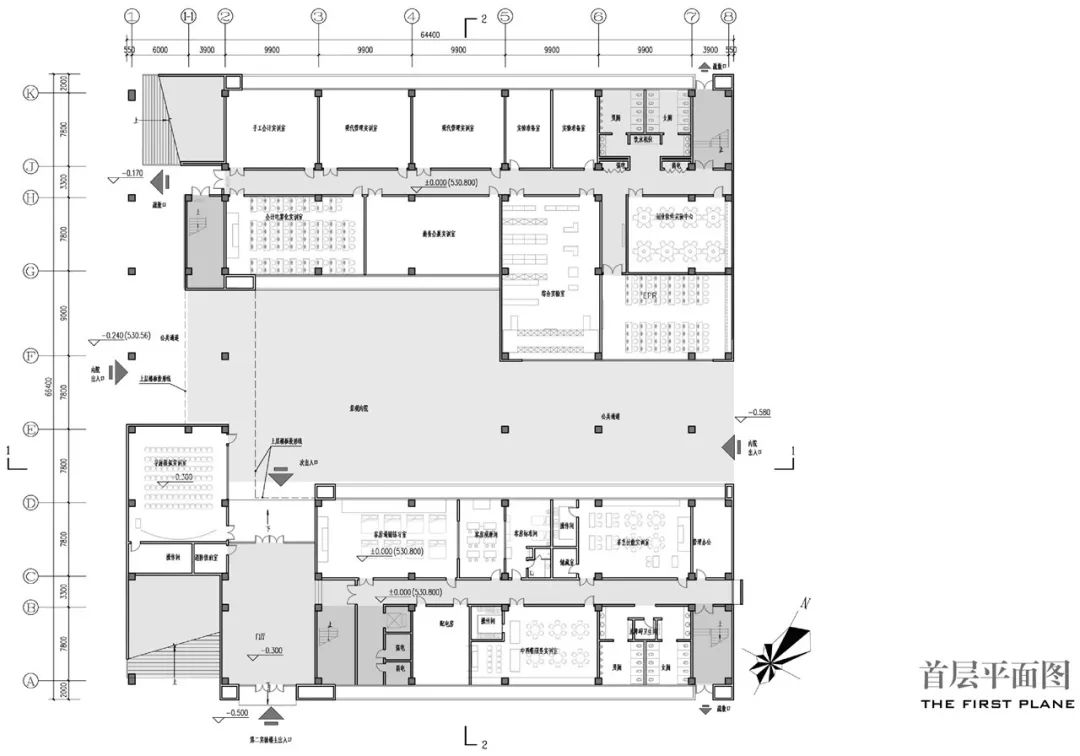
▲首层平面图
©中国建筑西南设计研究院有限公司
四层平面图©中国建筑西南设计研究院有限公司
项目名称:成都师范学院第二实验楼
设计方:中国建筑西南设计研究院有限公司
项目设计&完成年份:2012-2019
主创建筑师:杨保新(本设计为杨保新在中建西南院工作期间主创,现为“研筑舍”主持建筑师)
设计指导和顾问:刘艺
设计团队:谢方洁、罗磊、吴可伟、杨坤、吴维全、郭丹青
项目地址:中国 四川 成都
建筑面积:13578㎡
摄影版权:卢俊江
图片版权:中国建筑西南设计研究院有限公司、成都研筑舍建筑设计有限公司
客户:成都师范学院
客服
消息
收藏
下载
最近























