查看完整案例


收藏

下载
时差影像
方案希望从传统的木构、山墙和坡屋顶的要素出发,结合场地中建筑之间的对位关系,试图以新的空间组织方式与建筑结构语言进行空间组织和转译,最终在多组屋架的纵向的并置排列中,体验穿越多个山墙过程中室内室外之间的整合关系。
感谢东南大学建筑学院 + 南京匡合国际工程设计有限公司
宜兴书屋位于宜兴市丁蜀镇,是古南街游览路线的末端节点。项目的建成为古南街西侧区域提供了一个公共休闲活动场所,一定程度改善设施落后的居民区生活品质。
时差影像
▲项目概览
时差影像
尽管基地周边大多都是破败的低层坡屋顶建筑,但清晰地展现了当地传统民居中山墙与木结构之间的关系。
▲场地鸟瞰
时差影像
沿公路鸟瞰时差影像
方案希望从传统的木构、山墙和坡屋顶的要素出发,结合场地中建筑之间的对位关系,试图以新的空间组织方式与建筑结构语言进行空间组织和转译,最终在多组屋架的纵向的并置排列中,体验穿越多个山墙过程中室内室外之间的整合关系。
▲设计示意
东南大学建筑学院 + 南京匡合国际工程设计有限公司
▲书屋外观
时差影像
▲户外空间
时差影像
时差影像
▲二层檐廊
时差影像
此外,镂空的木格架取代实墙作为立面以及内部空间的分隔,既强化内部空间屋架和纵墙的关系,也成为空间穿越的引导线索。
▲镂空的木格架作为立面和内部空间的分隔 时差影像
一层室内时差影像
▲从二层俯视一层
时差影像
一层简餐厅
时差影像
▲一二层空间关系
时差影像
▲二层空间概览
时差影像
▲从室内望向室外露台
时差影像
宜兴丁蜀镇作为著名的“陶都”,建筑在材料的使用上常出现陶罐的元素,其与不同类型的石材通过不同的堆砌方法形成独特的墙体肌理。项目也通过使用这种材料与肌理塑造方式作为对场地回应的方式之一。
▲陶罐元素和石材形成独特的墙体肌理
时差影像
项目图纸
▲轴测图
东南大学建筑学院 + 南京匡合国际工程设计有限公司
▲总平面图
东南大学建筑学院 + 南京匡合国际工程设计有限公司
东南大学建筑学院 + 南京匡合国际工程设计有限公司一层平面图
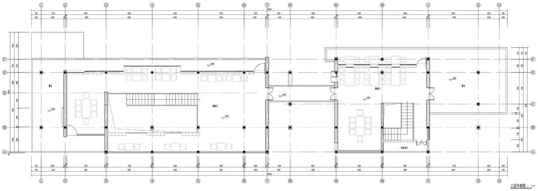
▲二层平面图
东南大学建筑学院 + 南京匡合国际工程设计有限公司
▲立面图
东南大学建筑学院 + 南京匡合国际工程设计有限公司
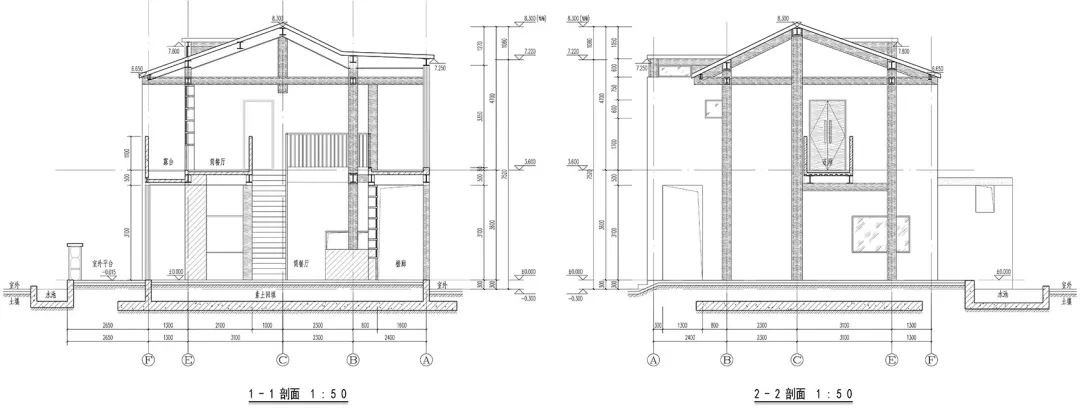
▲剖面图
东南大学建筑学院 + 南京匡合国际工程设计有限公司
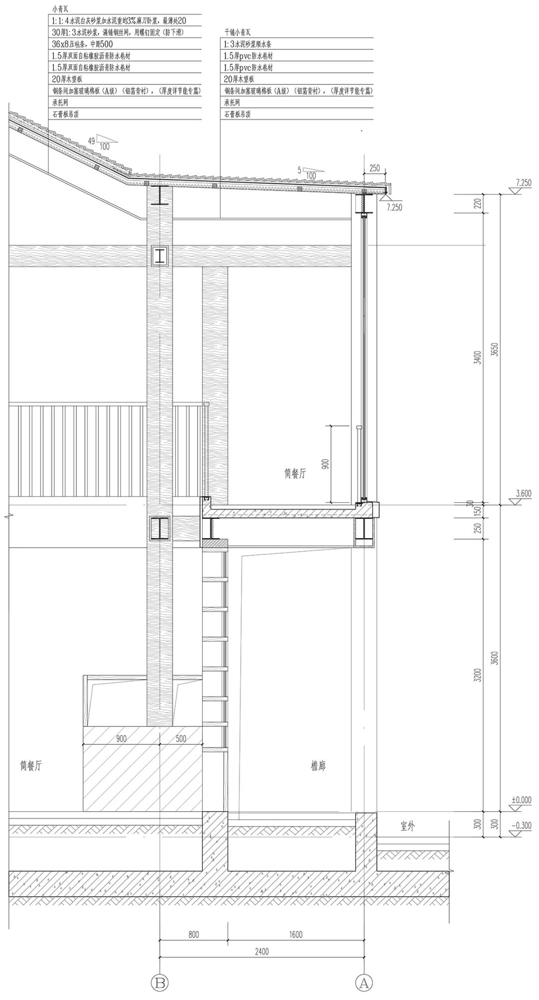
结构细部
东南大学建筑学院 + 南京匡合国际工程设计有限公司
项目名称:宜兴书屋
设计方:东南大学建筑学院、南京匡合国际工程设计有限公司
设计年份:2018 年 7 月
完成年份:2021 年 5 月
主创及设计团队:朱渊,徐清清,范诚,刘文军,章平平
项目地址:江苏省宜兴市丁蜀镇通属东路与丁山大街交叉口
建筑面积:683.6㎡
摄影版权:时差影像
客户:丁蜀镇政府
小号小号
客服
消息
收藏
下载
最近



























