查看完整案例

收藏

下载
©ICYWORKS
我们带着对于未来的期望,创造了这个充满光明的 White Matrix,一个或许将成为与未来链接、交互的矩阵空间。
感谢季意空间设计
科学的世界和美的世界是按照数组纵就绪的。美表现于数量比例上的对称和谐,和谐起于差异的对立,美的本质在于和谐。——理论出自毕达哥拉斯学派
▲白色的空间
ICYWORKS
“在科技高速发展的未来,人们远离地表之上建立起一座‘天空之城’,将地面还给森林、河流,以充分释放自然资源的活力。‘漂浮的城市’保护了自然生态,也为人类的未来提供了更多可能……”这是一个服务于科技产业的集成空间,以上则是我们在接触到项目需求时,旋即就提出的设计思路梗概。
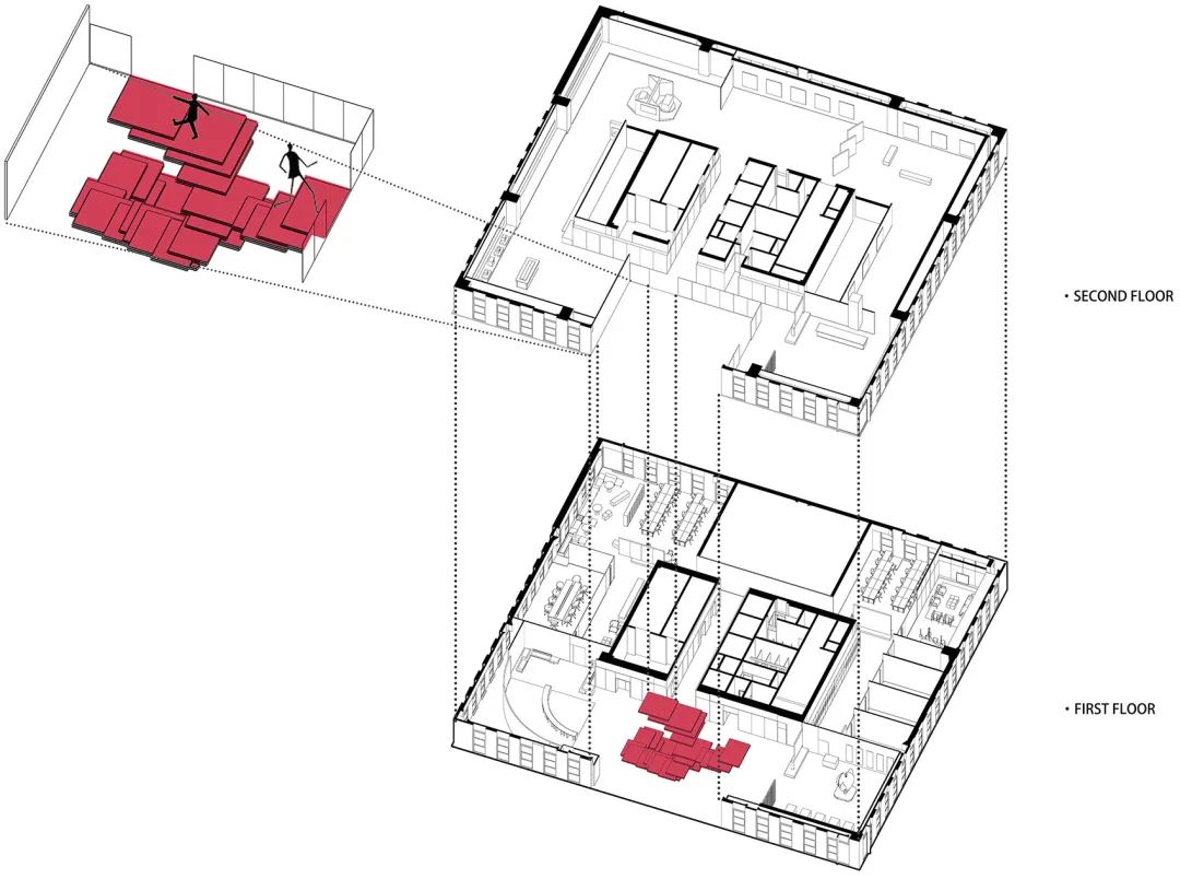
▲分解轴测图
季意空间设计
我们用大面积的白色将空间包裹起来,再以银、白色系的不同材质去创建功能元素,搭配线或面的灯光设计,产生“多重曝光”效果;利用体块的组合,在线条与镜面的辅助下形成一定程度的空间压缩感,如此视觉“特效”的叠加,未来世界的科幻感也就自然地被强化了。
▲一层空间概览
ICYWORKS
接待区和巨幕区 ICYWORKS
▲镜面不锈钢制成的弧形柜台
ICYWORKS
▲楼梯装置展示区
ICYWORKS
▲从楼梯装置展示区看向城市美学展厅
ICYWORKS
悬浮于一楼门厅的楼梯,便会在第一时间带给人这样的视觉体验。这个几乎没有支撑点,看似以搭积木的手法随意堆叠起来的楼梯,其实是经过结构工程师严谨的计算后,采用钢架、钢板搭建完成的。
悬浮在门厅中的楼梯
ICYWORKS
▲从城市美学展厅看向楼梯
ICYWORKS
▲楼梯几乎没有支撑点
ICYWORKS
用纯白的岩板做梯步贴面,钢化玻璃做扶手,再将亚克力与灯带组合出的线性光源有序地拼接在梯步间。于是,这个大家伙看起来似乎并不受重力影响,好像还具备某种传送功能。
▲不同材料与亚克力灯带的组合形成悬浮之感 ICYWORKS
▲白色踏步和玻璃扶手
ICYWORKS
▲楼梯细部
ICYWORKS
就平面布局而言,这个两层加起来 2000 余平米的空间,并没有什么特别之处。因为使用需求简单直接,一层基本划分为多个独立的办公区域,而二层则是展陈区。但这是一个错层挑高的空间,那座连接上下的楼梯往上就可以开启两个端口,从初始到结束形成一条不走回头路的流畅动线。
二层展厅 ICYWORKS
▲从展厅回望楼梯
ICYWORKS
随着项目的推进,我们察觉到它更像是一个“矩阵”。一个将要汇集人类思考衍生品的集成空间。无论发展科技的目的,也许一切思考及探索的行为,都代表着人类试图证明我们真实存在于浩瀚星海。尽管电影《Marix》里所讲述是人类与 AI 间的较量或者说是反抗,但也让我们明白人类的进化是不可逆的。
▲艺术画廊
ICYWORKS
▲工业设计展区
ICYWORKS
▲富有科技感的展示空间
ICYWORKS
▲可以互动的展示空间
ICYWORKS
▲休息区
ICYWORKS
▲蒲公英装置
ICYWORKS
于是,我们带着对于未来的期望,创造了这个充满光明的 White Matrix,一个或许将成为与未来链接、交互的矩阵空间。
▲走廊 ICYWORKS
▲卫生间
ICYWORKS
▲人与空间的交互
ICYWORKS
项目图纸
▲一层平面图
季意空间设计
二层平面图
季意空间设计
项目名称:工业展厅
项目地点:四川·成都
项目面积:2400㎡
完工时间:2021.07
设计团队:李佳 · 浮宥昔 · 刘心怡 · 李忠美 · 粟若宸
合作方式:设计
设计公司:季意联合设计:四川美术学院城市美学研究所
摄影:ICYWORKS
小号小号
客服
消息
收藏
下载
最近




































