查看完整案例

收藏

下载
©张坤
我们采用聚落的设计手法,让五幢建筑由分散变聚落,用连廊的设计手法去连接现有建筑。连廊除平等了建筑主体外,还围合形成了功能型庭院,增加功能使用性。
感谢苏州右见建筑装饰设计工程有限公司。
周塘公共艺术空间坐落于江西鹰潭周塘村,类似于城中村。地理位置离高铁站很近,边上有两所高校。整个村庄有大量的不同时间段的建筑,无序、风格杂乱。但基于整个村落形成的历史性及周围自然风貌,考虑到大量原住民的乡情原因,当地政府没有采用简单的拆迁卖地原则,而是用个很大的力量加以保护。改造的方式让这个区域保留了本地的同时植入新的视觉表现与业态内容。
▲项目整体鸟瞰
©张坤
▲屋顶廊道与院落鸟瞰©张坤
▲局部鸟瞰©张坤
我们团队改造本项目的合作方式是设计与施工一体化的操作方式,之所以采用这样的方式取决于我们团队在苏州平江路的办公室与此项目具备非常的相似性,且更能完整的体现设计想法,让项目能更好的呈现。
▲屋顶廊道夜景
©张坤
▲庭院夜景©张坤
当新建筑与周边环境的关系具有一定不协调性的时候,通过一定的视觉遮挡与视觉切片的方式让周边环境与内视觉产生协调性。
▲概念分析图©苏州右见建筑装饰设计工程有限公司
作为旧改项目,初始建筑为五幢民居,其主要建材为当地大量使用的红色砂岩,质地疏松,易风化,但色彩美丽;框架为木材框架,木材因为成本与资金问题,质量不一,有一定的历史性,且很多已经腐朽,故五幢房屋与周边新建筑(七十年代到八十年代建成)的视觉关系存在一定的不协调性。
▲场地入口处的景观连廊
©张坤
▲景观与建筑之间的视觉渗透
©张坤
▲由连廊拱门看庭院©张坤
▲立面上的曲线元素
©张坤
▲新旧材料的对比
©张坤
于是我们采用聚落的设计手法,让五幢建筑由分散变聚落,用连廊的设计手法去连接现有建筑。连廊除平等了建筑主体外,还围合形成了功能型庭院,增加功能使用性。
▲连廊围合形成了功能型庭院©张坤
2020 年十月份我们第一次对接这个项目,听了当地领导对这个项目之所以仍存在(没被当成废墟拆掉)的解释之后,我们的团队被感动了,我们感受到了他们对这片土地的情感。顶着巨大的压力,这是一种观念的更新与探索,或许是对土地的敬畏之心与对原住民的尊重。改变他们的环境,用设计的力量去改变人们的审美与价值认知与延伸。
▲庭院©张坤
▲模糊的室内外界限©张坤
我们认为,建筑、人与自然三者的关系是需要思考的。除了视觉以外,通风、排水、光照、树木,景观的融合性更为重要,让树木、阳光、风都成为场景的道具;尾面的瓦、有纹理的石头,都可以为视觉的美感助力。
丰富的拱门元素为室内形成框景视野
©张坤
▲墙面洞口细部©张坤
在设计与改造过程中,因为投资的限制性,我们尽可能做到光形性与原材料就地使用、及低成本材料的使用的原则。主体采用钢架植入的方式对老建筑加固、预设两污排水系统化、空调外机的包裹性等等,让空间尽可能的更有秩序。
▲室内空间与室外庭院夜景
©张坤
▲室内保留了原始建筑的木结构
©张坤
▲室内细部
©张坤 / 阿初
▲瓦片细部
©阿初
项目图纸
▲底层平面图
©苏州右见建筑装饰设计工程有限公司
▲二层平面图
©苏州右见建筑装饰设计工程有限公司
▲庭院布局平面图
©苏州右见建筑装饰设计工程有限公司
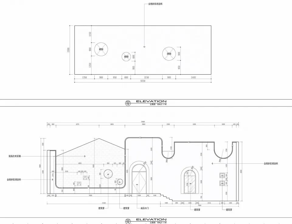
▲庭院立面图
©苏州右见建筑装饰设计工程有限公司
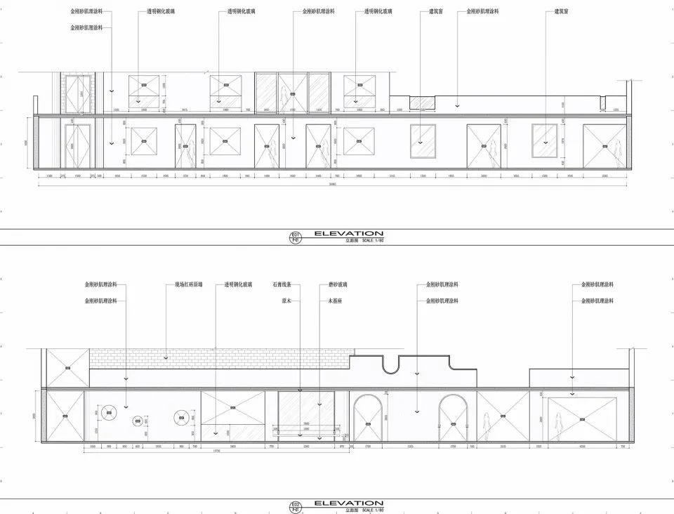
▲主廊道室内立面图©苏州右见建筑装饰设计工程有限公司
项目名称:周塘公共艺术空间项目
设计方:苏州右见建筑装饰设计工程有限公司
项目设计 & 完成年份:2021 年 9 月
主创及设计团队:汪拓及设计团队
项目地址:江西省鹰潭市周塘
建筑面积:约 1800 平方米
摄影版权:阿初 张坤(繁玺建筑摄影)
小号小号
客服
消息
收藏
下载
最近





































