查看完整案例

收藏

下载
感谢启迪设计集团股份有限公司。近日,启迪设计集团股份有限公司李少锋团队的设计作品:苏州东太湖防汛物资仓库,荣获德国国家设计奖(German Design Award)建筑类别的特别表彰奖(Special Mention)。这也是此项目继 ICONIC AWARDS:INNOVATIVE ARCHITECTURE 2020 Winner 和 2020 Architecture MasterPrize Winner 之后,获得的又一项国际奖项。
奖项简介德国国家设计奖是由德国设计协会(German Design Concil)颁发的国际奖项,必须由德国设计委员会推荐的作品才能获得提名,被提名参赛的作品多数为国际设计获奖作品,因此该奖项又被称为“奖中奖”。今年共有来自 69 个国家和地区的 300 项作品参与角逐。
评审团评语:“柔和的建筑,像沙丘,再加上屋顶的绿化,使仓库在视觉上与自然环境融为一体。”Special Mention 展示网页链接:▼项目视频
东太湖防汛物资仓库工程项目介绍
项目位于苏州市吴中区太湖新城,东太湖苏州湾东北沿岸,是一个用于太湖防汛的物资储备仓库,设计建造的用途和标准是用于防范 100 年一遇的太湖汛情。建筑地上 1 层,建筑最高高度为 7m,用地面积 5475㎡,建筑总面积 1379.02㎡。
▼鸟瞰图
我们设计了一个苏州东太湖边的防汛物资仓库,它的存在意义是为了防范百年一遇的太湖水患,存放一些防汛物资。东太湖边的景致宜人,滨湖风光带是游人络绎不绝的地方,这样一个仓库的出现将对原有滨水景观造成破坏。因此,我们做了一个用来隐藏的设计。
▼远视图
选址:最大程度的隐蔽
我们选了一个隐蔽的地方,来造这个仓库。建造场地由岸边车行道的一条小支驶入,与湖岸主要休闲景观绿地之间有一条小河隔开,并呈半岛状,微微伸向水中。这样的选址,让物资库在大区位上,保证了对于湖岸线景观带的最大保持度,最小破坏度,无论是从湖岸上,还是从湖中间看过来,这一处位置都是景观视线最为隐蔽的地方。
▼场地选址保证了对于湖岸线景观带的最大保持度
▼建造场地由岸边车行道的一条小支驶入
建造:水位线之上的掩埋
为了让仓库进一步融入到滨湖环境中去,我们把仓库下沉到地面以下,但保证室内地平标高在太湖警戒水位线高程之上。仓库屋顶建造成斜坡状,绿植覆土由湖边草坪逐渐爬升到仓库屋顶,形成屋顶覆土绿植,自然地把仓库掩埋在环境当中。
▼仓库屋顶建造成斜坡状
绿植覆土由湖边草坪逐渐爬升到仓库屋顶
生长:时间让隐藏更加自然
仓库投入使用之后,屋顶绿植覆土和周边景观经过一段时间的生长,使仓库和周边环境与所在滨湖景观带大环境更加融合。掩埋在岸边的建筑和环境长在了一起,湖水,草地,绿树和鲜花,把仓库隐藏在湖边环境中。
▼屋顶绿植覆土和周边景观融合
▼建筑细节
设计让仓库“消极”地被掩埋,时间让建筑“积极”地与环境一道共同生长。一个人为的,一个自发的,让这个仓库最终成为了环境的一部分,实现了当初设计者和环境共同的意愿。
▼户外连桥
▼内院天井
▼夕阳景色
项目图纸
▼总平面图
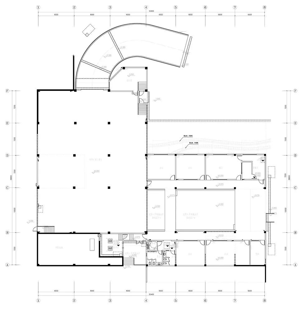
一层平面图
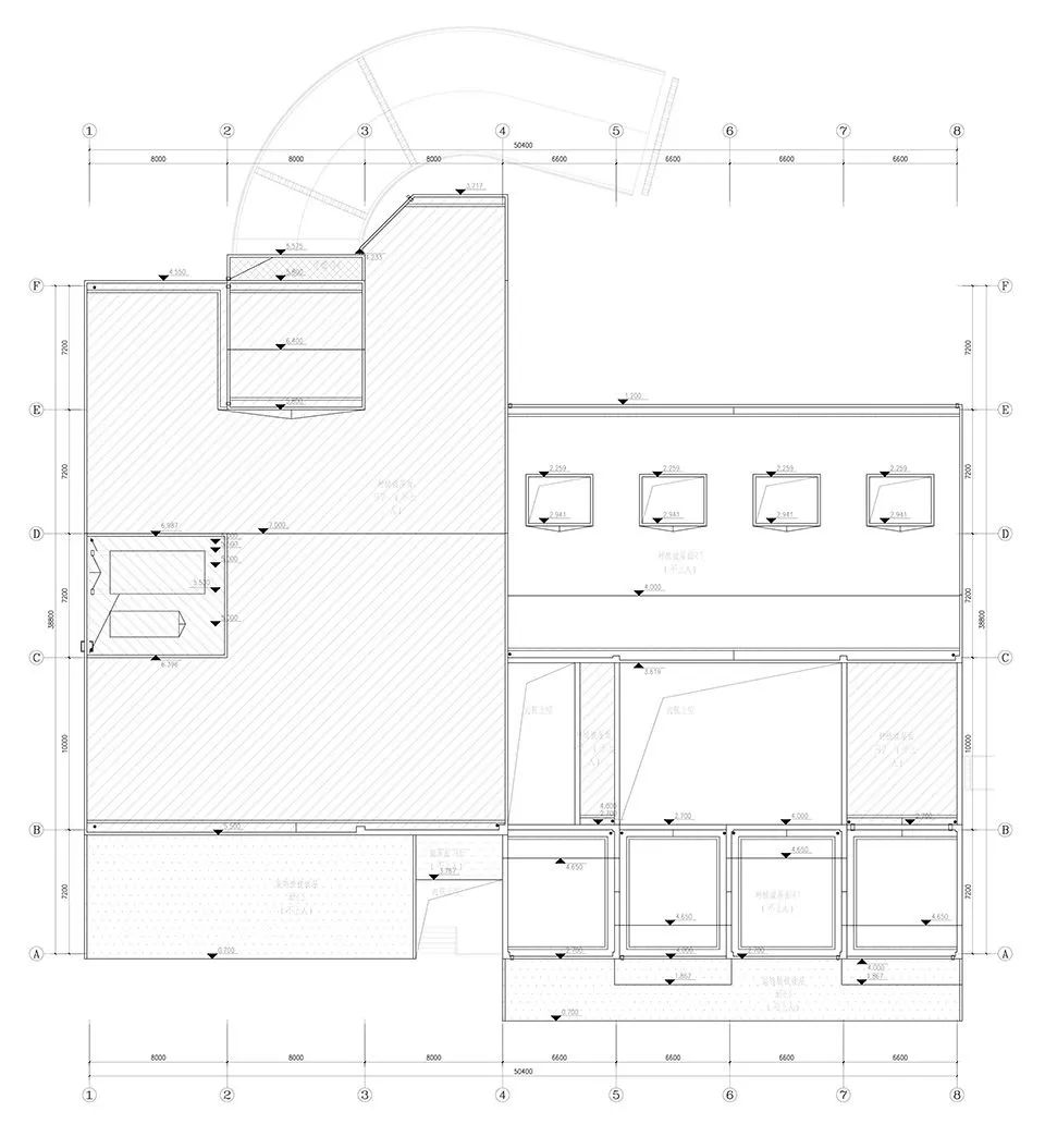
▼屋顶平面图
▼立面图
▼剖面图
设计单位:启迪设计集团股份有限公司
主持建筑师:李少锋
设计团队:陈苏琳、陈方、严怀达、王莺、汤一凡、朱恺
地点:江苏,苏州,吴中区,太湖新城
设计时间:2014~2015
竣工时间:2015~2016
基地面积:5475㎡
建筑面积:1379.02㎡
结构形式:钢筋混凝土框架结构
摄影:章勇,陈方,张超
主持建筑师简介
李少锋
启迪设计集团副总建筑师
建筑创作与研究中心主持建筑师
国家一级注册建筑师
研究员级高级建筑师
INNOVATIVE ARCHITECTURE 奖获得者
The Architecture MasterPrize 奖获得者
客服
消息
收藏
下载
最近


























