查看完整案例

收藏

下载
TARENTUM 萄木·Café BAR
Design by RBD
起源 · Origin
TARENTUM 萄木是一家承载了古希腊文明的希腊简餐、威士忌酒廊。揭开历史的面纱,征服当代人们挑剔的味蕾,TRT 倡导一种摩登的、休闲的品质生活态度。TRT 源于古希腊神话中海神波塞冬之子 Taras 守护的城邦 Tarentum。
蓝天下的 TRT,追逐阳光的脚步,不受时空的限制,沉醉于希腊的明媚中。摩登,休闲,慵懒,生活要有仪式感,用 Brunch 开启崭新一天,简餐/酸奶/果茶/咖啡;当季的新鲜食材,来唤醒身心欲望,希腊式好心情现已加载。
夜幕降临,圆月、香熏、烛光、音乐、酒香,TRT 摇身一变 Whisky 酒吧,在舒适又私密的 TRT 空间,享受 Whisky 的惊喜之夜,品味小酌时光,惬意的希腊式微醺。TARENTUM 萄木给你全时段的美味体验。
情绪·Mood
这一次我们把店开在了深圳宝安海边的摩天轮下:海滩、碎石、清澈的蓝、有点美、阳光的缝隙,嘿,融化、滴答声,嘿,吱头、有香气、香草与葡萄木、几何线条、懒洋洋、咖啡因满足感、散漫的星光、微醺变奏曲、听见细语、神话里,风是轻柔的、17 度的轻吻、诱惑、发酵、水雾、琥珀色、嗅到、威士忌问候、灯塔、冰块里的月光、惝恍迷离、人情味,这很希腊。
银河万里摩天轮相遇,这是我们给予此项目的主题。
体验 ·Experience
墙面大面积的象牙色微水泥,自带温柔的奶油色调让人放松,座位区上栽种了各种不同的绿植,灰色皮质感软沙发搭配绸缎感靠枕,与靠窗的蓝色调位置呼应,仿佛地中海上的一抹蓝,中岛座位区的绿植延伸到不同角度,让空间的每个画面都多了一些地中海风情。
门面是沉稳的圣托里尼蓝色调搭配银色苹果砂金属材质,咖啡吧对外的窗口设计成开放式做为手冲咖啡区,喝一杯专业咖啡师为你手冲的咖啡,去掉一天的乏意。抽取品牌名简称 TRT 做为咖啡吧的元素墙,圆滑处理的边角,细腻温柔,还多了一份设计感。
大理石纹理感的桌子,搭配蓝色绒棉感的座椅,桌上摆放的精致小花瓶很有细节感。备餐区的墙面是天然肌理岩石,搭配蓝金沙大理石的台面,干净品质。
挨着 WhiskyBar 旁边还有一个下沉区设计,半高的文化石隔断把私密性区域围合起来,夜幕降临后在此享受 Whisky 之夜,月球型的水泥吊灯,是夜空里的一束光亮,不炽热,不张扬。
感受 ·Feeling
临窗的折叠玻璃门全部打开,室内室外融为一体,离摩天轮更近了。午后,阳光照进来的时候,抬头瞥见一个个的白色球体,光影斑驳如同月上纹路,似圆月,也似白色气球,油然而生的浪漫感。可以坐在室外外摆享受温热的阳光,看着浪漫的摩天轮拍拍照,也可以慵懒随意的靠在室内舒服的沙发上发呆,一切都是那么的美好自然。
订制的象牙色烤漆玻璃展示柜,里面放的是业主的收藏物——女神像。
项目落地至今,已经成为热门打卡地,月营业额达到上百万,实现了商业设计的本质:创造价值,传递价值,实现价值。此项目也给我们设计师团队留下了一个很深刻的体会:于细微之处解决业主需要,是业界荣幸,务必认真,务必用心!
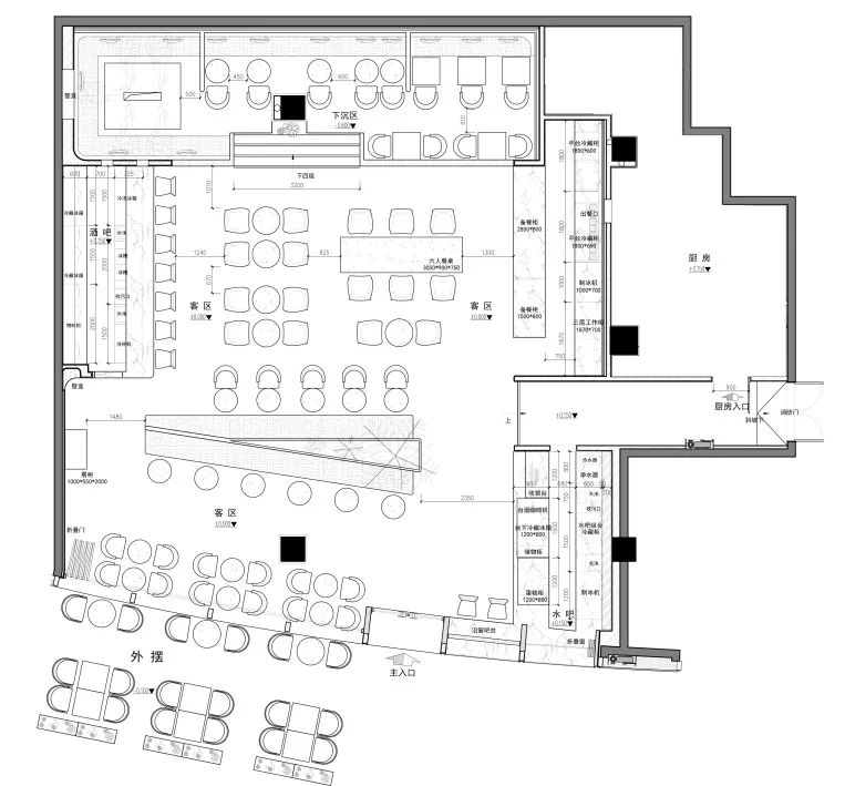
平面图
Project Name | 项目名称:TARENTUM 萄木
Location | 项目地址:深圳欢乐港湾
Area | 项目面积:280㎡
Chief Designer | 首席设计师:刘斌
Design Company | 设计师公司:RBD DESIGN BOX
Designer Team | 设计团队:林之枫、罗结然
Main Material | 主要材料:微水泥/蓝金沙大理石/苹果砂不锈钢/昕彤照明
Dessigne Time | 设计时间:2020 年 12 月
Complete Time | 完成时间:2021 年 2 月
Photography | 摄影师:BenFoto
文字/图片:RBD DESIGN BOX
DESIGNER
设计师介绍
刘斌
瑞本空间设计创始人及设计总监
高级室内建筑师、品牌空间设计师
深圳室内设计师协会理事
2020 年第三届粤港澳大湾区设计师峰会十大杰出青年
2020 中国(深圳)餐饮设计大会中国十大餐饮空间设计师
RBD DESIGN BOX 瑞本空间设计是一个具有多年设计经验的开放性思维精英设计师团队,公司自成立以来,屡获优秀餐饮空间奖项,致力于打造专业,深入人心的品牌空间。通过深入商业空间的了解,寻找建立在人文习惯上的认知,去改变认知并创造惊喜。通过提升品牌空间感受,软装搭配等为品牌打造属于自己个性的全方面界面,让品牌的气质化魅力深入人心。
欢迎投稿作品
不忘点击
客服
消息
收藏
下载
最近























































