查看完整案例

收藏

下载
地下室包厢入口处 ©戴长逸感谢低态建筑深藏在上海市中心的弄堂之内,WhisperBar 以富有雕塑性的姿态营造了一个集酒吧、咖啡、品鉴、活动功能的综合性场地。在此项目中,Digitects 不仅以设计师的身份介入,也同样是酒吧股东之一。其角色的增加,带来的变化不仅是在初期更加紧密地结合设计与商业策略,也是在有限的预算内更加极致地落实设计细节。
戴长逸
整体空间分为地上与地下两部分:地上轻快的酒吧展现出年轻、有艺术性的氛围;相反地,地下私人俱乐部的态度更为私密与严肃。作为顾客感官与情绪的铺垫,两层空间由一个神秘的隐藏门分开,然后通过一个幽暗的、仪式感的楼梯向地下延伸。
▼隐藏门后的楼梯
戴长逸
受到达达主义的启发,通过有机而又克制生长的原有结构看似有些荒诞,感觉上“不像是属于这个空间的”。其突兀的造型增强了空间的戏剧感,也创造了一个独一无二的饮酒气氛。其几何构造的围合姿态,加上金属帘半通透的阻隔,使得入座的顾客感到更加的私密与舒适。
▼座位区戴长逸
▼吧台区
戴长逸
▼入口酒展示柜戴长逸
来到地下后,会先到达等待区。功能性上等待区连接着两个包厢、厕所与储藏室,是地下的核心空间。其中可移动的酒柜与圆桌提供了酒品选择与品鉴的空间。与楼上相似,整面墙面采用了镜子,增加了空间的复杂性,成为了一个顾客私下聊天的理想空间。
▼等待区
戴长逸
▼地下室包厢入口处
戴长逸
大包厢用红丝绒布帘分隔成了三部分,也可以在需要的时候进行合并,增加了空间的灵活性。同时,墙体维持了拆除工作后的原始面貌,创造出一种粗粝的地下室形象。一米高的棕红色皮质墙裙适当的增加了视觉与触觉的柔软度。彩色玻璃和雕塑质感的装饰大大增强了地下室的仪式感,营造出一种神秘与尊贵的消费体验。
▼可调节的包厢空间
戴长逸
▼首层细节
戴长逸
项目图纸
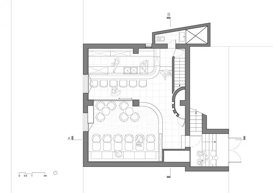
▼首层平面图
低态建筑 DIGITECTS
▼地下室平面图
低态建筑 DIGITECTS
▼剖面
低态建筑 DIGITECTS
项目名称:WHISPER BAR
设计方:低态建筑 DIGITECTS
项目设计&完成年份:2020 年 9 月
主创及设计团队:丁洋洋,顾涛
项目地址:陕西南路 368 号 1 楼,上海,中国
建筑面积:120 平方米
摄影版权:戴长逸
客服
消息
收藏
下载
最近


















