查看完整案例

收藏

下载
茶饮店风向
全球设计风向感谢来自上海 KWSD 建筑事务所的茶饮店项目案例分享:KWSD 建筑事务所|| 上海宝山奈雪的茶
在“茶山”梯田里喝茶饮,品尝春天滋味美好的春日时光,去一家茶饮店里浪费时光吧。与朋友一起畅谈人生理想,呼吸年轻主义的气息,越发多样的活力在茶饮店里铺开。当你进入一家店内,瞬间吸引你的元素会是什么呢?奈雪的茶的上海新店,将会给你不一样的惊喜答案。
01.
爬一座“茶山”然后在微醺酒屋里做梦
△ 门店实景图 摄影© 郑焰
这家奈雪的茶新店位于上海宝山区,它有一个不同于一般网红茶饮店的主题特色——茶山。
△方案概念图©KWSD 境物建筑事务所
一座厚重的“茶山”屹立在店内中心,无论是店内还是店外的游客,都会不自觉地被它的梯田形态所吸引。
茶饮操作台 摄影© 郑焰
休息等候区 摄影© 郑焰
“茶山”元素甚至延伸到了休息区,它将整个一层店面严实地包裹了起来,让顾客从一进门,就能感受到茶山层叠不绝的唯美意境。
△ 二层酒屋 摄影© 郑焰
与首层白色轻盈的氛围不同,二层将带你进入迷幻的酒屋世界。
红色霓虹灯和暖色神秘光带,配上古铜色的家具,似乎将《银翼杀手 2049》的赛博朋克场景搬进了现实。
△酒屋吧台摄影©郑焰
当你坐在酒屋柜台前,你会发现酒屋的玻璃背景墙上,会时不时透露出朦胧的模糊景象,一位美女或帅哥,好像就要呼之欲出。
02.酒屋与茶饮的跨界混搭
二层酒屋门口 摄影© 郑焰
2019 年,奈雪的茶推出了酒屋“BlaBlaBar”系列,开始了茶饮与酒屋的跨界融合之路。而这个奈雪的茶新店,就是其跨界融合的产物之一。
不同于过去的传统店面,设计师希望能通过一套完整的设计策略,将茶饮、酒屋和欧包等丰富业态巧妙结合,打造一个集合年轻女性体验、社交和传达生活方式的品牌新空间。
首层入口 摄影© 郑焰
设计最困难的点在于,茶饮空间与酒屋既需要有所连接,又需要各自具有一定的独立性,并且它们大部分的营业时间并不重合。
设计师基于时间、空间属性和人的行为出发,用设计创造除了适合不同时段的空间体验方式。
方案效果图 © KWSD 境物建筑事务所
首先从功能分区下手,首层设为茶饮空间,打造了流动性极强的空间,专为短暂停留的顾客服务。围绕制茶吧台的周边,形成以软欧包、茶、冷萃的选品区和休息等候区,营造了完整的人流动线。
二层设为酒屋,提供给能长时间停留的人们,在这舒适的社交空间中谈天说地。
茶饮与酒屋,通过一二层的动静分区设计,得以分开保持各自不同氛围环境。
酒屋 摄影© 郑焰
其次根据茶饮特性,设计师追溯了茶饮源头,发现了“茶山”灵感意向。于是,一座“茶山”从一层拔地而起,当山体延伸至二层时的形态,则变成了半透明的玻璃幕墙,从具象到抽象,从连接到独立,都能在这“茶山”中寻到解答。
而位于角上的贯通空间,布置着一个两层通高的红色文字装置,它既充当了上下层的视觉联系元素,又能让两层空间保持各自的独立性。
酒屋摄影©郑焰
店铺位于商场主入口一侧,上下两层,均有连接户外广场、连廊和商场内部的多个出入口。
室内剪刀梯 © KWSD 境物建筑事务所
针对多个出入口的现状,设计师用一个“茶山”剪刀梯,创造了一条循环的完整人流动线,让从不同入口进来的人们,都能体验完整个玩味空间,收获双倍乐趣。
人流动线 © KWSD 境物建筑事务所
动线的起点位于欧包区,随后经过茶饮前台购买茶饮,再往前走就到达了休息等候区。如果还有探索的好奇心,人们可以顺着剪刀梯向上,进入酒屋区域。而当你在二层剪刀梯的另一端向下步行时,又会再次回到最初的欧包区。
环形人流动线一方面能有效避免,人流在一层的来回穿插,另一方面可连接直通户外的入口和商场内的入口,增加引导和可达性。
酒屋 摄影© 郑焰
一层茶饮营业时间为上午 10 点至晚上 10 点,二层酒屋的则为下午 3 点至凌晨 3 点,为了照顾到茶饮空间与酒屋的不同时段运营,设计师采用了全时段经营模式。
白天,店内是以茶饮空间为主的消费模式,而到了晚上,有霓虹灯的酒屋逆袭成为主角。
从“茶山”的柔和穿越到酒廊的硬朗,从下午茶等待到夜间酒吧,天光暗下,灯光升起,从明朗到暖黄,定义了由“茶”到“酒”的场景变化,收获一场因时间而来的邂逅。
03.
寻找设计小彩蛋
室内剪刀梯摄影© 郑焰
设计策略能解决问题,而细节才决定成败。
这家新店不光在策略上标新立异,在设计细节上也有魔鬼般的认真。
一二层醒目标识摄影© 郑焰
无论是一层还是二层,都有很醒目的入口标识,即使人在远处,它们也能牢牢抓住他的注意力。
休息等候区摄影©郑焰
一层休息等候区的墙壁,是一面光滑的反光镜,它让人在窄小的空间中也不觉压抑。
地面石材装饰 摄影© 郑焰
欧式经典的地面石材装饰,在这里也能够找到。五条色泽不同的大理石,共同引导人们游走。
酒屋吊灯摄影©郑焰
酒屋吊灯摄影©郑焰
横穿酒屋的参数化长条吊灯,藏着无数个黑白相映的三角形光源,给酒吧增添了一丝未来色彩。
总之,在这家奈雪的茶新店,你能体验到从未有过的沉浸式感受。
跨界的茶饮与酒屋混搭空间,或许将会成为未来的新商业类型。
△ 设计细节
△设计细节
△ 设计细节
△ 设计细节
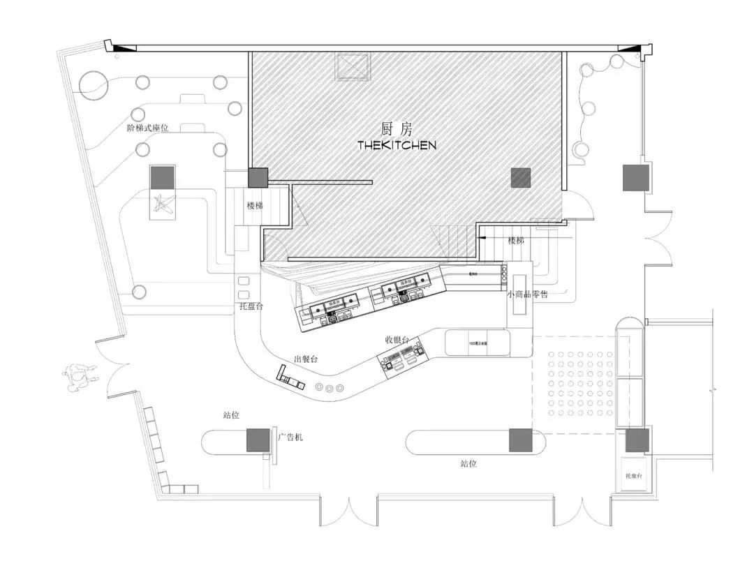
首层平面© KWSD 境物建筑事务所
二层平面© KWSD 境物建筑事务所
项目信息
项目设计时间:2019.08-2019.10
项目完工时间:2019.12
设计主案:Eric Tsui(徐晓东)设计团队:刘雷、施洁莹、廖秋娟、王帅、郭鹤林(实习)项目地址:上海
建筑面积:400㎡
摄影版权:郑焰
灯光:悦森照明
主要材料:人造石,穿孔铝板,不锈钢等
客户:奈雪的茶
本文为全球原创/整理内容,正在进行中的项目委托:
↓ 点击阅读原文加入知识星球,查看全部设计项目委托!
客服
消息
收藏
下载
最近







































