查看完整案例

收藏

下载
©田方方
这个位于城市环境中的园区,其公共属性主要体现在向公众开放工厂建筑的首层,以及联系室外公共空间和室内空间。由于它们的物质性与当地传统瓷器生产以及现有工业建筑的共鸣,既有建筑赋予了该地区独特性和意义。因此,对历史建筑的保存和持续使用对于整个总体规划来说至关重要。
感谢
David Chipperfield Architects
陶溪川文创街区总体规划
临近景德镇市中心,大面积 20 世纪中叶建造的瓷器生产工厂形成了当地独特的城市遗产。在该项目再开发的第一个阶段,基地西部的现有建筑得到改造,成为城市结构中一个充满活力的公共场所。通过引入博物馆、瓷器商店和陶瓷市场等新功能,该地区建立了其与工业历史的联系。在项目的第二个阶段,基地东部将转变成为一个表演艺术校园,设有学院、演艺场所和其他附属设施。戴卫奇普菲尔德建筑师事务所柏林办公室为其制定了总体规划方案,不仅保护和改造现有建筑物以供重新使用,同时还为该城市区域补充新建建筑,以在更广阔的城市环境中注入当代气息。
▲街景:大剧院
©田方方
▲街景:酒店
©田方方
一条穿过先前的工业区中心的步行长廊以及一条向西延伸的林荫大道,让该区域在南北方向上敞开。沿着大道布置了一系列新的公共建筑:北侧的大剧院,包含两个位于北侧的演艺空间;以及南面的酒店和图书馆,使整个园区成为新的城市地标。这些新建筑功能将辅助位于历史工厂空间中的文化机构,例如位于园区中心的音乐学院。除了这些公共用途的建筑以外,还设置了商店和住宅楼,以及学生宿舍。
▲总体规划鸟瞰
©David Chipperfield Architects
这个位于城市环境中的园区,其公共属性主要体现在向公众开放工厂建筑的首层,以及联系室外公共空间和室内空间。由于它们的物质性与当地传统瓷器生产以及现有工业建筑的共鸣,既有建筑赋予了该地区独特性和意义。因此,对历史建筑的保存和持续使用对于整个总体规划来说至关重要。
▲总平面图
©David Chipperfield Architects
大剧院
文创街区的主要公共设施都位于该地区西侧的林荫大道上。大剧院是林荫大道北端的标志性建筑物,这座新建的砖建筑,向历史工业建筑的传统材质致敬。它包含两个主要演艺空间:一个古典歌剧院和一个黑匣子剧院。
▲大剧院外观
©田方方
▲大剧院门厅外观
©田方方
▲大剧院歌剧厅
©田方方
▲大剧院歌剧厅门厅
©田方方
连续的天然石材地面进一步强调了内部空间与外部空间之间的联系。弧形的观众厅从门厅屋顶上方凸起,以镂空砖块的形式呈现,在夜间像明亮的皇冠一样闪耀,并为这个新的场所增添标志性的特征。
▲大剧院歌剧厅前厅
©田方方
▲大剧院歌剧厅前厅细部©田方方
音乐学院
音乐学院位于园区林荫大道的南端,是位于该文创街区中心的一处充满生机的场所。一大一小两座砖建筑,建于 20 世纪中叶,曾用于瓷器生产,它们将得到改造和升级,以满足音乐学院的新功能需要。历史悠久的穿孔砖砌体和窗户均根据原始材质和细部进行修缮。由于采用了这种对当地遗产保护极为敏感的策略,历史建筑的工业氛围得到传承。原波纹金属板屋面则被新的陶瓦屋面所取代,以提高建筑的隔热和隔音性能。
▲音乐学院外观(效果图)
©David Chipperfield Architects
北部较宽敞的工业建筑被改造成一个可容纳 350 个座位的音乐厅,形似一个镶嵌在既有历史建筑中的巢穴。音乐厅自然采光充足,并且可在三个方向上欣赏周围区域的景观,成为整个学院的焦点。为了满足音乐会的技术要求,屋顶被彻底地重建,以提供更大的室内空间体量,从而获得更好的声学效果。
位于这座建筑中央的,向室外开敞的门厅是其主要的入口和交通空间。其它服务于观众的附属设施以及学院的练习室都安排在新增的木饰面立方体中,这些立方体内部为双层空间结构,堆叠在厂房建筑物内部。
▲音乐学院门厅(效果图)
©ATCHAIN
▲音乐学院音乐厅(效果图)
©ATCHAIN
带有精致钢梁的玻璃屋顶在首层上形成了一条有盖通道,通向南侧较小的历史建筑,该建筑拥有极具历史建筑特色的钢木混合屋顶结构。为了保留这个原有建筑的历史特征,屋顶的荷载被重新转移到新的钢结构上。新建的地下层将包含机电机房和录音室。高质量的枫木、松木木皮饰面和沥青玛蹄脂强化了历史建筑的工业风貌。
▲音乐学院排练室入口(效果图)
©ATCHAIN 酒店
这个位于新文创街区中心的酒店综合体坐落于大剧院和音乐学院之间。该建筑群由四座独立的建筑组成,分别为一家四星级酒店、一家五星级酒店和附属活动场地。开敞的轻钢结构将各个建筑物在地面层相联系,为各种公共活动创造了共享空间。
▲酒店立面
©田方方
▲酒店建筑群由四座独立的建筑组成
©田方方
▲酒店外观©田方方
每个酒店建筑都有一个包含景观的内部庭院,人们可以在每个酒店的走廊内,透过穿孔的砖墙来欣赏庭院景观,从而建立一种归属感、宁静感和方向感。
位于南侧、紧邻林荫大道的两座建筑中设有多功能厅,可举办各种公共活动。
另外,1960 年代建造的员工宿舍得到保留,并被整合到整个综合体中,以公寓式的建筑形式补充酒店的功能多样性。
酒店庭院 ©田方方
以历史悠久的工业建筑为参照,黏土砖是用于酒店建筑立面的主要当地材料,进而让新建筑自然地融入周边区域。
多功能厅的半透明外墙和酒店阳台的穿孔栏板充当了私人区域和公共区域之间的过渡。
错叠的砖柱将整体的建筑体量和人的尺度联系起来。
▲入口坡道
©田方方
▲立面细节
©田方方
▲酒店立面与街道
©田方方
项目图纸
▲总平面图
©David Chipperfield Architects
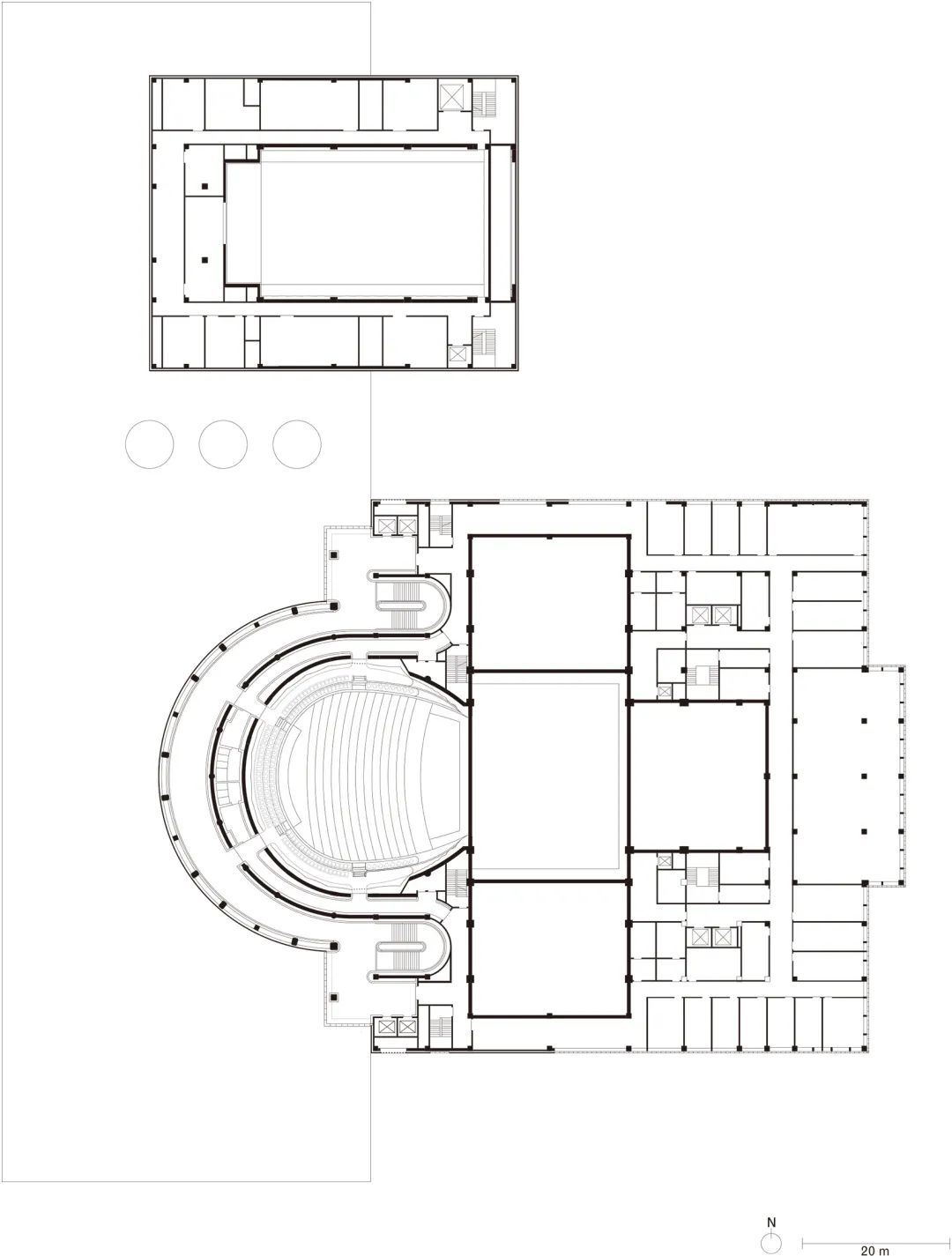
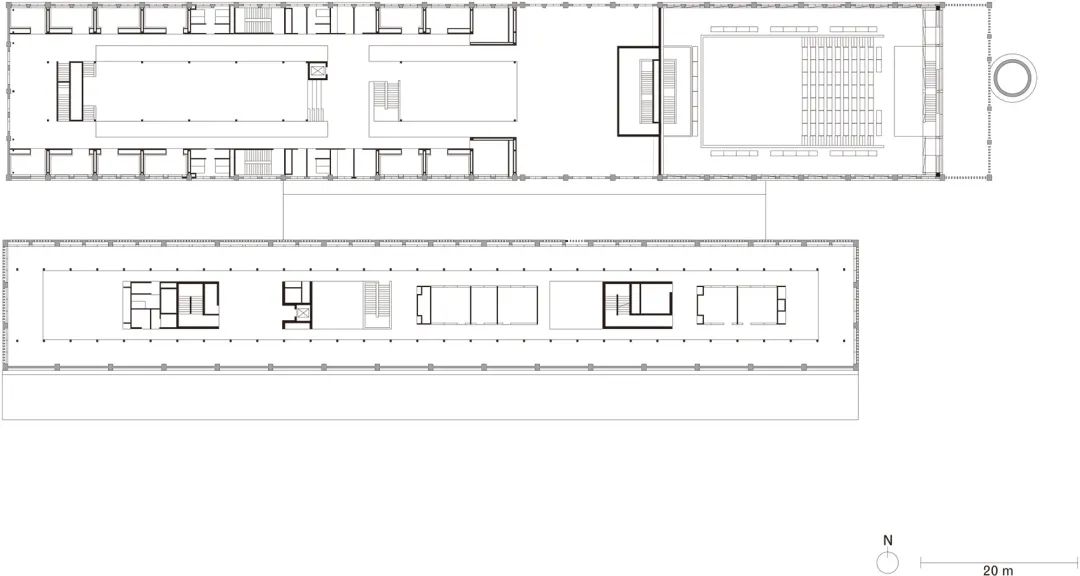
▲大剧院首层平面图
©David Chipperfield Architects
▲大剧院二层平面图
©David Chipperfield Architects
▲大剧院四层平面图
©David Chipperfield Architects
▲大剧院西立面图
©David Chipperfield Architects
▲大剧院北立面图
©David Chipperfield Architects
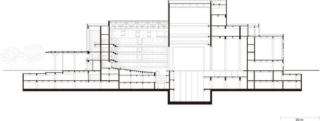
▲大剧院 AA 剖面图
©David Chipperfield Architects
▲酒店首层平面图
©David Chipperfield Architects
▲酒店三层平面图
©David Chipperfield Architects
▲酒店南立面图
©David Chipperfield Architects
▲酒店东立面图
©David Chipperfield Architects
▲酒店 A-A 剖面图
©David Chipperfield Architects
▲酒店 B-B 剖面图
©David Chipperfield Architects
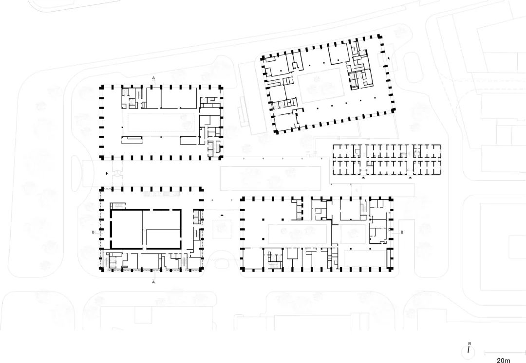
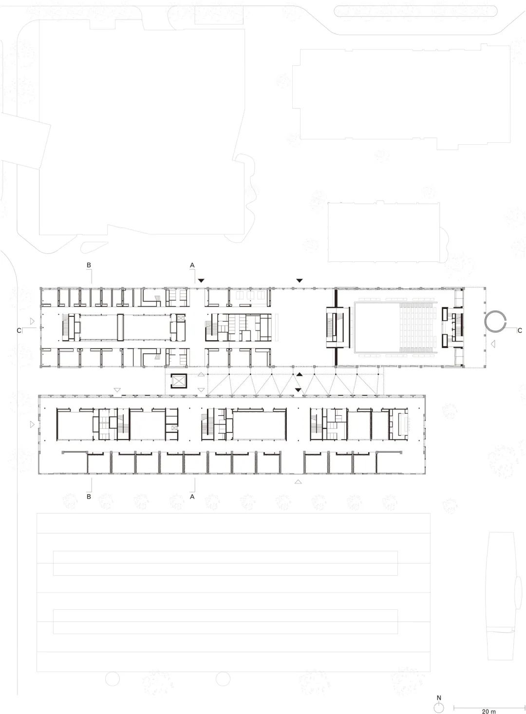
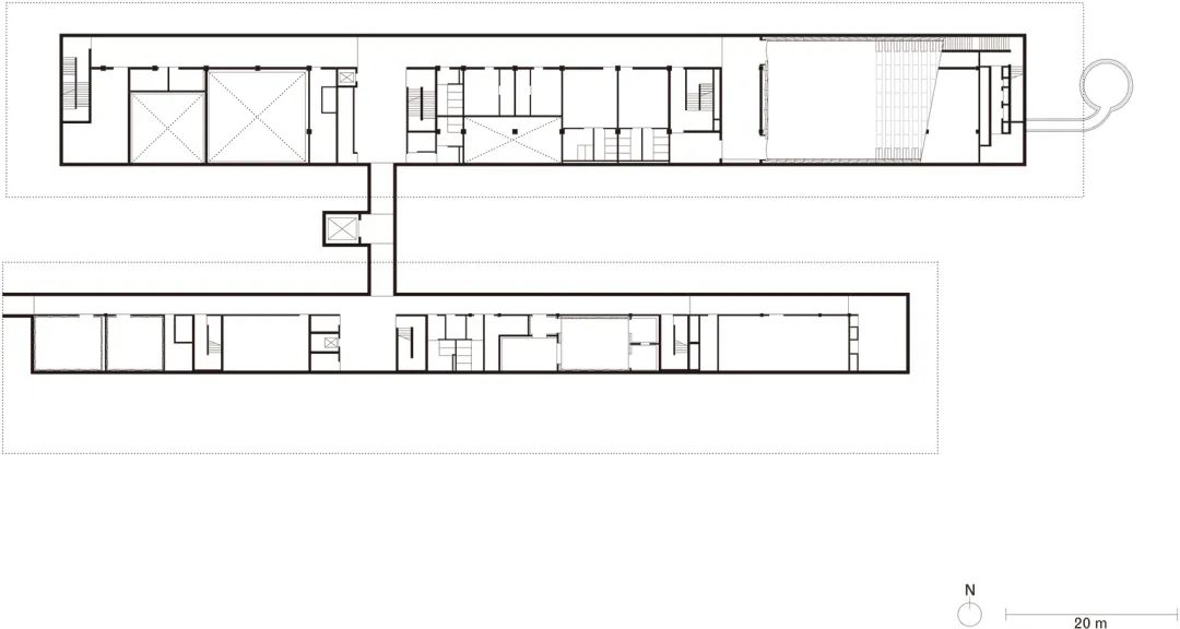
▲音乐学院首层平面图
©David Chipperfield Architects
▲音乐学院二层平面图
©David Chipperfield Architects
▲音乐学院地下层平面图
©David Chipperfield Architects
▲音乐学院北立面图
©David Chipperfield Architects
▲音乐学院东立面图
©David Chipperfield Architects
▲音乐学院 AA 剖面图
©David Chipperfield Architects
▲音乐学院 BB 剖面图
©David Chipperfield Architects
▲音乐学院 CC 剖面图
©David Chipperfield Architects
陶溪川文创街区总体规划
概念设计 2018
建筑面积 265,000 m2
业主 景德镇陶文旅控股集团有限公司
建筑师 戴卫奇普菲尔德建筑事务所柏林办公室 负责合伙人 David Chipperfield、Martin Reichert、Alexander Schwarz(设计主创) 项目建筑师 Ulrike Eberhardt, Franziska Rusch
项目团队 Noriyuki Sawaya、Kawalpreet Singh; 平面设计、效果图:Konrad Basan、Kerstin Bigalke、Dalia Liksaite
大剧院
概念设计 2018
项目开始 2020
项目开工 2020
项目建成 2021
开业 2021
面积 42,400 m2
业主 景德镇陶文旅控股集团有限公司
建筑师 戴卫奇普菲尔德建筑事务所柏林与上海办公室 负责合伙人 David Chipperfield、陈立缤、Martin Reichert、Alexander Schwarz (设计主创)项目建筑师 Ulrike Eberhardt(概念设计至施工图审核)、杨旭 (施工现场艺术监理)
项目团队 Martina Betzold、Alexander Bellmann、Sandra García Bornholt、Jinhui Huang、Kristin Karig、Levan Kiknavelidze, Anke Lawrence、Hubert Pawela、Maxi Reschke、Julijana Steimle、Nils Stelter; 平面设计、效果图:Ken Polster, David Wegner
合作方
地方设计院 上海建筑设计研究院有限公司
声学顾问 Kahle Acoustics、同济大学建筑设计研究院 (集团) 有限公司
灯光顾问 黎欧思照明
景观建筑师 或然景观 (概念设计至初步设计)、上海建筑设计研究院有限公司 (施工图设计至现场监理)
音乐学院
概念设计 2018
项目开始 2020
项目开工 2020
项目建成 2022
开业 (预计) 2022
面积 8,300 m2
业主 景德镇陶文旅控股集团有限公司
建筑师 戴卫奇普菲尔德建筑事务所柏林与上海办公室
负责合伙人 David Chipperfield、陈立缤、Martin Reichert、Alexander Schwarz(设计主创)项目建筑师 Ulrike Eberhardt(概念设计与方案设计)、Urs Vogt (概念设计与方案设计)、杨旭 (施工图审核与施工现场艺术监理)
项目团队 Jinhui Huang、Kristin Karig,、Cyril Kriwan、Annalisa Massari、李维妙、Rongxing Lin、吕浩然、Rosa Piepoli, Franziska Rusch、Juliane Schwarz; 平面设计、效果图: Ken Polster, David Wegner
合作方
地方设计院 上海建筑设计研究院
声学顾问 Kahle Acoustics
景观建筑师 或然景观(概念设计至初步设计)、上海建筑设计研究院有限公司(施工图设计至现场监理)
酒店
概念设计 2018
项目开始 2020
项目开工 2020
项目建成 2021
开业 2021
面积 91,700 m2
业主 景德镇陶文旅控股集团有限公司
建筑师 戴卫奇普菲尔德建筑事务所柏林与上海办公室 负责合伙人 David Chipperfield、陈立缤、Martin Reichert、Alexander Schwarz(设计主创) 项目建筑师 Ulrike Eberhardt(概念设计)、Anke Lawrence(概念设计)、 杨旭(方案设计至施工现场艺术监理)项目团队 Stefano Didaniel 、李维妙、Rongxing Lin、吕浩然、 Rosa Piepoli、Juliane Schwarz 、徐紫阳、郑涵予;
效果图: 崔放
合作方
地方设计院 上海建筑设计研究院
景观建筑师 或然景观(概念设计至初步设计)、上海建筑设计研究院有限公司(施工图设计至现场监理)
客服
消息
收藏
下载
最近













































